
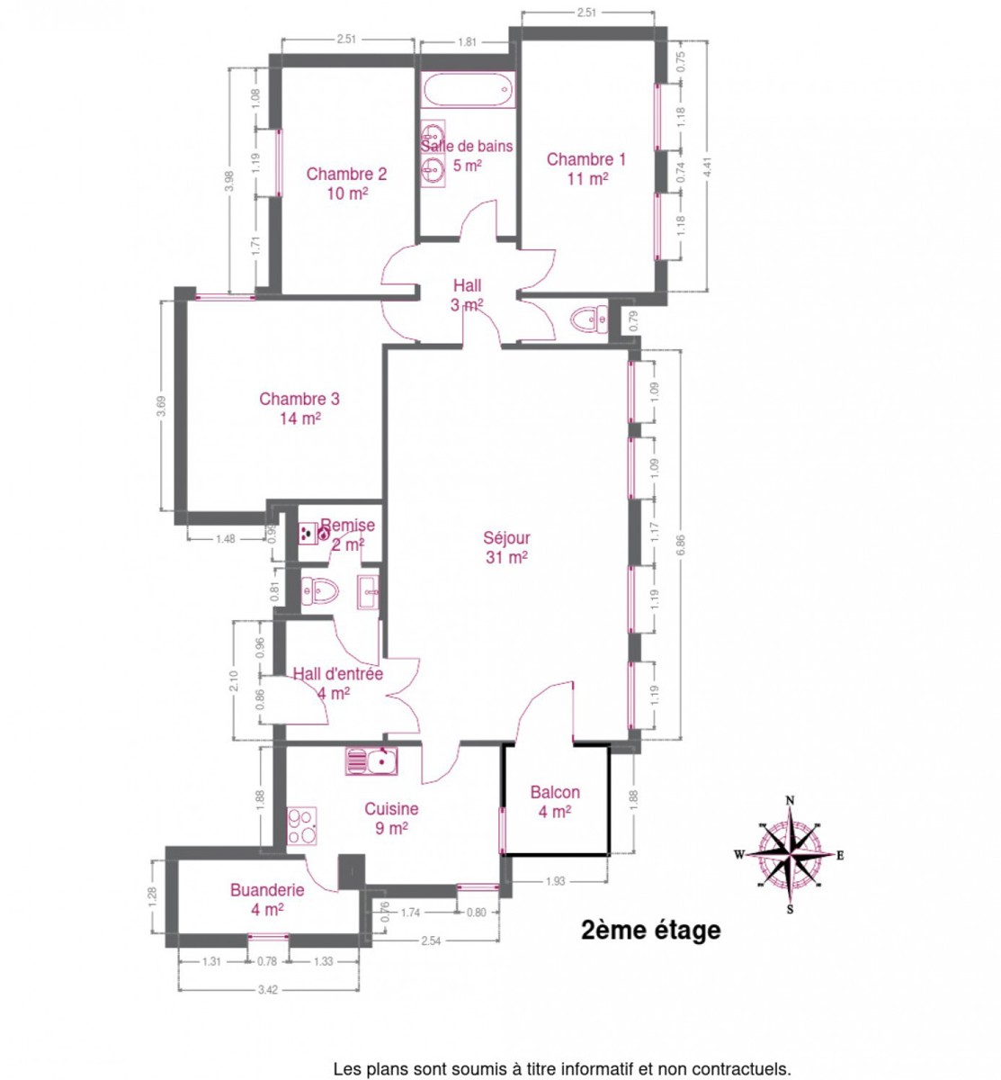
OPTION OPTION OPTION COMPROMIS EN COURS DE REDACTION... Venez découvrir ce très bel appartement 3 chambres avec terrasse et garage. Sur près de 100m², il vous propose un hall d'entrée avec vestiaire et WC, un grand espace de vie lumineux avec accès à une terrasse de 4m² orientée au sud, une cuisine équipée avec coin à manger, une arrière cuisine avec buanderie, un hall de nuit distribuant une salle de bains, un wc séparé et 3 chambres de tailles confortables (10, 11 et 14m²) dont 2 donnant sur le calme des jardins arrières. Idéal pour couple avec enfant(s) ou pour investisseur. Pratique: box garage fermé, nombreux commerces accessibles à pieds, bus et gare d'Ottignies tout proche, écoles et grands à quelques minutes... Technique: chauffage gaz individuel, PEB en classe B et électricité conforme! Une visite vous tente? Merci d'appeler Martin au 0493/50.00.70... https://www.ccv-immobilier.be/fr/bien/a-vendre/appartement/1341-ceroux-mousty/6061463
Avenue Bel Horizon 2B - 1340 Ottignies-Louvain-la-Neuve
Référence | 6107604 |
---|---|
Catégorie | Appartement |
Nombre de chambres | 3 |
Nombre de salles de bain | 1 |
Garage | Oui |
Surface habitable | 95 m² |
Disponibilité | à l'acte |
Année de construction | 1993 |
---|---|
Nombre de garage | 1 |
Parking(s) intérieur (nombre) | 1 |
Etage | 2 |
---|---|
Nombre d'étages | 3 |
Cuisine | Oui |
---|---|
Chauffage (ind/coll) (type (ind/coll)) | individuel |
Ascenseur | Oui |
Double vitrage | Oui |
Chauffage (type) | gaz |
Sdb (type) | bain |
Parlophone | Oui |
Buanderie | Oui |
---|
Nbre de toilette(s) (nombre) | 2 |
---|---|
Chambre 1 (surface) | 11 m² |
Chambre 2 (surface) | 10 m² |
Chambre 3 (surface) | 14 m² |
Largeur de façade | 16 |
Nbre de terrasse(s) (nombre) | 1 |
Salle de séjour (surface) | 31 m² |
Cuisine (surface) | 9 m² |
Salle de bain 1 (surface) | 5 m² |
Orientation de la terrasse 1 | sud |
Hall de nuit (surface) | 3 m² |
Transports en commun (distance (m)) | 150 |
---|---|
Transports en commun | Oui |
Autoroute | Oui |
Autoroute (distance (m)) | 8200 |
Gare | Oui |
Gare (distance (m)) | 1000 |
Égouts | Oui |
---|---|
Gaz | Oui |
Câbles téléphoniques | Oui |
Eau | Oui |
Électricité (Détails) | Mono-horaire, individuel |
Châssis (type) | bois |
---|
Type d'environnement | zone d'habitation |
---|---|
Exposition de la façade avant | est |
Orientation de la terrasse | sud |
Label PEB (classe) | B |
---|---|
PEB E-SPEC (kwh/m²/an) | 142 |
E total (Kwh/an) | 19579 |
PEB code unique | 20240716010157 |
PEB valide jusqu'au (datetime) | 16/07/2024 |
Date du PEB (datetime) | 16/07/2034 |