Appartement - vendu - 1340 Ottignies -

Appartement - à vendre - 1340 Ottignies
2 1 90 m² PEB : D

Description

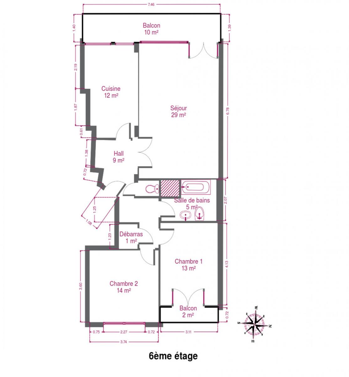
OPTION OPTION OPTION OPTION  Situé au 6ème étage et à deux pas du centre commercial "Le Douaire"  à Ottignies, vous serez conquis par ce bel appartement  avec un spacieux et lumineux living de +/- 30m². Il vous offre également un balcon et une terrasse de 10m² orientée Ouest, avec une vue sur le centre ville à couper le souffle. Il vous propose +/-90M² habitables très bien agencés avec hall d'entrée, wc, débarras, cuisine, salle de bains et 2 belles chambres de 13 et 14m² + cave de rangement. Il est fonctionnel, dans un super état d'entretien et lumineux à souhait ! Quelques travaux à prévoir (châssis, cuisine, sdb,...). Situation idéale et proche de tout, gare, écoles, commerces ! Ne cherchez plus, vous avez trouvé l'appartement qu'il vous faut ! FAIRE OFFRE A PARTIR DE 210 000€, sous réserve de l'acceptation des propriétaires.  Une visite ? Contactez Marie au 0474/88.59.30. https://www.ccv-immobilier.be/fr/bien/a-vendre/appartement/1340-ottignies/4624690

Adresse

Rue du Moulin 21 Boîte 601 - 1340 Ottignies

Général

Référence 4624690
Catégorie Appartement
Nombre de chambres 2
Nombre de salles de bain 1
Garage Non
Terrasse Oui
Parking Non
Surface habitable 90 m²
Disponibilité à l'acte

Bâtiment

Année de construction 1975
Parking intérieur Non
Parking extérieur Non
Type de construction traditionnel

Nom, catégorie & situation

Etage 6
Nombre d'étages (numéro) 7

Equipement de base

Accès handicapés Oui
Cuisine Oui
Chauffage (ind/coll) (type (ind/coll)) individuel
Ascenseur Oui
Chauffage (Format/energie) gaz (chau. centr.)
Type d'ascenseur personnes
Type de cuisine non-équipée
Sdb (Type) douche dans le bain
Parlophone Oui

En chiffres

Nbre de toilette(s) (nombre) 1
Chambre 1 (surface) 12.79 m²
Chambre 2 (surface) 13.46 m²
Surface nette 85 m²
Nbre de terrasse(s) (nombre) 1
Salle de séjour (surface) 29.3 m²
Cuisine (surface) 12.35 m²
Salle de bain 1 (surface) 5.14 m²
Caves (surface) 1 m²
Orientation de la terrasse 1 (-) ouest
Nbre de pièce(s) (Nombre) 8

À proximité

Magasins (distance (m)) 30
Écoles (distance (m)) 250
Transports en commun (distance (m)) 250
Centre sportif (distance (m)) 2000
Magasins Oui
Ecoles Oui
Transports en commun Oui
Centre sportif Oui
Autoroute Oui
Autoroute (distance (m)) 4000
Gare Oui
Gare (distance (m)) 1100

Raccordements

Égouts Oui
Télévision par cable Oui
Gaz Oui
Câbles téléphoniques Oui
Eau Oui
Électricité (Détails) Mono-horaire

Équipements techniques

Châssis (Ouvertures) bois
Évier Oui
Type d'évier 2

Spécificités terrain

Type d'environnement centre ville
Exposition de la façade avant (-) ouest
Orientation de la terrasse (-) ouest

Caractéristiques Principales

Surface de terrasse 1 10 m²

Type de matériau & évaluation

Type de revêtement de sol carrelages

Cadastre

Revenu cadastral (€) (montant) 1278 €

Sécurité

Porte blindée Oui

Certificats / Attestations

Certificat d'électricité (oui/non) oui, non conforme

Divers

Cave Oui

Certificats énergétiques

Label PEB (Classe) D
PEB E-SPEC (kwh/m²/an) (Consommation énergétique) 298
PEB code unique (-) 20220121011626
Votre agent
Marie Surges
E-mail Tel.
Prendre contact pour le bien : 4624690

* Champs obligatoires

Préférences pour les cookies

La protection de vos données personnelles est importante pour nous. C’est pourquoi nous détaillons ci-dessous les différents services et fonctionnalités du site qui utilisent des cookies et nous vous laissons décider des cookies que vous souhaitez autoriser ou refuser.

Veuillez cependant noter que si vous bloquez certains types de cookies, cela pourrait impacter votre expérience de navigation sur notre site ainsi que les fonctionnalités disponibles.

Nous utilisons des cookies fonctionnels obligatoires pour assurer le bon fonctionnement du site. Ils sont, par exemple, nécessaires pour retrouver le résultat d’une recherche ou enregistrer le choix de la langue.

Certaines fonctionnalités, comme l’affichage de vidéos ou de cartes géographiques, sont assurées via des composants externes développés par des partenaires comme YouTube ou Google. Certains composants utilisent des cookies qui sont susceptibles de permettre à ces tiers de suivre le comportement des internautes afin, par exemple, de réaliser du ciblage publicitaire. L’activation de ces fonctionnalités et des cookies associés est donc soumis à votre consentement.