
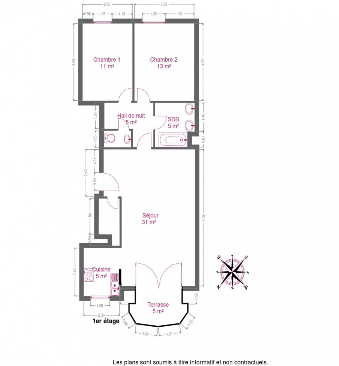
OPTION OPTION OPTION COMPROMIS EN COURS... Situé au 1er étage d'un immeuble récent (2008) avec ascenseur, venez découvrir ce très bel appartement 2 chambres en très bon état d'entretien et prêt-à-vivre! Il se présente comme suit: un très bel espace de vie de 31m2, ouvert sur une cuisine équipée, un hall de nuit, deux chambres de 13 et 11m2, une salle de bains avec double évier et un WC séparé. On y trouve également une terrasse de 5m2 orientée ouest. Parking privatif réservé aux résidents au pied de l'immeuble. Proximité directe de toutes les commodités, écoles, N25/E411, commerces juste à côté (le Douaire,...) et gare d'Ottignies à 2' à pied! Technique : PEB A - chaudière au gaz de ville "Bulex" - parlophone - double vitrage - électricité conforme jusqu'en 2033 ! Idéal pour investisseurs ou 1er achat! Belle opportunité à venir voir ! Faire offre à partir de 259 000€ sous réserve de l'accord des propriétaires. Une visite ? Contactez Camille au 0478/74.97.97.
https://www.ccv-immobilier.be/fr/bien/a-vendre/appartement/1340-ottignies/5844365
Rue des Deux Ponts 16 Boîte 101 - 1340 Ottignies
Référence | 5844365 |
---|---|
Catégorie | Appartement |
Nombre de chambres | 2 |
Nombre de salles de bain | 1 |
Terrasse | Oui |
Surface habitable | 71 m² |
Disponibilité | à l'acte |
Année de construction | 2008 |
---|
Nombre d'étages (numéro) | 4 |
---|
Cuisine | Oui |
---|---|
Ascenseur | Oui |
Double vitrage | Oui |
Chauffage (Format/energie) | gaz (chau. centr.) |
Parlophone | Oui |
Nbre de toilette(s) (nombre) | 1 |
---|---|
Chambre 1 (surface) | 11.09 m² |
Chambre 2 (surface) | 13.32 m² |
Largeur de façade | 6 |
Nbre de terrasse(s) (nombre) | 1 |
Salle de séjour (surface) | 31.4 m² |
Cuisine (surface) | 4.97 m² |
Salle de bain 1 (surface) | 4.71 m² |
Hall de nuit (surface) | 4.73 m² |
Transports en commun (distance (m)) | 170 |
---|---|
Transports en commun | Oui |
Autoroute | Oui |
Autoroute (distance (m)) | 4100 |
Gare | Oui |
Gare (distance (m)) | 650 |
Égouts | Oui |
---|---|
Gaz | Oui |
Câbles téléphoniques | Oui |
Eau | Oui |
Électricité (Détails) | Nombre 1 |
Centrale tél. | Oui |
---|---|
Châssis (Ouvertures) | bois |
Type d'environnement | central |
---|---|
Exposition de la façade avant (-) | nord-ouest |
Orientation de la terrasse (-) | nord ouest |
Surface de terrasse 1 | 5 m² |
---|
Revenu cadastral (€) (montant) | 1065 € |
---|
Label PEB (Classe) | A |
---|---|
PEB E-SPEC (kwh/m²/an) (Consommation énergétique) | 80 |
E total (Kwh/an) | 6873 |
PEB code unique (-) | 20230227006218 |