
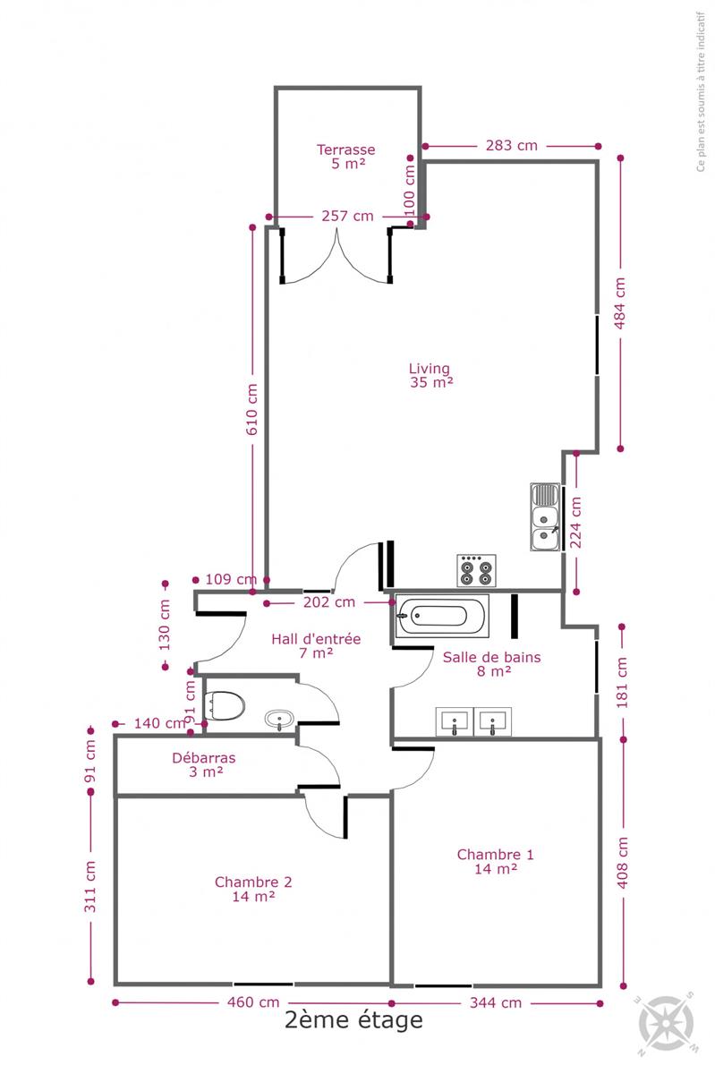
OPTION - STOP VISITES - Une visite? Appelez Laurence au 0471/43.48.59! Dans un immeuble de 2009, venez visiter ce très bel appartement 2 chambres sur 90m², idéalement situé sur les hauteurs de LLN (quartier des Bruyères), à proximité des axes de communications, non loin des écoles, des commerces et du centre de LLN accessible à pieds! Il vous propose un bel espace de vie ouvert, une cuisine équipée récente (le tout sur 35m²), une belle terrasse de 6m² donnant sur un jardin commun, un wc séparé, une buanderie (ou débarras), une salle de bains (double lavabo, baignoire, armoires de rangement et emplacement machine à laver) et 2 belles chambres spacieuses. Un box garage fermé au sous-sol est inclus dans la vente. N'hésitez pas à appeler Laurence au 0471/43.48.59 afin de planifier une visite! A bientôt? https://www.ccv-immobilier.be/fr/bien/a-vendre/appartement/1348-ottignies-louvain-la-neuve/4505964
Clos des Sonneurs 2 Boîte 203 - 1348 Ottignies-louvain-la-neuve
Référence | 4505964 |
---|---|
Catégorie | Appartement |
Nombre de chambres | 2 |
Nombre de salles de bain | 1 |
Garage | Oui |
Terrasse | Oui |
Surface habitable | 83 m² |
Disponibilité | à l'acte |
Année de construction | 2009 |
---|---|
Nombre de garage | 1 |
Parking intérieur | Oui |
Parking(s) intérieur (nombre) | 1 |
Type de construction | traditionnel |
Etage | 2 |
---|---|
Nombre d'étages | 4 |
Cuisine | Oui |
---|---|
Chauffage (ind/coll) (type (ind/coll)) | individuel |
Ascenseur | Oui |
Double vitrage | Oui |
Chauffage (type) | gaz (chau. centr.) |
Type de cuisine | équipée |
Sdb (type) | douche dans le bain |
Videophone | Oui |
Buanderie | Oui |
---|
Nbre de toilette(s) (nombre) | 1 |
---|---|
Chambre 1 (surface) | 14 m² |
Chambre 2 (surface) | 14 m² |
Surface brute | 103 m² |
Surface nette | 83 m² |
Largeur de façade | 14 |
Garage (surface) | 20.35 m² |
Nbre de terrasse(s) (nombre) | 1 |
Salle de séjour (surface) | 28 m² |
Cuisine (surface) | 7 m² |
Salle de bain 1 (surface) | 8 m² |
Hall d'entrée (surface) | 7.27 m² |
Orientation de la terrasse 1 | sud-est |
Hall de nuit (surface) | 7 m² |
Nbre de pièce(s) (nombre) | 8 |
Magasins (distance (m)) | 1000 |
---|---|
Écoles (distance (m)) | 1000 |
Transports en commun (distance (m)) | 70 |
Centre sportif (distance (m)) | 1800 |
Transports en commun | Oui |
Autoroute | Oui |
Autoroute (distance (m)) | 2300 |
Gare | Oui |
Gare (distance (m)) | 1200 |
Égouts | Oui |
---|---|
Télévision par cable | Oui |
Gaz | Oui |
Eau | Oui |
Électricité (Détails) | Bi-horaire |
Châssis (type) | pvc |
---|---|
Évier | Oui |
Type d'évier | 1,5 |
Type d'environnement | central |
---|---|
Exposition de la façade avant | sud-est |
Orientation de la terrasse | sud est |
Orientation du jardin | sud est |
Surface de terrasse 1 | 6 m² |
---|
Type de revêtement de sol | carrelages |
---|---|
État des châssis (appréciation) | 5 |
État de la cuisine (appréciation) | 5 |
Label PEB (classe) | B |
---|---|
PEB E-SPEC (kwh/m²/an) | 104 |
E total (Kwh/an) | 10505 |
PEB code unique | 20121031019777 |