Appartement - vendu - 1348 Ottignies-louvain-la-neuve -

Appartement - à vendre - 1348 Ottignies-louvain-la-neuve
2 1 85 m² 1 PEB : B

Description

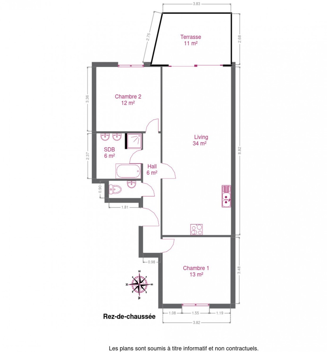
OPTION OPTION OPTION Venez découvrir ce magnifique appartement situé au rez de chaussée d'une petite copropriété (3 unités) dans le quartier des Bruyères. Avec ses 85m² utiles, il offre un lumineux et spacieux espace de vie de +/- 34m² comprenant la cuisine équipée et le living donnant sur l'extérieur, 2 belles chambres de 12m² et de 13m², une salle de bains avec emplacement des machines à laver et un WC. Vous profiterez également d'une agréable terrasse de +/- 12m² avec jardin dans un environnement calme et verdoyant. Le tout est complété par un emplacement de parking extérieur et privatif. Excellent niveau confort et de prestations : PEB B, électricité conforme, compteurs individuels, chauffage gaz de ville, construction de 2003. Bail en cours depuis décembre 2021. Loyer actuel 980€/mois ( charges comprises). Idéal pour investissement ! Opportunité à saisir ! Une visite ? N'attendez plus et contactez Marie au 0474/885930.
https://www.ccv-immobilier.be/fr/bien/a-vendre/appartement/1348-ottignies-louvain-la-neuve/5586238

Adresse

Rue Albert Mockel 3 Boîte 001 - 1348 Ottignies-louvain-la-neuve

Général

Référence 5586238
Catégorie Appartement
Nombre de chambres 2
Nombre de salles de bain 1
Jardin Oui
Terrasse Oui
Surface habitable 85 m²
Surface du terrain 218 m²
Disponibilité en fonct. du locataire

Bâtiment

Année de construction 2003
Parking extérieur Oui
Parking(s) extérieur (nombre) 1
Type de construction traditionnel

Equipement de base

Accès handicapés Oui
Cuisine Oui
Chauffage (ind/coll) (type (ind/coll)) individuel
Double vitrage Oui
Chauffage (Format/energie) gaz (chau. centr.)
Type de cuisine amer. équipée
Sdb (Type) bain
Double vitrage (type) isol. thermique et acoustique
Parlophone Oui

En chiffres

Nbre de toilette(s) (nombre) 1
Chambre 1 (surface) 13.32 m²
Chambre 2 (surface) 12.17 m²
Surface nette 73 m²
Largeur de façade 4
Nbre de terrasse(s) (nombre) 1
Salle de bain 1 (surface) 5.94 m²
Orientation de la terrasse 1 (-) est
Nbre de pièce(s) (Nombre) 6

Charges & Rendement

Charges locataire (montant) 25 €
Détails charges forfait pour le commun

Sécurité

Sécurité Oui
Porte blindée Oui

Raccordements

Égouts Oui
Télévision par cable Oui
Gaz Oui
Câbles téléphoniques Oui
Eau Oui
Électricité (Détails) Bi-horaire, individuel

Équipements techniques

Centrale tél. Oui
Châssis (Ouvertures) pvc
Évier Oui
Type d'évier 2

Spécificités terrain

Type d'environnement zone d'habitation
Type d'environnement 2 calme
Exposition de la façade avant (-) ouest
Orientation de la terrasse (-) est
Orientation du jardin (-) est

Caractéristiques Principales

Surface de terrasse 1 12 m²

Type de matériau & évaluation

Type de revêtement de sol carrelages

Cadastre

Revenu cadastral (€) (montant) 1013 €

À proximité

Magasins Oui
Ecoles Oui
Transports en commun Oui
Centre sportif Oui
Autoroute Oui
Gare Oui

Equipement extérieur

Jardin (détails) est, plat, aménagé pelouse, Fermé barrières latérales haies murs

Energie

Label PEB (Classe) B
PEB E-SPEC (kwh/m²/an) (Consommation énergétique) 145
E total (Kwh/an) 13380
PEB code unique (-) 20230110024087
Votre agent
Marie Surges
E-mail Tel.
Prendre contact pour le bien : 5586238

* Champs obligatoires

Préférences pour les cookies

La protection de vos données personnelles est importante pour nous. C’est pourquoi nous détaillons ci-dessous les différents services et fonctionnalités du site qui utilisent des cookies et nous vous laissons décider des cookies que vous souhaitez autoriser ou refuser.

Veuillez cependant noter que si vous bloquez certains types de cookies, cela pourrait impacter votre expérience de navigation sur notre site ainsi que les fonctionnalités disponibles.

Nous utilisons des cookies fonctionnels obligatoires pour assurer le bon fonctionnement du site. Ils sont, par exemple, nécessaires pour retrouver le résultat d’une recherche ou enregistrer le choix de la langue.

Certaines fonctionnalités, comme l’affichage de vidéos ou de cartes géographiques, sont assurées via des composants externes développés par des partenaires comme YouTube ou Google. Certains composants utilisent des cookies qui sont susceptibles de permettre à ces tiers de suivre le comportement des internautes afin, par exemple, de réaliser du ciblage publicitaire. L’activation de ces fonctionnalités et des cookies associés est donc soumis à votre consentement.