
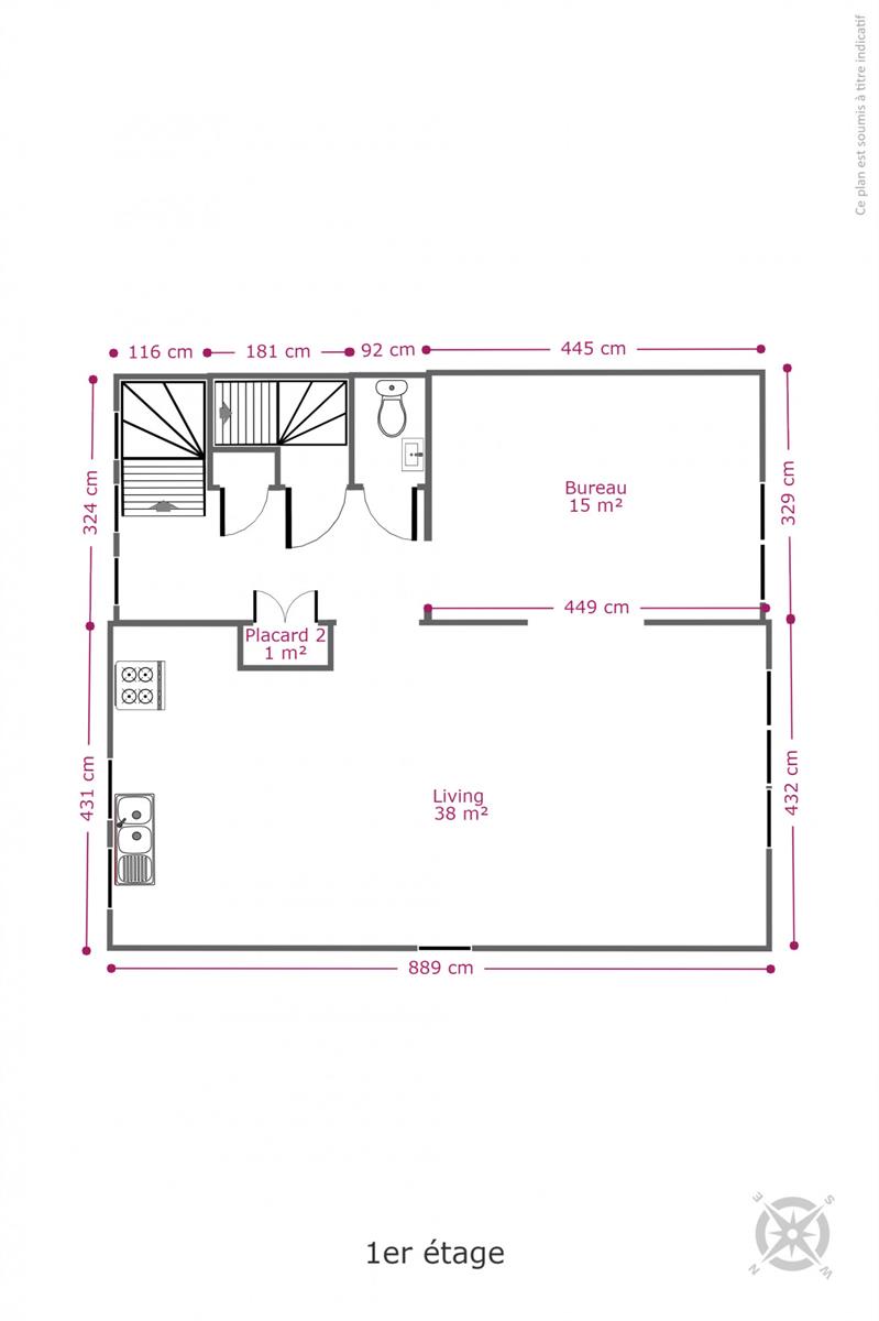
OPTION OPTION OPTION ! Comme Chez Vous Immobilier vous propose dans un immeuble récent de 2 unités, ce bel appartement duplex de +/- 126m² habitables situé à proximité du centre de Court-Saint-Etienne et du Ravel. Il se compose, au rez-de-chaussée, d'un hall d'entrée privatif avec un escalier donnant directement accès au 1er étage et au magnifique espace de vie. On y trouve un lumineux et spacieux living ouvert sur la cuisine super équipée, un hall avec espace de rangement et un beau bureau pouvant servir de 3ème chambre (+/-15m² - peut être cloisonné sur demande) ainsi qu'un premier WC séparé . Au 2ème, nous arrivons sur un palier desservant 2 belles chambres (19m² et 15m²) et une salle de bains avec toilette, espace buanderie et un second WC séparé. Excellent niveau de prestations, compteurs individuels pour l'eau, le gaz et l'électricité. +/- 30€/mois de charges communes (entretien et électricité de la station d'épuration collective), pas de frais de syndic! PEB: B. Excellent pour premier achat ou investissement. Faire offre à partir de 245.000€ sous réserve de l'acceptation des propriétaires. Pour visiter, contactez Marie au 0474/88.59.30 https://www.ccv-immobilier.be/fr/bien/a-vendre/appartement/1490-court-saint-etienne/4520272
Rue du pont de pierres 6B Boîte 101 - 1490 Court-saint-Étienne
Référence | 4520272 |
---|---|
Catégorie | Appartement |
Nombre de chambres | 3 |
Nombre de salles de bain | 1 |
Garage | Non |
Terrasse | Non |
Parking | Non |
Surface habitable | 128 m² |
Disponibilité | immédiatement |
Année de construction | 2008 |
---|---|
Parking intérieur | Non |
Parking extérieur | Non |
Etage | 1er |
---|---|
Nombre d'étages | 3 |
Accès handicapés | Non |
---|---|
Cuisine | Oui |
Chauffage (ind/coll) (type (ind/coll)) | individuel |
Ascenseur | Non |
Double vitrage | Oui |
Chauffage (type) | gaz (chau. centr.) |
Type de cuisine | amer. super-équipée |
Sdb (type) | douche dans le bain |
Double vitrage (type) | isol. thermique et acoustique |
Parlophone | Oui |
Nbre de toilette(s) (nombre) | 2 |
---|---|
Chambre 1 (surface) | 19.09 m² |
Chambre 2 (surface) | 14.96 m² |
Chambre 3 (surface) | 15 m² |
Largeur de façade | 7.8 |
Cuisine (surface) | 14.63 m² |
Salle de bain 1 (surface) | 13.65 m² |
Bureau (surface) | 14.63 m² |
Hall de nuit (surface) | 11.77 m² |
Transports en commun (distance (m)) | 90 |
---|---|
Magasins | Oui |
Ecoles | Oui |
Transports en commun | Oui |
Centre sportif | Oui |
Autoroute | Oui |
Autoroute (distance (m)) | 7600 |
Gare | Oui |
Gare (distance (m)) | 400 |
Châssis (type) | pvc |
---|---|
Centrale tél. | Oui |
Égouts | Oui |
---|---|
Gaz | Oui |
Câbles téléphoniques | Oui |
Eau | Oui |
Électricité (Détails) | Bi-horaire, individuel |
Type d'environnement | calme |
---|---|
Exposition de la façade avant | sud-est |
Label PEB (classe) | B |
---|---|
PEB E-SPEC (kwh/m²/an) | 142 |
E total (Kwh/an) | 13756 |
PEB code unique | 20181110003746 |