Appartement - vendu - 1490 Court-saint-Étienne -

Appartement - à vendre - 1490 Court-saint-Étienne
1 53 m² PEB : A

Description

!!! OPTION - OPTION - OPTION !!! 

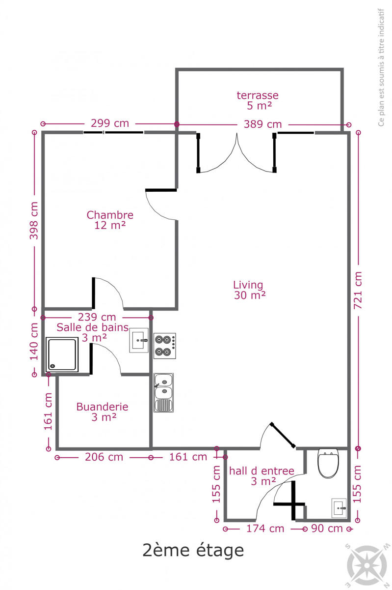
Situé au 2ème étage d'un immeuble de 2020, lumineux appartement 1 chambre avec terrasse orientée Sud/Ouest. Il se compose comme suit : un hall d'entrée avec un WC séparé, un bel espace de vie de 30m² très lumineux comprenant le séjour et la cuisine équipée, une belle chambre donnant accès direct à la salle de douche et à la buanderie. Vous y trouverez également une cave et un emplacement de parking intérieur et sécurisé. Commerces, transports et écoles à 2 pas. Vente sous régime TVA.
Opportunité à saisir! Idéal pour investisseur ou 1er achat. Une visite? Contactez Marie au 0474/88.59.30.

Adresse

Avenue du Modelage 2 Boîte 204 - 1490 Court-saint-Étienne

Général

Référence 4698681
Catégorie Appartement
Nombre de chambres 1
Terrasse Oui
Parking Oui
Surface habitable 53 m²
Disponibilité à l'acte

Bâtiment

Année de construction 2020
Parking intérieur Oui
Type de construction traditionnel

Nom, catégorie & situation

Etage 2
Nombre d'étages (numéro) 3

Equipement de base

Cuisine Oui
Ascenseur Oui
Double vitrage Oui
Chauffage (Format/energie) gaz (chau. centr.)
Videophone Oui

Divers

Buanderie Oui
Cave Oui

En chiffres

Nbre de toilette(s) (nombre) 1
Chambre 1 (surface) 11.94 m²
Surface brute 55.58 m²
Surface nette 52.61 m²
Largeur de façade 7
Nbre de terrasse(s) (nombre) 1
Buanderie (surface) 3.32 m²
Salle de bain 1 (surface) 3.37 m²
Caves (surface) 2.97 m²
Hall d'entrée (surface) 2.69 m²
Nbre de pièce(s) (Nombre) 6

À proximité

Transports en commun (distance (m)) 200
Transports en commun Oui
Autoroute Oui
Autoroute (distance (m)) 1800
Gare Oui
Gare (distance (m)) 200

Raccordements

Égouts Oui
Télévision par cable Oui
Câbles téléphoniques Oui
Eau Oui
Électricité (Détails) Bi-horaire

Équipements techniques

Centrale tél. Oui
Châssis (Ouvertures) pvc
Évier Oui
Type d'évier 1,5

Spécificités terrain

Type d'environnement central
Exposition de la façade avant (-) sud-ouest
Orientation de la terrasse (-) sud ouest

Caractéristiques Principales

Surface de terrasse 1 5 m²

Type de matériau & évaluation

Type de revêtement de sol carrelages

Energie

Label PEB (Classe) A
PEB E-SPEC (kwh/m²/an) (Consommation énergétique) 46
E total (Kwh/an) 2837
PEB code unique (-) 20210603503912
Votre agent
Marie Surges
E-mail Tel.
Prendre contact pour le bien : 4698681

* Champs obligatoires

Préférences pour les cookies

La protection de vos données personnelles est importante pour nous. C’est pourquoi nous détaillons ci-dessous les différents services et fonctionnalités du site qui utilisent des cookies et nous vous laissons décider des cookies que vous souhaitez autoriser ou refuser.

Veuillez cependant noter que si vous bloquez certains types de cookies, cela pourrait impacter votre expérience de navigation sur notre site ainsi que les fonctionnalités disponibles.

Nous utilisons des cookies fonctionnels obligatoires pour assurer le bon fonctionnement du site. Ils sont, par exemple, nécessaires pour retrouver le résultat d’une recherche ou enregistrer le choix de la langue.

Certaines fonctionnalités, comme l’affichage de vidéos ou de cartes géographiques, sont assurées via des composants externes développés par des partenaires comme YouTube ou Google. Certains composants utilisent des cookies qui sont susceptibles de permettre à ces tiers de suivre le comportement des internautes afin, par exemple, de réaliser du ciblage publicitaire. L’activation de ces fonctionnalités et des cookies associés est donc soumis à votre consentement.