Rez-de-chaussée - vendu - 1490 Court-saint-Étienne -

Rez-de-chaussée - à vendre - 1490 Court-saint-Étienne
1 1 32 m² 1 PEB : E

Description

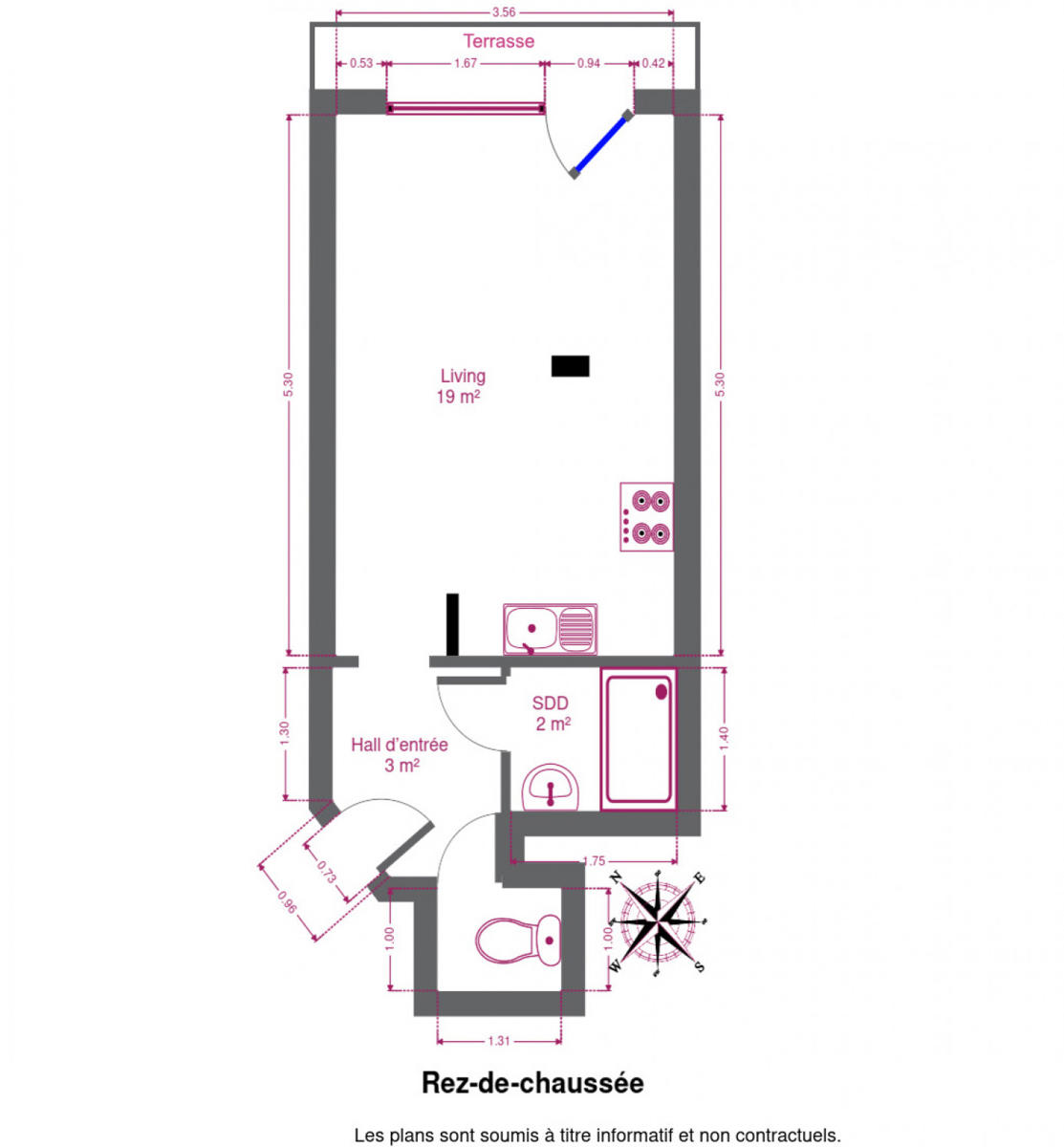
OPTION OPTION OPTION  Situation stratégique pour ce studio de 32 m² sis au rez-de-chaussée d'une petite copropriété dans le centre de Court-Saint-Etienne. Il se compose comme suit : hall d'entrée, lumineuse pièce de vie avec grande baie vitrée,  WC séparé, salle de douche fonctionnelle avec lavabo. Le studio dispose  également d'une jolie terrasse et d'un jardinet privatif et clôturé donnant sur l'arrière du bâtiment. Un box fermé complète ce bien (en option 25 000€). Idéal pour investisseur ou premier achat. Venez le découvrir sans tardez ! Proximité immédiate de nombreux commerces, écoles, espaces verts, bars et restaurants ainsi que des grands axes (N25, E411) et des transports en commun. Le Ravel vous permettra de rejoindre Ottignies en 10' et LLN en 20'! Vente soumise à condition. Faire offre à partir de 120 000€ sous réserve de l'accord des propriétaires.  Contactez Marie au 0474/88.59.30 pour tout renseignement et prise de rendez-vous.

Adresse

Avenue de Wisterzée 48 Boîte 12 - 1490 Court-saint-Étienne

Général

Référence 4935362
Catégorie Rez-de-chaussée
Nombre de chambres 1
Nombre de salles de bain 1
Jardin Oui
Garage Oui
Terrasse Oui
Surface habitable 32 m²
Disponibilité en fonct. du locataire

Bâtiment

Année de construction 1991
Nombre de garage 1
Parking intérieur Oui

Nom, catégorie & situation

Nombre d'étages (numéro) 2

Equipement de base

Accès handicapés Oui
Cuisine Oui
Chauffage (ind/coll) (type (ind/coll)) individuel
Ascenseur Oui
Double vitrage Oui
Chauffage (Format/energie) electrique
Double vitrage (type) isol. thermique et acoustique
Parlophone Oui
Videophone Oui

En chiffres

Surface bâtie (surf. bât. princ.) 32
Nbre de toilette(s) (nombre) 1
Nombre de sdd 1
Largeur de façade 3
Profondeur terrain 44
Nbre de terrasse(s) (nombre) 1
Salle de séjour (surface) 26 m²

Raccordements

Égouts Oui
Câbles téléphoniques Oui
Eau Oui
Électricité (Détails) Individuel

Équipements techniques

Châssis (Ouvertures) pvc

Spécificités terrain

Type d'environnement central
Orientation de la terrasse (-) nord est
Orientation du jardin (-) nord est

Caractéristiques Principales

Surface de terrasse 1 7 m²

À proximité

Magasins Oui
Ecoles Oui
Transports en commun Oui
Centre sportif Oui
Autoroute Oui
Gare Oui

Certificats énergétiques

Label PEB (Classe) E
PEB E-SPEC (kwh/m²/an) (Consommation énergétique) 397
E total (Kwh/an) 12876
PEB code unique (-) 20220902005275
Votre agent
Marie Surges
E-mail Tel.
Prendre contact pour le bien : 4935362

* Champs obligatoires

Préférences pour les cookies

La protection de vos données personnelles est importante pour nous. C’est pourquoi nous détaillons ci-dessous les différents services et fonctionnalités du site qui utilisent des cookies et nous vous laissons décider des cookies que vous souhaitez autoriser ou refuser.

Veuillez cependant noter que si vous bloquez certains types de cookies, cela pourrait impacter votre expérience de navigation sur notre site ainsi que les fonctionnalités disponibles.

Nous utilisons des cookies fonctionnels obligatoires pour assurer le bon fonctionnement du site. Ils sont, par exemple, nécessaires pour retrouver le résultat d’une recherche ou enregistrer le choix de la langue.

Certaines fonctionnalités, comme l’affichage de vidéos ou de cartes géographiques, sont assurées via des composants externes développés par des partenaires comme YouTube ou Google. Certains composants utilisent des cookies qui sont susceptibles de permettre à ces tiers de suivre le comportement des internautes afin, par exemple, de réaliser du ciblage publicitaire. L’activation de ces fonctionnalités et des cookies associés est donc soumis à votre consentement.