Appartement - vendu - 1490 Court-saint-Étienne -

Appartement - à vendre - 1490 Court-saint-Étienne
2 1 80 m² 1 PEB : B

Description

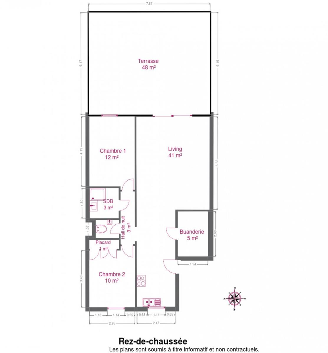
OPTION OPTION OPTION A quelques minutes du centre de Court-Saint-Etienne, de la gare et des commerces, CCV Immobilier vous propose ce magnifique appartement de +/- 80m², au rez de chaussée d'un petit immeuble récent (2009) avec 3 copropriétés seulement. Moderne, il offre un spacieux séjour de +/- 41m² avec salle à manger et cuisine ouverte et équipée, 2 belles chambres de 10m² et 12m², une salle de douche et un W.C. indépendant. Beaux espaces extérieurs dont une grande terrasse avec vue de +/- 48m² exposée sud et un agréable jardin plat et facile d'entretien. Autres atouts: Place de parking extérieur privative, compteurs individuels (gaz, électricité et eau) et excellent PEB B ! Opportunité rare ! A saisir sans tarder ! Les 2 autres appartements sont également à vendre. Pour visiter contacter Marie au 0474/88.59.30.

Adresse

Avenue des combattants 167A - 1490 Court-saint-Étienne

Général

Référence 5240168
Catégorie Appartement
Nombre de chambres 2
Nombre de salles de bain 1
Jardin Oui
Surface du jardin 200 m²
Terrasse Oui
Surface habitable 80 m²
Surface du terrain 300 m²
Disponibilité à l'acte

Bâtiment

Année de construction 2009
Parking extérieur Oui
Parking(s) extérieur (nombre) 1
Type de construction traditionnel

Nom, catégorie & situation

Nombre d'étages (numéro) 3

Equipement de base

Cuisine Oui
Double vitrage Oui
Chauffage (Format/energie) gaz (chau. centr.)
Parlophone Oui
Adoucisseur Oui

Divers

Buanderie Oui

En chiffres

Nbre de toilette(s) (nombre) 1
Chambre 1 (surface) 12.45 m²
Chambre 2 (surface) 10.28 m²
Surface nette 80 m²
Largeur de façade 8
Nbre de terrasse(s) (nombre) 1
Cuisine (surface) 0 m²
Buanderie (surface) 5.23 m²
Salle de bain 1 (surface) 3.36 m²
Hall de nuit (surface) 2.88 m²
Nbre de pièce(s) (Nombre) 7

À proximité

Transports en commun (distance (m)) 200
Transports en commun Oui
Autoroute Oui
Autoroute (distance (m)) 1400
Gare Oui
Gare (distance (m)) 700

Raccordements

Égouts Oui
Télévision par cable Oui
Câbles téléphoniques Oui
Eau Oui
Électricité (Détails) Bi-horaire, individuel

Équipements techniques

Centrale tél. Oui
Châssis (Ouvertures) pvc
Évier Oui
Type d'évier 1,5

Spécificités terrain

Type d'environnement central
Exposition de la façade avant (-) ouest
Orientation de la terrasse (-) est
Orientation du jardin (-) est

Caractéristiques Principales

Surface de terrasse 1 48 m²

Type de matériau & évaluation

Type de revêtement de sol carrelages

Equipement extérieur

Jardin (détails) est, déclivité, aménagé pelouse, Fermé haies clôtures

Certificats énergétiques

Label PEB (Classe) B
PEB E-SPEC (kwh/m²/an) (Consommation énergétique) 98
E total (Kwh/an) 8940
PEB code unique (-) 20230214028016
Votre agent
Marie Surges
E-mail Tel.
Prendre contact pour le bien : 5240168

* Champs obligatoires

Préférences pour les cookies

La protection de vos données personnelles est importante pour nous. C’est pourquoi nous détaillons ci-dessous les différents services et fonctionnalités du site qui utilisent des cookies et nous vous laissons décider des cookies que vous souhaitez autoriser ou refuser.

Veuillez cependant noter que si vous bloquez certains types de cookies, cela pourrait impacter votre expérience de navigation sur notre site ainsi que les fonctionnalités disponibles.

Nous utilisons des cookies fonctionnels obligatoires pour assurer le bon fonctionnement du site. Ils sont, par exemple, nécessaires pour retrouver le résultat d’une recherche ou enregistrer le choix de la langue.

Certaines fonctionnalités, comme l’affichage de vidéos ou de cartes géographiques, sont assurées via des composants externes développés par des partenaires comme YouTube ou Google. Certains composants utilisent des cookies qui sont susceptibles de permettre à ces tiers de suivre le comportement des internautes afin, par exemple, de réaliser du ciblage publicitaire. L’activation de ces fonctionnalités et des cookies associés est donc soumis à votre consentement.