Appartement - vendu - 1490 Court-saint-Étienne -

Appartement - à vendre - 1490 Court-saint-Étienne
2 73 m² PEB : A

Description

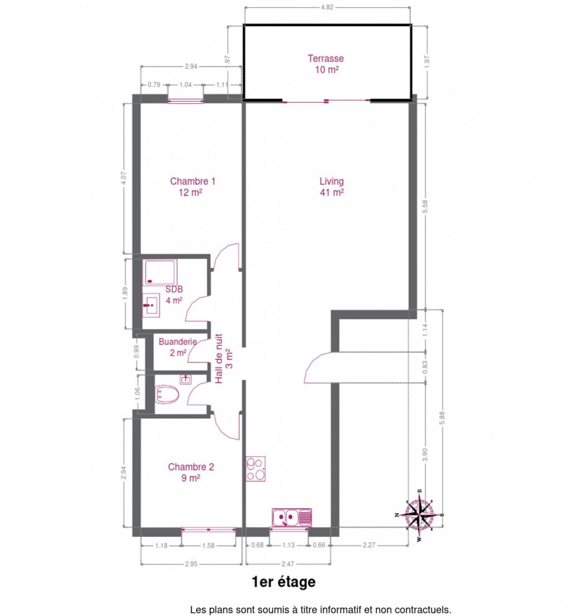
OPTION OPTION OPTION  Sis dans un petit immeuble  de 2009 sans ascenseur comprenant 3 appartements, venez découvrir ce bel appartement situé au 1er étage. Il se compose d'un agréable living avec une vue verdoyante, une cuisine équipée ouverte sur le living, 2 belles chambres de 9 et 12m², salle douche avec douche italienne, WC séparé et buanderie. Il est agrémenté d'une terrasse de 10m² en façade arrière exposée sud/est. Les qualités de l'immeuble se caractérisent tant par la performance au niveau énergétique (PEB A), que par l'agencement de l'appartement et le peu de charges communes. Un emplacement de parking privé complète l'ensemble. Centre de Court-Saint-Etienne à quelques minutes à pied et bus à proximité immédiate! L'appartement est actuellement loué. Libre 6 mois après l'acte si occupation personnelle. Une visite ? Contactez Marie au 0474/88.59.30.

Général

Référence 5240170
Catégorie Appartement
Nombre de chambres 2
Terrasse Oui
Surface habitable 73 m²

Bâtiment

Année de construction 2009
Parking extérieur Oui
Type de construction traditionnel

Nom, catégorie & situation

Nombre d'étages (numéro) 3

Equipement de base

Cuisine Oui
Double vitrage Oui
Chauffage (Format/energie) gaz (chau. centr.)
Parlophone Oui
Adoucisseur Oui

Divers

Buanderie Oui

En chiffres

Nbre de toilette(s) (nombre) 1
Chambre 1 (surface) 12.28 m²
Chambre 2 (surface) 8.75 m²
Surface nette 73 m²
Largeur de façade 5
Nbre de terrasse(s) (nombre) 1
Cuisine (surface) 0 m²
Buanderie (surface) 1.53 m²
Salle de bain 1 (surface) 3.54 m²
Hall de nuit (surface) 3.37 m²
Nbre de pièce(s) (Nombre) 8

À proximité

Transports en commun (distance (m)) 200
Transports en commun Oui
Autoroute Oui
Autoroute (distance (m)) 1400
Gare Oui
Gare (distance (m)) 700

Raccordements

Égouts Oui
Télévision par cable Oui
Câbles téléphoniques Oui
Eau Oui
Électricité (Détails) Bi-horaire, individuel

Équipements techniques

Centrale tél. Oui
Châssis (Ouvertures) pvc
Évier Oui
Type d'évier 1,5

Spécificités terrain

Type d'environnement central
Exposition de la façade avant (-) ouest
Orientation de la terrasse (-) est

Caractéristiques Principales

Surface de terrasse 1 9 m²

Type de matériau & évaluation

Type de revêtement de sol carrelages

Energie

Label PEB (Classe) A
PEB E-SPEC (kwh/m²/an) (Consommation énergétique) 74
E total (Kwh/an) 6775
PEB code unique (-) 20230214024487
Votre agent
Marie Surges
E-mail Tel.
Prendre contact pour le bien : 5240170

* Champs obligatoires

Préférences pour les cookies

La protection de vos données personnelles est importante pour nous. C’est pourquoi nous détaillons ci-dessous les différents services et fonctionnalités du site qui utilisent des cookies et nous vous laissons décider des cookies que vous souhaitez autoriser ou refuser.

Veuillez cependant noter que si vous bloquez certains types de cookies, cela pourrait impacter votre expérience de navigation sur notre site ainsi que les fonctionnalités disponibles.

Nous utilisons des cookies fonctionnels obligatoires pour assurer le bon fonctionnement du site. Ils sont, par exemple, nécessaires pour retrouver le résultat d’une recherche ou enregistrer le choix de la langue.

Certaines fonctionnalités, comme l’affichage de vidéos ou de cartes géographiques, sont assurées via des composants externes développés par des partenaires comme YouTube ou Google. Certains composants utilisent des cookies qui sont susceptibles de permettre à ces tiers de suivre le comportement des internautes afin, par exemple, de réaliser du ciblage publicitaire. L’activation de ces fonctionnalités et des cookies associés est donc soumis à votre consentement.