
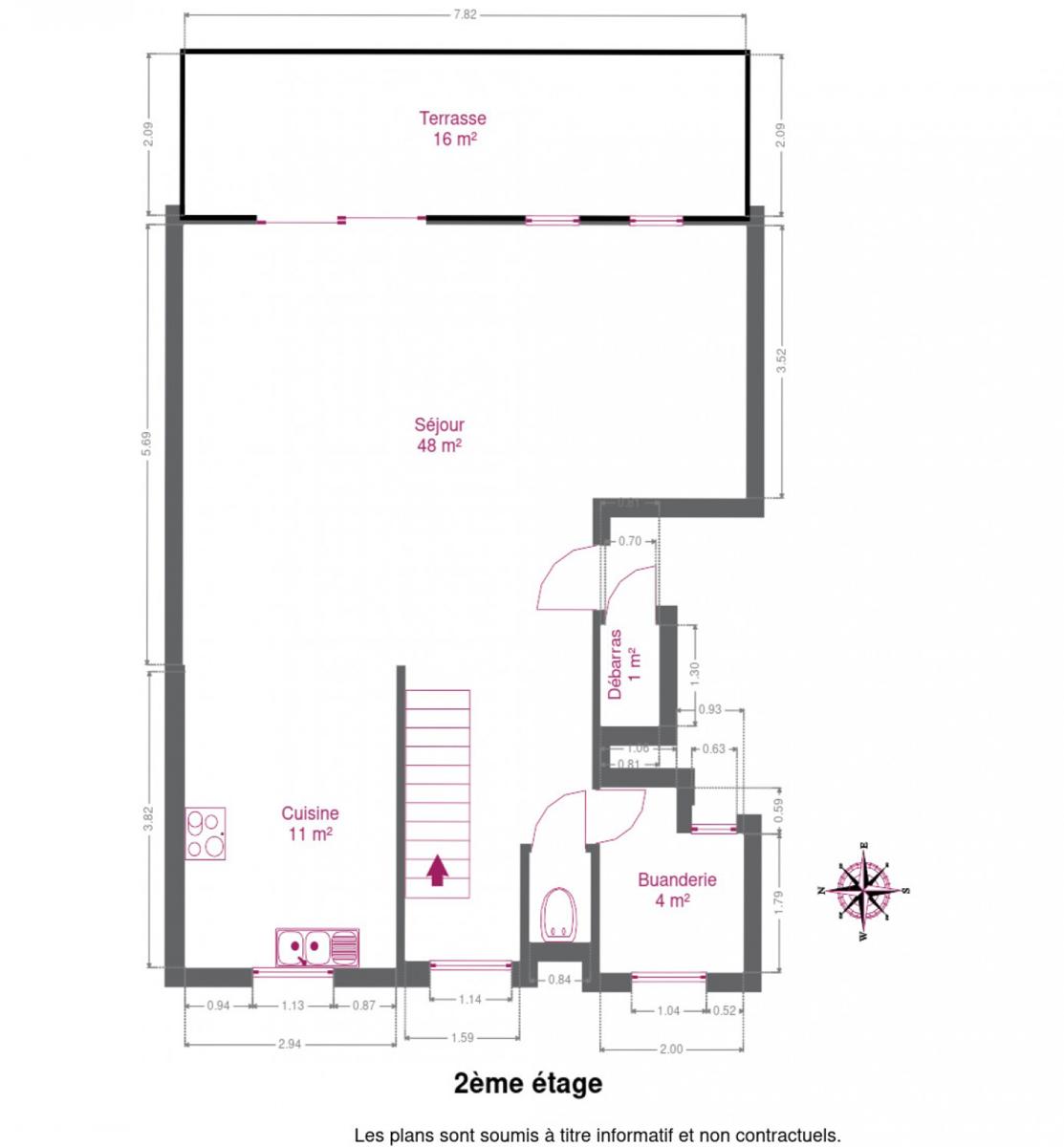
OPTION OPTION OPTION Magnifique et lumineux duplex 3 chambres dans un petit immeuble de 3 entités, idéalement situé à quelques minutes à pied du centre de Court-Saint-Etienne. Au rdc, vous trouverez une cuisine entièrement équipée ouverte sur la salle à manger, un spacieux séjour(48m²) donnant accès direct à une grande terrasse de 16m² bien orienté, un wc séparé et une buanderie. L'étage se compose d'un hall de nuit desservant 3 belles chambres et une salle de bain avec baignoire, toilette, double lavabo et douche italienne. Excellent confort technique : construction de 2009 (PEB B) Bus à 200m, écoles et gare accessibles à pied et commerces à proximité immédiate. Atout supplémentaire: Un emplacement de parking privatif derrière l'immeuble. Actuellement loué 913€/mois. Faibles charges communes (30€/mois), toutes les consommations (eau gaz et électricités) sont privatives. Libre 6 mois après l'acte si occupation personnelle. Opportunité à saisir ! Ne tardez pas et appelez Marie pour visiter au 0474/88.59.30.
Avenue des combattants 167A - 1490 Court-saint-Étienne
Référence | 5240175 |
---|---|
Catégorie | Appartement |
Nombre de chambres | 3 |
Nombre de salles de bain | 1 |
Terrasse | Oui |
Année de construction | 2009 |
---|---|
Parking extérieur | Oui |
Type de construction | traditionnel |
Etage | 2 |
---|---|
Nombre d'étages | 4 |
Surface bâtie (surf. bât. princ.) | 65 |
---|---|
Nbre de toilette(s) (nombre) | 2 |
Chambre 1 (surface) | 14.49 m² |
Chambre 2 (surface) | 10.84 m² |
Chambre 3 (surface) | 9.64 m² |
Surface brute | 115 m² |
Largeur de façade | 8 |
Nbre de terrasse(s) (nombre) | 1 |
Salle de séjour (surface) | 48.33 m² |
Cuisine (surface) | 11.23 m² |
Buanderie (surface) | 4.2 m² |
Salle de bain 1 (surface) | 7.11 m² |
Hall de nuit (surface) | 4.02 m² |
Nbre de pièce(s) (nombre) | 9 |
Cuisine | Oui |
---|---|
Double vitrage | Oui |
Chauffage (type) | gaz (chau. centr.) |
Parlophone | Oui |
Adoucisseur | Oui |
Buanderie | Oui |
---|
Transports en commun (distance (m)) | 200 |
---|---|
Transports en commun | Oui |
Autoroute | Oui |
Autoroute (distance (m)) | 1400 |
Gare | Oui |
Gare (distance (m)) | 700 |
Égouts | Oui |
---|---|
Télévision par cable | Oui |
Câbles téléphoniques | Oui |
Eau | Oui |
Électricité (Détails) | Bi-horaire, individuel |
Centrale tél. | Oui |
---|---|
Châssis (type) | pvc |
Type d'évier | 1,5 |
Évier | Oui |
Type d'environnement | central |
---|---|
Exposition de la façade avant | ouest |
Orientation de la terrasse | est |
Surface de terrasse 1 | 16 m² |
---|
Type de revêtement de sol | carrelages |
---|
Label PEB (classe) | B |
---|---|
PEB E-SPEC (kwh/m²/an) | 105 |
E total (Kwh/an) | 12819 |
PEB code unique | 20230214029121 |