Appartement - vendu - 1490 Court-saint-Étienne -

Appartement - à vendre - 1490 Court-saint-Étienne
3 1 108 m² PEB : C

Description

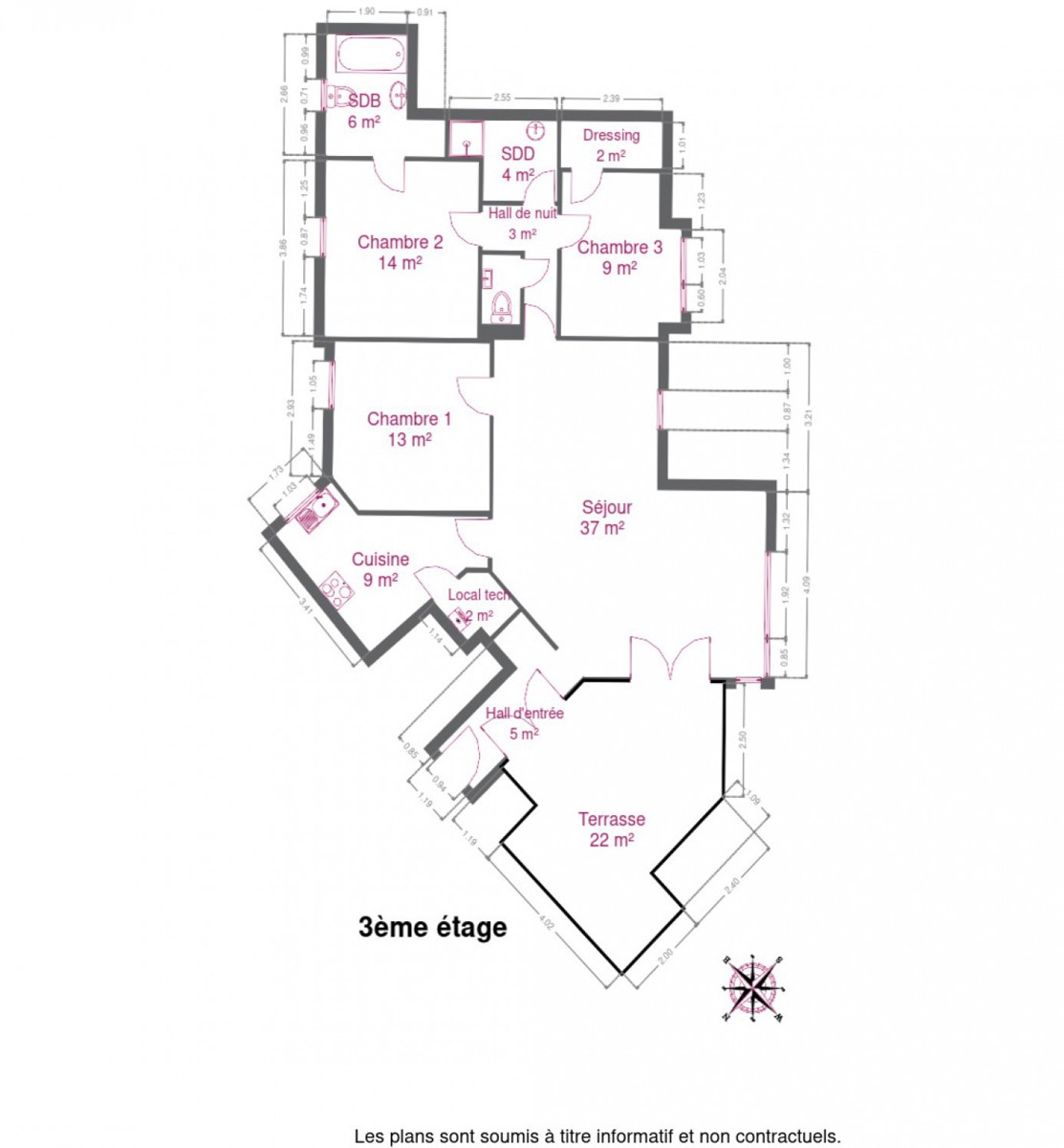
OPTION OPTION OPTION CCV Immobilier a le plaisir de vous présenter ce bel appartement de +/- 108m² situé au centre de Court Saint Étienne. Il dispose de 3 belles chambres, d'une salle de douche, d'une salle de bain attenante à l'une des chambres, d'une cuisine équipée, d'une buanderie, et d'un lumineux living donnant accès à une magnifique terrasse de 22m² orientée ouest. L'appartement se trouve dans un immeuble de 2006 bien entretenu, et dispose également d'un emplacement de parking et d'un grenier. Idéalement situé, tout est à proximité immédiate : commerces, écoles, transports en commun, banque, boulangerie, médecins,...Ne manquez pas cette opportunité d'acquérir un appartement confortable et bien agencé dans un quartier dynamique et agréable. N'hésitez pas à nous contacter pour plus d'informations ou pour une visite.

Adresse

Avenue de Vaujours 2 Boîte 3002 - 1490 Court-saint-Étienne

Général

Référence 6189491
Catégorie Appartement
Nombre de chambres 3
Nombre de salles de bain 1
Terrasse Oui
Parking Oui
Surface habitable 108 m²
Disponibilité à l'acte

Nom, catégorie & situation

Etage 3
Nombre d'étages (numéro) 3

Equipement de base

Cuisine Oui
Ascenseur Oui
Double vitrage Oui
Chauffage (Format/energie) gaz (chau. centr.)
Videophone Oui

En chiffres

Nbre de toilette(s) (nombre) 2
Nombre de sdd 1
Chambre 1 (surface) 13.35 m²
Chambre 2 (surface) 13.93 m²
Chambre 3 (surface) 9.31 m²
Surface brute 108 m²
Surface nette 108 m²
Largeur de façade 8
Nbre de terrasse(s) (nombre) 1
Salle de séjour (surface) 36.71 m²
Cuisine (surface) 9.43 m²
Dressing (surface) 2.41 m²
Salle de bain 1 (surface) 5.77 m²
Hall de nuit (surface) 3.09 m²
Nbre de pièce(s) (Nombre) 12

À proximité

Transports en commun (distance (m)) 150
Transports en commun Oui
Autoroute Oui
Autoroute (distance (m)) 7000
Gare Oui
Gare (distance (m)) 100

Raccordements

Égouts Oui
Télévision par cable Oui
Câbles téléphoniques Oui
Eau Oui
Électricité (Détails) Mono-horaire

Équipements techniques

Centrale tél. Oui
Châssis (Ouvertures) pvc
Évier Oui
Type d'évier 2

Spécificités terrain

Type d'environnement zone d'habitation
Exposition de la façade avant (-) ouest

Caractéristiques Principales

Surface de terrasse 1 22 m²

Type de matériau & évaluation

Type de revêtement de sol carrelages

Cadastre

Revenu cadastral (€) (montant) 1391 €

Certificats énergétiques

PEB E-SPEC (kwh/m²/an) (Consommation énergétique) 192
E total (Kwh/an) 22716
PEB code unique (-) 2024092005225
Date du PEB 20/09/2034

Bâtiment

Type de construction traditionnel
Votre agent
Marie Surges
E-mail Tel.
Prendre contact pour le bien : 6189491

* Champs obligatoires

Préférences pour les cookies

La protection de vos données personnelles est importante pour nous. C’est pourquoi nous détaillons ci-dessous les différents services et fonctionnalités du site qui utilisent des cookies et nous vous laissons décider des cookies que vous souhaitez autoriser ou refuser.

Veuillez cependant noter que si vous bloquez certains types de cookies, cela pourrait impacter votre expérience de navigation sur notre site ainsi que les fonctionnalités disponibles.

Nous utilisons des cookies fonctionnels obligatoires pour assurer le bon fonctionnement du site. Ils sont, par exemple, nécessaires pour retrouver le résultat d’une recherche ou enregistrer le choix de la langue.

Certaines fonctionnalités, comme l’affichage de vidéos ou de cartes géographiques, sont assurées via des composants externes développés par des partenaires comme YouTube ou Google. Certains composants utilisent des cookies qui sont susceptibles de permettre à ces tiers de suivre le comportement des internautes afin, par exemple, de réaliser du ciblage publicitaire. L’activation de ces fonctionnalités et des cookies associés est donc soumis à votre consentement.