Appartement - vendu - 1490 Court-saint-Étienne -

Appartement - à vendre - 1490 Court-saint-Étienne
3 1 127 m² PEB : F

Description

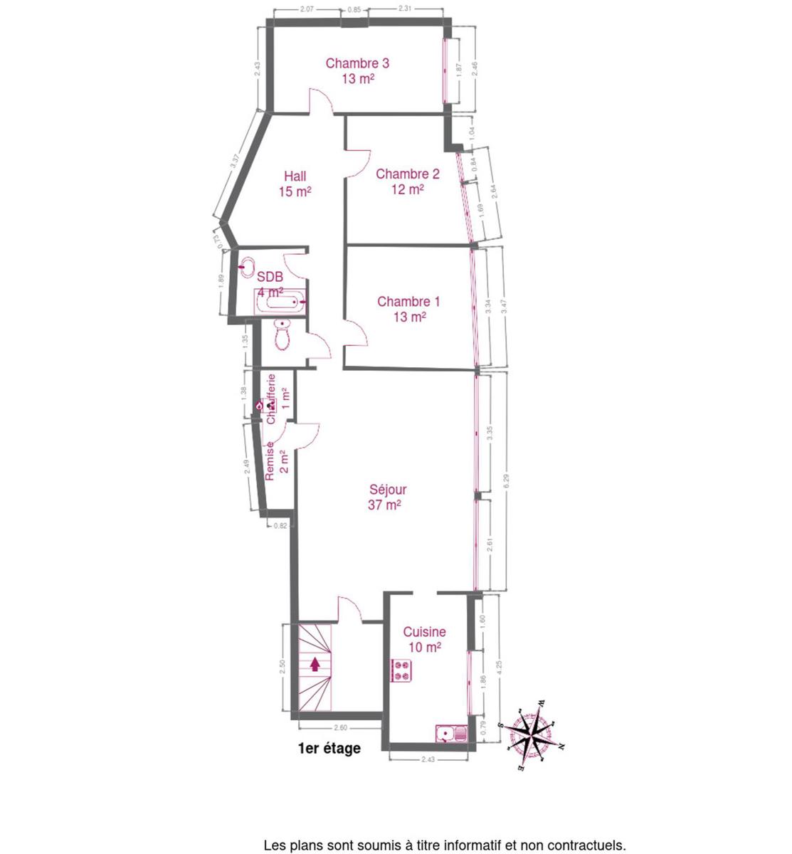
OPTION OPTION OPTION Grand appartement de 127 m² situé au cœur de Court-Saint-Etienne. Ce bien offre un vaste séjour lumineux de 43 m², parfait pour créer des moments conviviaux et la détente. Les 3 chambres (12,13,13m²) offrent un espace confortable pour une famille. L'appartement dispose de châssis double vitrage PVC installés en 2006 et d'une chaudière récente au gaz de ville. L'électricité est conforme jusqu'en 2039, vous évitant des soucis de mise aux normes pendant plusieurs années. Un emplacement de parking privé est inclus, un atout précieux en centre-ville. De plus, vous bénéficierez de nombreux espaces de rangement, tels qu'une buanderie, une chaufferie et un cellier, pour optimiser votre espace de vie. Cet appartement est à rafraîchir, offrant ainsi l'opportunité de le personnaliser selon vos goûts et envies. Avec toutes les facilités à proximité, cet emplacement est idéal pour des personnes non motorisées. Contactez Marie V. au 0496/53.75.41 pour organiser une visite et découvrir tout le potentiel de cet appartement https://www.ccv-immobilier.be/fr/bien/a-vendre/appartement/1490-court-saint-etienne/6297779

Adresse

Avenue des combattants 64 Boîte B - 1490 Court-saint-Étienne

Général

Référence 6297779
Catégorie Appartement
Nombre de chambres 3
Nombre de salles de bain 1
Parking Oui
Surface habitable 127 m²
Disponibilité à l'acte

Equipement de base

Cuisine Oui
Double vitrage Oui
Chauffage (Format/energie) gaz (chau. centr.)
Marque de chauffage 2017

Divers

Buanderie Oui

En chiffres

Nbre de toilette(s) (nombre) 1
Chambre 1 (surface) 13.39 m²
Chambre 2 (surface) 12.4 m²
Chambre 3 (surface) 12.77 m²
Surface nette 127 m²
Salle de séjour (surface) 36.68 m²
Cuisine (surface) 10.12 m²
Buanderie (surface) 10.35 m²
Salle de bain 1 (surface) 3.97 m²
Nbre de pièce(s) (Nombre) 12

À proximité

Transports en commun (distance (m)) 300
Transports en commun Oui
Autoroute Oui
Autoroute (distance (m)) 2700
Gare Oui
Gare (distance (m)) 300

Raccordements

Égouts Oui
Télévision par cable Oui
Gaz Oui
Câbles téléphoniques Oui
Électricité (Détails) Bi-horaire

Équipements techniques

Centrale tél. Oui
Châssis (Ouvertures) pvc
Évier Oui
Type d'évier 1,5

Spécificités terrain

Type d'environnement zone d'habitation
Exposition de la façade avant (-) nord

Sécurité

Détails volets (type) 2006

Type de matériau & évaluation

Type de revêtement de sol vinyl

Cadastre

Revenu cadastral (€) (montant) 1236 €

Energie

Label PEB (Classe) F
PEB E-SPEC (kwh/m²/an) (Consommation énergétique) 444
E total (Kwh/an) 62894
PEB code unique (-) 20240702004072

Bâtiment

Type de construction traditionnel
Votre agent
Marie Verlinden
E-mail Tel.
Prendre contact pour le bien : 6297779

* Champs obligatoires

Préférences pour les cookies

La protection de vos données personnelles est importante pour nous. C’est pourquoi nous détaillons ci-dessous les différents services et fonctionnalités du site qui utilisent des cookies et nous vous laissons décider des cookies que vous souhaitez autoriser ou refuser.

Veuillez cependant noter que si vous bloquez certains types de cookies, cela pourrait impacter votre expérience de navigation sur notre site ainsi que les fonctionnalités disponibles.

Nous utilisons des cookies fonctionnels obligatoires pour assurer le bon fonctionnement du site. Ils sont, par exemple, nécessaires pour retrouver le résultat d’une recherche ou enregistrer le choix de la langue.

Certaines fonctionnalités, comme l’affichage de vidéos ou de cartes géographiques, sont assurées via des composants externes développés par des partenaires comme YouTube ou Google. Certains composants utilisent des cookies qui sont susceptibles de permettre à ces tiers de suivre le comportement des internautes afin, par exemple, de réaliser du ciblage publicitaire. L’activation de ces fonctionnalités et des cookies associés est donc soumis à votre consentement.