Maison - vendu - 1300 Wavre -

Maison - à vendre - 1300 Wavre
2 1 110 m² PEB : C

Description

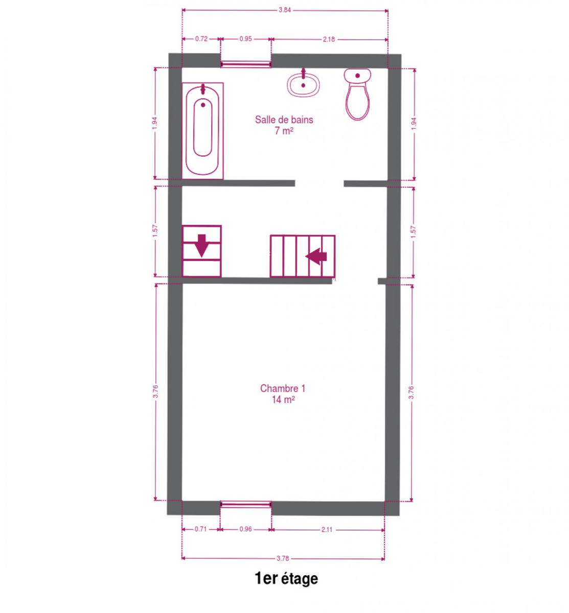
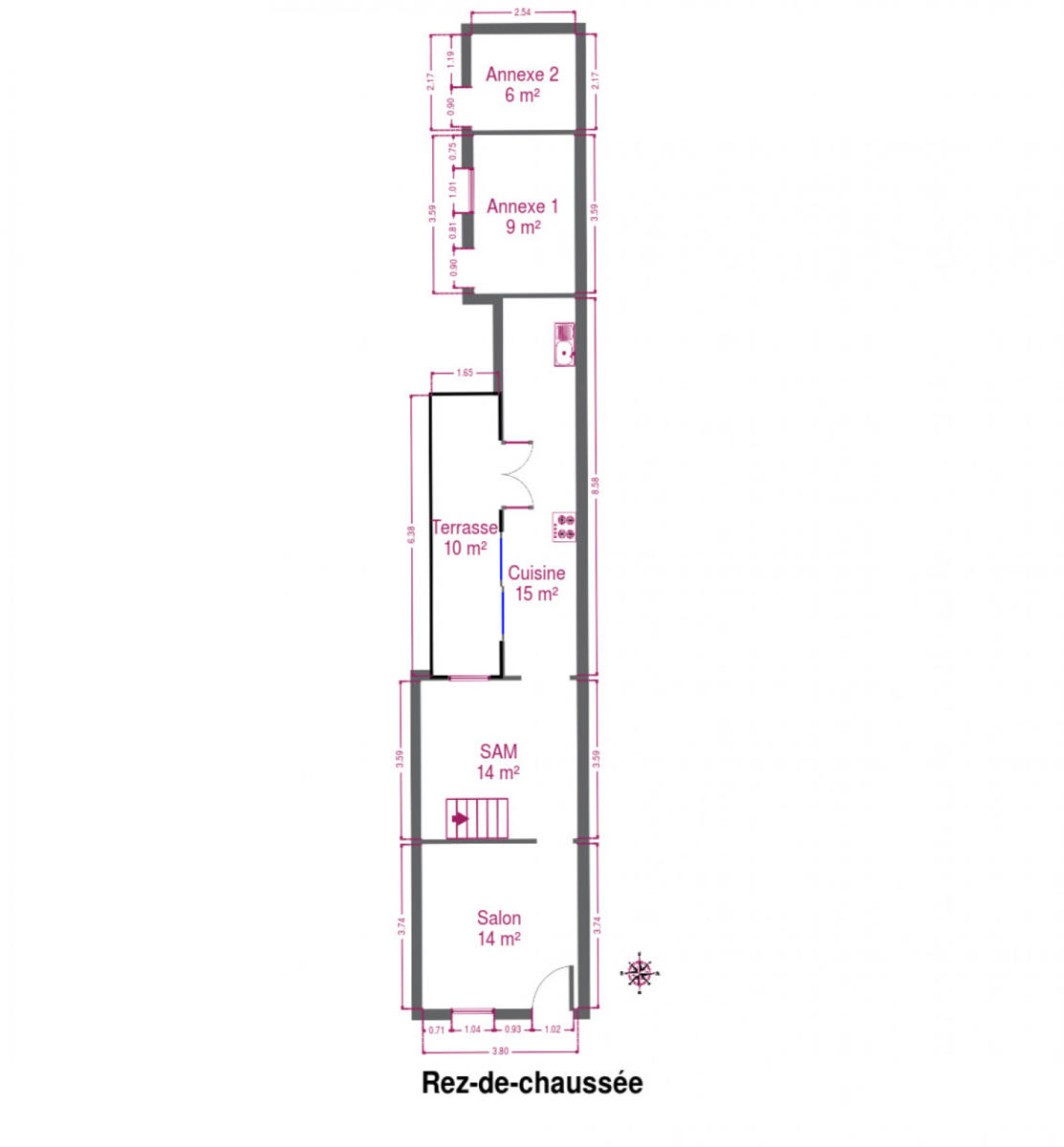
OPTION OPTION OPTION, COMPROMIS EN COURS...!! Venez découvrir cette très mignonne maison villageoise située sur les hauteurs de Wavre, au calme absolu d'une petite rue à sens unique, mais néanmoins à 1km du centre ville et de ses nombreuses facilités: commerces, écoles, gare... Elle propose sur 136m²: un espace de vie divisé en salon et salle à manger, très belle cuisine équipée neuve, tout en longueur et très lumineuse avec baie vitrée ouvrante sur une jolie terrasse en bois très intime, accès vers les annexes et le petit jardin. A l'étage, salle de bains et une grande chambre. Au 2ème sous toiture une grande chambre parentale divisible en 2 chambres plus petites au besoin... Des caves très saines, une place de parking privative et un jardin potager avec serre complètent le tout. Technique: électricité conforme (2018 jusque 2043), PEB C, nouveaux châssis aluminium triple vitrage, chaudière neuve (2018), toiture neuve (couverture et isolation),... POSSIBILITÉ DE RÉDUCTION DES DROITS D'ENREGISTREMENT (RC net 397€)... VISITES: merci d'appeler LAURENCE au 0471/43.48.59. https://www.ccv-immobilier.be/fr/bien/a-vendre/maison/1300-wavre/4735708

Adresse

Rue Sainte-Anne 110 - 1300 Wavre

Général

Référence 4735708
Catégorie Maison
Nombre de chambres 2
Nombre de salles de bain 1
Jardin Oui
Surface du jardin 280 m²
Garage Non
Terrasse Oui
Parking Oui
Surface habitable 110 m²
Surface du terrain 280 m²
Disponibilité à l'acte

Bâtiment

Année de construction 1880
Parking intérieur Non
Parking extérieur Oui
Année de rénovation 2018
Type de construction traditionnel

Nom, catégorie & situation

Nombre d'étages (numéro) 3

En chiffres

Largeur front de rue 4.23
Surface bâtie (-) 60
Nbre de toilette(s) (nombre) 1
Chambre 1 (surface) 14 m²
Chambre 2 (surface) 24 m²
Surface brute 136 m²
Surface nette 110 m²
Largeur de façade 4
Profondeur terrain 30
Nbre de terrasse(s) (nombre) 1
Salle à manger (surface) 14 m²
Cuisine (surface) 15 m²
Salle de bain 1 (surface) 8 m²
Caves (surface) 27 m²
Orientation de la terrasse 1 (-) sud
Nbre de pièce(s) (Nombre) 10

Equipement de base

Cuisine Oui
Double vitrage Oui
Chauffage (Format/energie) gaz (chau. centr.)
Sdb (Type) bain

À proximité

Transports en commun (distance (m)) 300
Transports en commun Oui
Autoroute Oui
Autoroute (distance (m)) 1400
Gare Oui
Gare (distance (m)) 300

Equipement extérieur

Annexe Oui
Surface (m²) de annexe 9 m²
Jardin (détails) déclivité plat, aménagé pelouse, Fermé clôtures

Raccordements

Égouts Oui
Télévision par cable Oui
Gaz Oui
Câbles téléphoniques Oui
Eau Oui
Électricité (Détails) Bi-horaire

Équipements techniques

Centrale tél. Oui
Châssis (Ouvertures) aluminium
Vitrage (type) triple vitrage
Évier Oui
Type d'évier 1

Spécificités terrain

Type d'environnement calme
Exposition de la façade avant (-) nord
Orientation de la terrasse (-) sud
Orientation du jardin (-) sud

Caractéristiques Principales

Surface de terrasse 1 11 m²

Type de matériau & évaluation

Type de revêtement de sol bambou
État de la toiture (appréciation) 4
État des châssis (-) 4

Cadastre

Revenu cadastral (€) (montant) 397 €

Divers

Cave Oui

Energie

Label PEB (Classe) C
PEB E-SPEC (kwh/m²/an) (Consommation énergétique) 221
E total (Kwh/an) 24965
PEB code unique (-) 20220509026613
PEB valide jusqu'au (validité) 09/05/2031
Votre agent
Didier Piraux
E-mail Tel.
Prendre contact pour le bien : 4735708

* Champs obligatoires

Préférences pour les cookies

La protection de vos données personnelles est importante pour nous. C’est pourquoi nous détaillons ci-dessous les différents services et fonctionnalités du site qui utilisent des cookies et nous vous laissons décider des cookies que vous souhaitez autoriser ou refuser.

Veuillez cependant noter que si vous bloquez certains types de cookies, cela pourrait impacter votre expérience de navigation sur notre site ainsi que les fonctionnalités disponibles.

Nous utilisons des cookies fonctionnels obligatoires pour assurer le bon fonctionnement du site. Ils sont, par exemple, nécessaires pour retrouver le résultat d’une recherche ou enregistrer le choix de la langue.

Certaines fonctionnalités, comme l’affichage de vidéos ou de cartes géographiques, sont assurées via des composants externes développés par des partenaires comme YouTube ou Google. Certains composants utilisent des cookies qui sont susceptibles de permettre à ces tiers de suivre le comportement des internautes afin, par exemple, de réaliser du ciblage publicitaire. L’activation de ces fonctionnalités et des cookies associés est donc soumis à votre consentement.