Villa - vendu - 1325 Dion-valmont -

Villa - à vendre - 1325 Dion-valmont
4 2 160 m² 1 2 PEB : E

Description

OPTION OPTION OPTION  Comme Chez Vous Immobilier vous présente cette charmante villa de +/- 200 m2, avec sa situation idéale dans un quartier résidentiel calme (rue peu fréquentée), à quelques pas de toutes les facilités (LLN, commerces, écoles, centre sportif, N25, E411 …). Elle vous propose un lumineux living avec K7 à bois, une spacieuse cuisine équipée avec coin déjeuner, 4 belles chambres (11,14,17,20) dont 2 au rez, 2 salles d'eau, 2 bureaux dont 1 ouvert à l'étage, garage et caves. Le tout, agrémenté d'un magnifique jardin  de 9 a 48 ca arboré et intimiste, un vrai paradis pour les enfants. Chaudière au gaz à condensation, citerne d'eau de pluie, double vitrage bois et égouts directs. Elle n'attend que vos valises et un rafraichissement à votre goût personnel ! Une visite s'impose absolument, à très bientôt! Faire offre à partir de 475.000€, sous réserve d'acceptation par le propriétaire. https://www.ccv-immobilier.be/fr/bien/a-vendre/maison/1325-dion-valmont/4795470

Adresse

Avenue des Attelages 10 - 1325 Dion-valmont

Général

Référence 4795470
Catégorie Villa
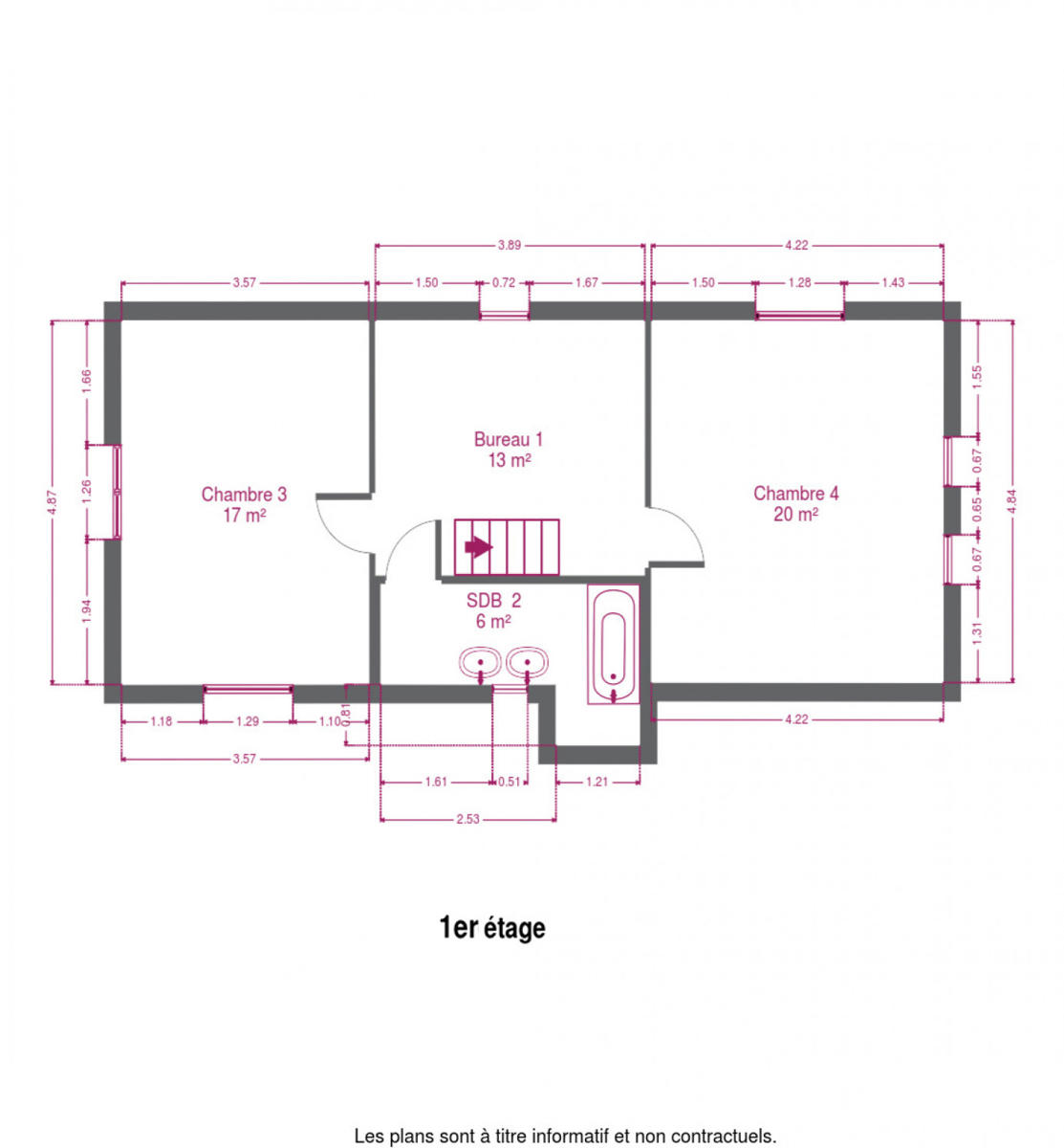
Nombre de chambres 4
Nombre de salles de bain 2
Jardin Oui
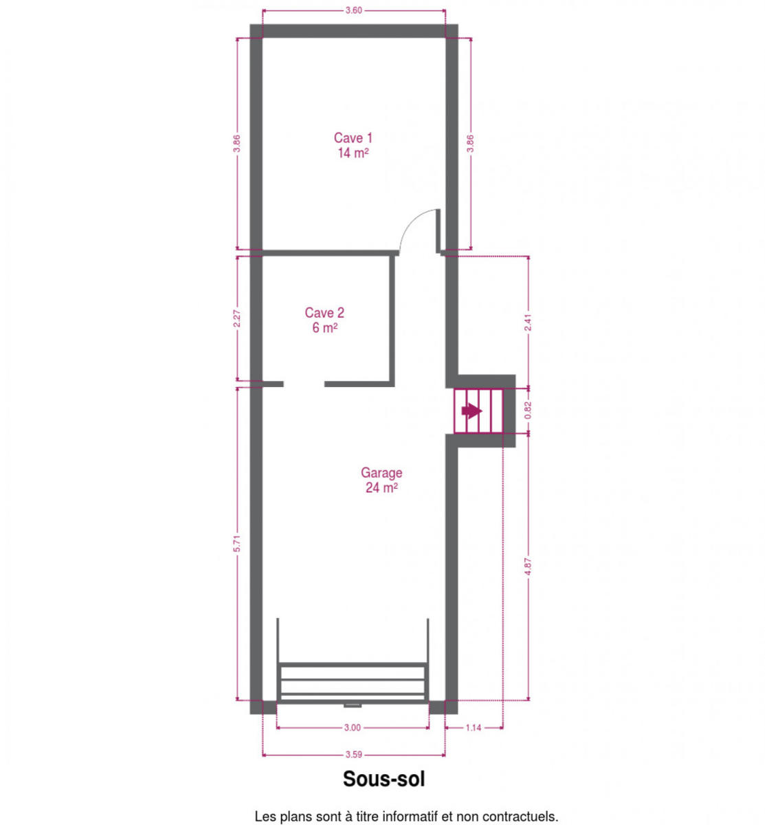
Garage Oui
Terrasse Oui
Parking Oui
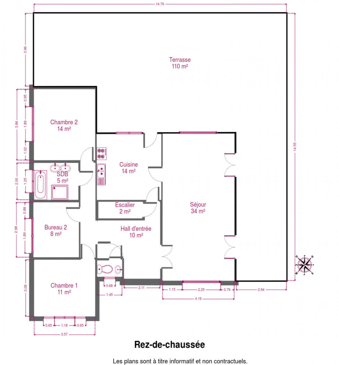
Surface habitable 160 m²
Surface du terrain 948 m²
Disponibilité en fonct. du propriétaire

Bâtiment

Année de construction 1976
Nombre de garage 1
Parking intérieur Oui
Espace ventilé Oui
Parking(s) extérieur (nombre) 2
Type de toit en pente
Garage (détails) 1 voiture + rangement
Type de construction traditionnel

Nom, catégorie & situation

Nombre d'étages (numéro) 1

En chiffres

Largeur front de rue 23
Surface bâtie (surf. bât. princ.) 103
Nbre de toilette(s) (nombre) 2
Chambre 1 (surface) 10.97 m²
Chambre 2 (surface) 13.78 m²
Chambre 3 (surface) 17.39 m²
Chambre 4 (surface) 20.42 m²
Surface brute 205 m²
Surface nette 160 m²
Largeur de façade 12
Profondeur terrain 42
Garage (surface) 23.8 m²
Salle de séjour (surface) 33.51 m²
Cuisine (surface) 13.46 m²
Salle de bain 1 (surface) 5.19 m²
Caves (surface) 19.53 m²
Bureau (surface) 13.25 m²
Hall d'entrée (surface) 10.05 m²
Orientation de la terrasse 1 (-) est
Salle de bains 2 (surface) 5.99 m²
Hall de nuit (surface) 4.48 m²
Nbre de pièce(s) (Nombre) 18

Equipement de base

Cuisine Oui
Double vitrage Oui
Chauffage (Format/energie) gaz (chau. centr.)
Type de cuisine amer. super-équipée
Sdb (Type) douche et bain
Marque de chauffage Vaillant de 2005
Sdb 2 (type) bain
Cuisine (détails) avec coin déjeuner

Divers

Buanderie Oui
Bureau Oui
Coin à déjeuner Oui
Cave Oui

Sécurité

Volets Oui
Détails volets (type) Décoratifs

Domaine juridique

Servitude Non

Raccordements

Égouts Oui
Télévision par cable Oui
Gaz Oui
Câbles téléphoniques Oui
Eau Oui
Électricité (Détails) Mono-horaire

Équipements techniques

Centrale tél. Oui
Châssis (Ouvertures) bois
Vitrage (type) double vitrage
Évier Oui
Type d'évier 1,5

Spécificités terrain

Type d'environnement calme
Exposition de la façade avant (-) sud-ouest

Caractéristiques Principales

Surface de terrasse 1 110 m²

Type de matériau & évaluation

Type de revêtement de sol carrelages

Equipement extérieur

Citerne d'eau Oui
Jardin (détails) déclivité plat, Déclivité plat, Déclivité en pente
Abri de jardin Oui

À proximité

Magasins Oui
Ecoles Oui
Transports en commun Oui
Centre-ville Oui
Centre sportif Oui
Autoroute Oui

Certificats énergétiques

Label PEB (Classe) E
PEB E-SPEC (kwh/m²/an) (Consommation énergétique) 401
E total (Kwh/an) 64154
PEB code unique (-) 20220627024822
PEB valide jusqu'au (validité) 27/06/2032
Votre agent
Marie Surges
E-mail Tel.
Prendre contact pour le bien : 4795470

* Champs obligatoires

Préférences pour les cookies

La protection de vos données personnelles est importante pour nous. C’est pourquoi nous détaillons ci-dessous les différents services et fonctionnalités du site qui utilisent des cookies et nous vous laissons décider des cookies que vous souhaitez autoriser ou refuser.

Veuillez cependant noter que si vous bloquez certains types de cookies, cela pourrait impacter votre expérience de navigation sur notre site ainsi que les fonctionnalités disponibles.

Nous utilisons des cookies fonctionnels obligatoires pour assurer le bon fonctionnement du site. Ils sont, par exemple, nécessaires pour retrouver le résultat d’une recherche ou enregistrer le choix de la langue.

Certaines fonctionnalités, comme l’affichage de vidéos ou de cartes géographiques, sont assurées via des composants externes développés par des partenaires comme YouTube ou Google. Certains composants utilisent des cookies qui sont susceptibles de permettre à ces tiers de suivre le comportement des internautes afin, par exemple, de réaliser du ciblage publicitaire. L’activation de ces fonctionnalités et des cookies associés est donc soumis à votre consentement.