Maison - vendu - 1330 Rixensart -

Maison - à vendre - 1330 Rixensart
5 2 240 m² 1 3 PEB : C

Description

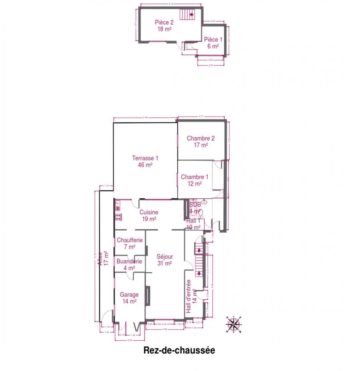
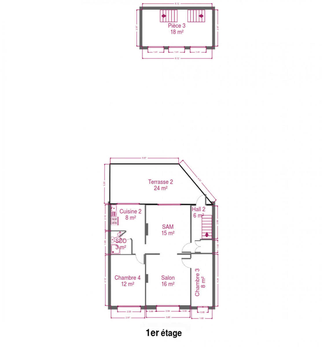
OPTION ! Dans une petite rue calme à sens unique, à quelques pas de la très belle place de Bourgeois et de son église, venez laisser libre cours à votre imagination! Cette belle bâtisse des années 60 se compose actuellement sur 240m², d'un rez-de-chaussée avec espace de vie, cuisine, buanderie, garage, salle de bains et 2 chambres. L'étage est aménagé en appartement autonome (y compris les énergies) incluant salle de douche, cuisine, espace de vie, chambre et bureau. Un grand grenier aménageable de 50m², une terrasse et un jardin, une cave ainsi qu'une annexe extérieure de 40m² (en fond de jardin) complètent le tout. Différents projets sont possibles: grande maison unifamiliale 5 à 7 chambres, possibilité d'un espace profession libérale avec entrée indépendante au rez, ou exploiter la maison en "habitation kangourou" en maintenant les 2 appartements après mise au goût du jour... Toutes les idées sont les bienvenues. Rafraîchissements et mise au goût du jour nécessaires. Faire offre à partir de 380.000€, sous réserve d'acceptation par le propriétaire. VISITES: appelez LAURENCE au 0471/43.48.59. https://www.ccv-immobilier.be/fr/bien/a-vendre/maison/1330-rixensart/4652183

Adresse

Rue Lambermont 1 - 1330 Rixensart

Général

Référence 4652183
Catégorie Maison
Meublé Non
Nombre de chambres 5
Nombre de salles de bain 2
Jardin Oui
Surface du jardin 496 m²
Garage Oui
Terrasse Oui
Parking Oui
Surface habitable 240 m²
Surface du terrain 496 m²
Disponibilité à l'acte

Bâtiment

Année de construction 1950
Nombre de garage 1
Parking intérieur Non
Parking extérieur Oui
Parking(s) intérieur (nombre) 1
Parking(s) extérieur (nombre) 2
Type de toit en pente
Type de construction traditionnel

Nom, catégorie & situation

Nombre d'étages (numéro) 1

En chiffres

Largeur front de rue 12.84
Surface bâtie (surf. bât. princ.) 112.85
Surface de terrasse 2 24 m²
Nbre de toilette(s) (nombre) 2
Nombre de sdd 1
Chambre 1 (surface) 12 m²
Chambre 2 (surface) 17 m²
Chambre 3 (surface) 12 m²
Chambre 4 (surface) 15 m²
Chambre 5 (surface) 16 m²
Surface brute 365 m²
Surface nette 240 m²
Largeur de façade 9
Profondeur terrain 41
Garage (surface) 14 m²
Nbre de terrasse(s) (nombre) 2
Orientation de la terrasse 2 (-) nord-ouest
Salle de séjour (surface) 31 m²
Salle à manger (surface) 15 m²
Cuisine (surface) 19 m²
Buanderie (surface) 5 m²
Salle de bain 1 (surface) 4 m²
Caves (surface) 19.67 m²
Grenier (surface) 50 m²
Hall d'entrée (surface) 14 m²
Orientation de la terrasse 1 (-) nord-ouest
Nbre de pièce(s) (Nombre) 23

Equipement de base

Cuisine Oui
Double vitrage Oui
Chauffage (Format/energie) gaz (chau. centr.)
Type de cuisine semi-équipée
Sdb (Type) bain
Marque de chauffage Vaillant
Sdb 2 (type) douche

Divers

Buanderie Oui
Bureau Oui
Type de grenier seulement rangement
Coin à déjeuner Oui
Grenier Oui
Cave Oui

À proximité

Magasins (distance (m)) 1500
Écoles (distance (m)) 1500
Transports en commun (distance (m)) 300
Centre-ville (distance (m)) 1500
Magasins Oui
Ecoles Oui
Transports en commun Oui
Centre-ville Oui
Autoroute Oui
Autoroute (distance (m)) 6500
Gare Oui
Gare (distance (m)) 3000

Equipement extérieur

Annexe Oui
Surface (m²) de annexe 40 m²
Jardin (détails) nord-ouest, déclivité plat, Aménagé pelouse

Raccordements

Égouts Oui
Télévision par cable Oui
Câbles téléphoniques Oui
Eau Oui
Électricité (Détails) Bi-horaire

Équipements techniques

Centrale tél. Oui
Châssis (Ouvertures) bois
Vitrage (type) double vitrage
Évier Oui
Type d'évier 1

Spécificités terrain

Type d'environnement calme
Exposition de la façade avant (-) sud-est
Orientation du jardin (-) nord ouest

Caractéristiques Principales

Surface de terrasse 1 46 m²

Type de matériau & évaluation

Type de revêtement de sol carrelages
État de la toiture (appréciation) 3
État des châssis (-) 3
État des sanitaires (appréciation) 2
État du chauffage (appréciation) 4
État de la cuisine (appréciation) 2
État des sols (appréciation) 3

Cadastre

Revenu cadastral (€) (montant) 1151 €

Sécurité

Alarme Oui

Energie

Label PEB (Classe) C
PEB E-SPEC (kwh/m²/an) (Consommation énergétique) 205
E total (Kwh/an) 16198
PEB code unique (-) 20220215017132
Votre agent
Marie Verlinden
E-mail Tel.
Prendre contact pour le bien : 4652183

* Champs obligatoires

Préférences pour les cookies

La protection de vos données personnelles est importante pour nous. C’est pourquoi nous détaillons ci-dessous les différents services et fonctionnalités du site qui utilisent des cookies et nous vous laissons décider des cookies que vous souhaitez autoriser ou refuser.

Veuillez cependant noter que si vous bloquez certains types de cookies, cela pourrait impacter votre expérience de navigation sur notre site ainsi que les fonctionnalités disponibles.

Nous utilisons des cookies fonctionnels obligatoires pour assurer le bon fonctionnement du site. Ils sont, par exemple, nécessaires pour retrouver le résultat d’une recherche ou enregistrer le choix de la langue.

Certaines fonctionnalités, comme l’affichage de vidéos ou de cartes géographiques, sont assurées via des composants externes développés par des partenaires comme YouTube ou Google. Certains composants utilisent des cookies qui sont susceptibles de permettre à ces tiers de suivre le comportement des internautes afin, par exemple, de réaliser du ciblage publicitaire. L’activation de ces fonctionnalités et des cookies associés est donc soumis à votre consentement.