Maison - à vendre - 1330 Rixensart - 625 000 €

Maison - à vendre - 1330 Rixensart
6 2 231 m² 1 2 PEB : F

Description

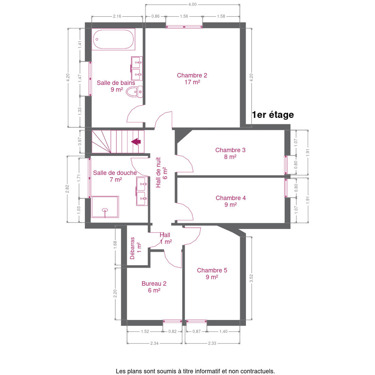
Venez découvrir cette charmante maison kangourou idéalement située à proximité immédiate du centre de Rixensart et de toutes ses facilités (gare de Rixensart, bus, commerces, écoles...). Le bien est divisé en deux unités : un appartement d’une chambre actuellement loué et une grande maison familiale composée de 5 chambres et d’un bureau, avec un bail à durée indéterminée jusqu’au décès du propriétaire actuel ou en cas d’incapacité du futur locataire de vivre dans la maison (89 ans). La maison offre un grand séjour de 22m², deux salles à manger, une cuisine, un bureau ou une chambre et une buanderie. À l’étage, vous trouverez quatre chambres dont une grande suite parentale avec sa salle de bains attenante ainsi qu’une salle de douche. L’aménagement de l’étage peut être facilement modifié pour créer de plus grandes chambres. L’appartement comprend un séjour de 19m², une cuisine équipée, une salle de bains et une chambre de 11m². À l’extérieur, vous profiterez d’un grand garage, de deux belles terrasses et d’un vaste terrain de 11 ares 28. Côté technique, le bien dispose d’une chaudière au gaz de ville et présente un PEB F pour la maison et l’appartement. Idéal pour les investisseurs avec deux revenus locatifs garantis ou pour une famille à la recherche d’un futur logement kangourou. Une question ? Contactez Martin au 0493/50.00.70. https://www.ccv-immobilier.be/fr/bien/a-vendre/maison/1330-rixensart/7228577

Adresse

Avenue Reine Astrid 7 - 1330 Rixensart

Général

Référence 7228577
Catégorie Maison
Nombre de chambres 6
Nombre de salles de bain 2
Jardin Oui
Surface du jardin 1128 m²
Garage Oui
Terrasse Oui
Parking Oui
Surface habitable 231 m²
Surface du terrain 1128 m²
Disponibilité en fonct. du propriétaire

Nom, catégorie & situation

Nombre d'étages 3

Bâtiment

Nombre de garage 1
Parking intérieur Oui
Parking extérieur Oui
Parking(s) extérieur (nombre) 2
Type de construction traditionnel

Equipement de base

Cuisine Oui
Chauffage (type) gaz

Divers

Buanderie Oui
Bureau Oui
Cave Oui

En chiffres

Nbre de toilette(s) (nombre) 3
Chambre 2 (surface) 16.81 m²
Chambre 3 (surface) 8.47 m²
Chambre 4 (surface) 8.66 m²
Chambre 5 (surface) 9.08 m²
Surface brute 288 m²
Surface nette 231 m²
Garage (surface) 24.46 m²
Salle de séjour (surface) 19.16 m²
Salle à manger (surface) 15.7 m²
Cuisine (surface) 7.07 m²
Buanderie (surface) 7.3 m²
Salle de bain 1 (surface) 4.43 m²
Caves (surface) 8.38 m²
Bureau (surface) 9.36 m²
Hall d'entrée (surface) 4.43 m²
Orientation de la terrasse 1 sud
Hall de nuit (surface) 6.45 m²

À proximité

Transports en commun (distance (m)) 150
Transports en commun Oui
Autoroute Oui
Autoroute (distance (m)) 5600
Gare Oui
Gare (distance (m)) 200

Raccordements

Égouts Oui
Gaz Oui
Eau Oui
Électricité (Détails) Mono-horaire, bi-horaire

Équipements techniques

Châssis (type) bois
Évier Oui
Type d'évier 1,5

Spécificités terrain

Type d'environnement zone d'habitation
Orientation de la terrasse sud
Orientation du jardin nord

Caractéristiques Principales

Surface de terrasse 1 26 m²

Type de matériau & évaluation

Type de revêtement de sol carrelages

Equipement extérieur

Jardin (détails) orientation Sud, fermé haies, nord, Éclairage
Abri de jardin Oui

Energie

Label PEB (classe) F
PEB E-SPEC (kwh/m²/an) 434
E total (Kwh/an) 95608
PEB code unique 20251017030437
Votre agent
Martin Knaepen
E-mail Tel.
Prendre contact pour le bien : 7228577

* Champs obligatoires

Préférences pour les cookies

La protection de vos données personnelles est importante pour nous. C’est pourquoi nous détaillons ci-dessous les différents services et fonctionnalités du site qui utilisent des cookies et nous vous laissons décider des cookies que vous souhaitez autoriser ou refuser.

Veuillez cependant noter que si vous bloquez certains types de cookies, cela pourrait impacter votre expérience de navigation sur notre site ainsi que les fonctionnalités disponibles.

Nous utilisons des cookies fonctionnels obligatoires pour assurer le bon fonctionnement du site. Ils sont, par exemple, nécessaires pour retrouver le résultat d’une recherche ou enregistrer le choix de la langue.

Certaines fonctionnalités, comme l’affichage de vidéos ou de cartes géographiques, sont assurées via des composants externes développés par des partenaires comme YouTube ou Google. Certains composants utilisent des cookies qui sont susceptibles de permettre à ces tiers de suivre le comportement des internautes afin, par exemple, de réaliser du ciblage publicitaire. L’activation de ces fonctionnalités et des cookies associés est donc soumis à votre consentement.