
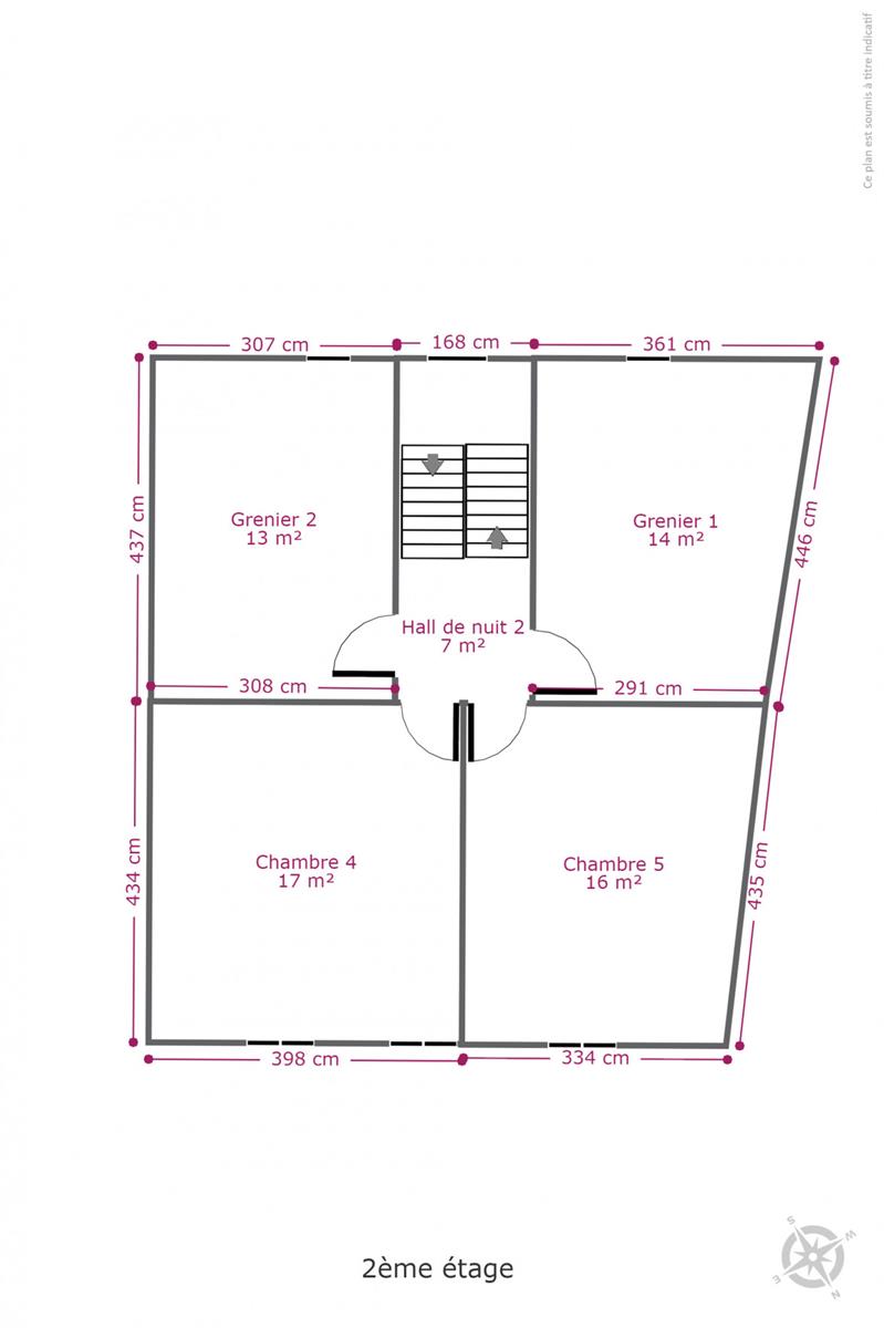
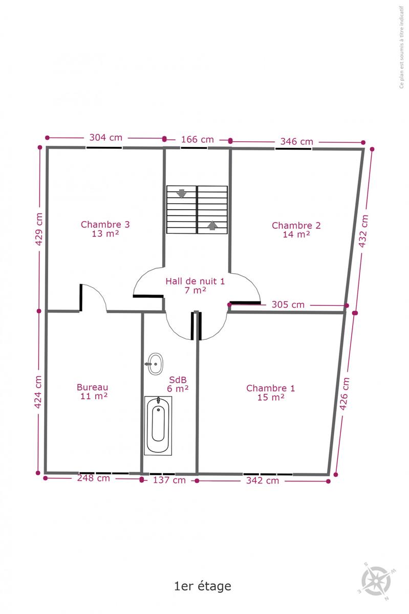
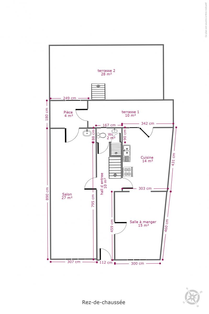
SOUS OFFRE, STOP VISITES!! Au cœur de ville d'Ottignies, à 2 pas du Douaire, venez découvrir cette maison de caractère 3 façades de 286m² utiles totalement à rénover. Idéale pour famille nombreuse, profession libérale ou pour développer un projet de bien de rapport de 3 unités (sous réserve de l'accord des autorités compétentes). Actuellement la maison est composée de 5 belles chambres, 1 bureau, 2 greniers, 1 salle de bains, 1 WC, un salon, une salle à manger et une cuisine.
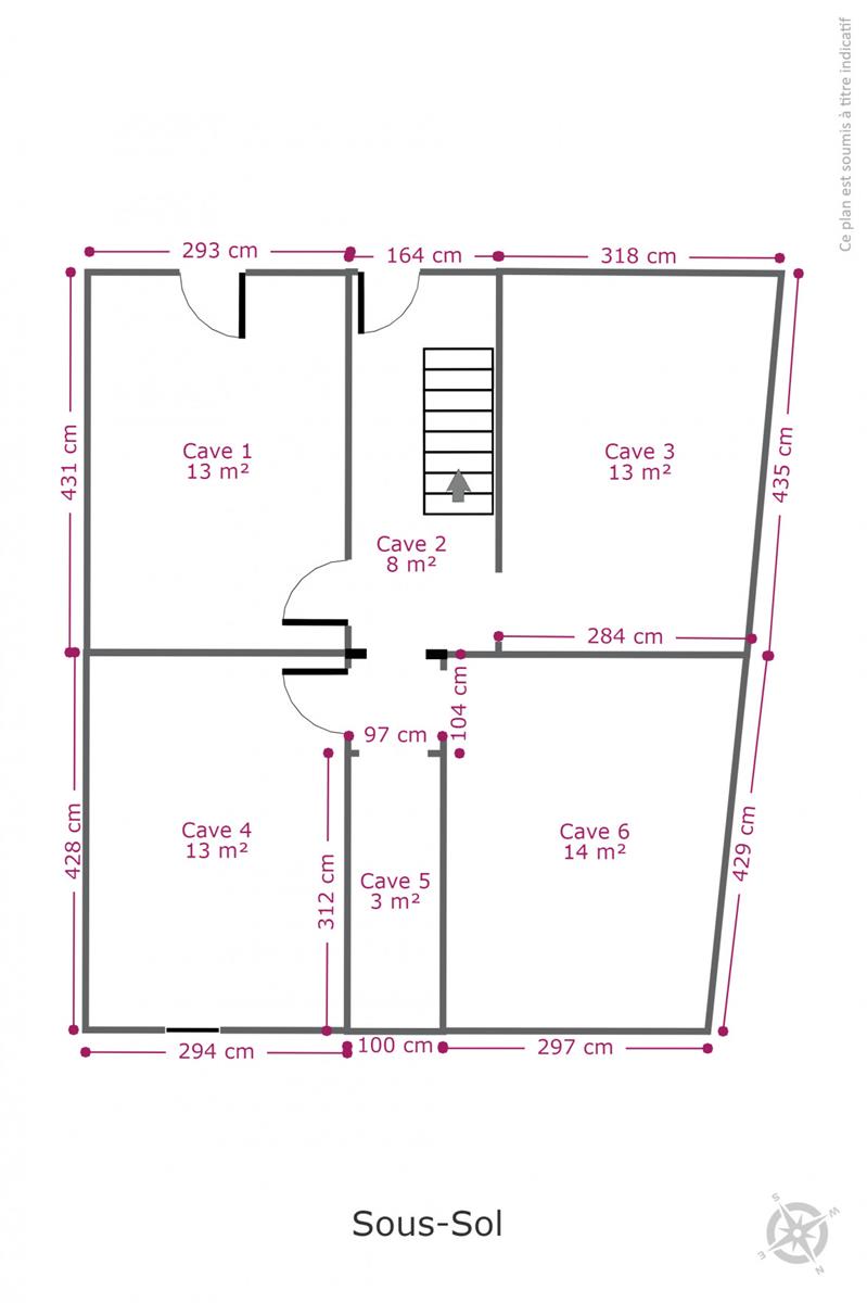
De plus, le bien dispose d'un sous-sol composé de différentes caves, accessibles également via le jardin. Celui est plat, facile d'entretien et orienté Sud/Ouest avec un accès à rue. 2 belles terrasses dont 1 couverte avec un espace de rangement. Commerces, écoles et gare d'Ottignies à proximité immédiate ! L'investissement idéal avec beaucoup de potentiel et de possibilités.
Faire offre à partir de 299.000€ sous réserve de l'acceptation des propriétaires. Une visite ? Contactez Marie au 0474/88.59.30 - www.ccv-immobilier.be
rue du Moulin 8A - 1340 Ottignies-Louvain-la-Neuve
Référence | 4262981 |
---|---|
Catégorie | Maison |
Nombre de chambres | 5 |
Nombre de salles de bain | 1 |
Jardin | Oui |
Terrasse | Oui |
Surface habitable | 219 m² |
Surface du terrain | 310 m² |
Disponibilité | à l'acte |
Nombre d'étages | 3 |
---|
Largeur front de rue | 7.4 |
---|---|
Surface bâtie (surf. bât. princ.) | 71 |
Surface de terrasse 2 | 28 m² |
Nbre de toilette(s) (nombre) | 1 |
Chambre 1 (surface) | 15.42 m² |
Chambre 2 (surface) | 13.79 m² |
Chambre 3 (surface) | 13.05 m² |
Chambre 4 (surface) | 17.29 m² |
Chambre 5 (surface) | 15.58 m² |
Surface brute | 282.73 m² |
Surface nette | 219.54 m² |
Largeur de façade | 7.4 |
Profondeur terrain | 40 |
Nbre de terrasse(s) (nombre) | 2 |
Orientation de la terrasse 2 | sud-est |
Salle à manger (surface) | 14.88 m² |
Cuisine (surface) | 27.25 m² |
Caves (surface) | 12 m² |
Grenier (surface) | 14.36 m² |
Salle de bain 1 (surface) | 5.82 m² |
Bureau (surface) | 10.52 m² |
Orientation de la terrasse 1 | sud-ouest |
Hall d'entrée (surface) | 9.82 m² |
Hall de nuit (surface) | 7.13 m² |
Nbre de pièce(s) (nombre) | 23 |
Cuisine | Oui |
---|---|
Double vitrage | Oui |
Chauffage (type) | mazout (chauf. centr.) |
Type de cuisine | semi-équipée |
Sdb (type) | douche dans le bain |
Bureau | Oui |
---|---|
Type de grenier | possibilité d'équiper |
Grenier | Oui |
Cave | Oui |
Feu ouvert | Oui |
Transports en commun (distance (m)) | 250 |
---|---|
Transports en commun | Oui |
Autoroute | Oui |
Autoroute (distance (m)) | 5000 |
Gare | Oui |
Gare (distance (m)) | 1100 |
Égouts | Oui |
---|---|
Citerne à mazout | Oui |
Télévision par cable | Oui |
Gaz | Oui |
Câbles téléphoniques | Oui |
Eau | Oui |
Citerne à mazout (détails) | Apparente, capacité 2000 L |
Centrale tél. | Oui |
---|---|
Châssis (type) | aluminium |
Évier | Oui |
Type d'évier | 2 |
Type d'environnement | central |
---|---|
Exposition de la façade avant | nord-est |
Orientation du jardin | sud ouest |
Type de revêtement de sol | carrelages |
---|
Capacité de la citerne à mazout (capacite) | 2000 |
---|
Revenu cadastral (€) (montant) | 1130 € |
---|
Jardin (détails) | sud-ouest, déclivité plat, aménagé pelouse, Fermé |
---|
Label PEB (classe) | G |
---|---|
PEB E-SPEC (kwh/m²/an) | 587 |
E total (Kwh/an) | 121051 |
PEB code unique | 20210216003884 |
Type de construction | traditionnel |
---|