
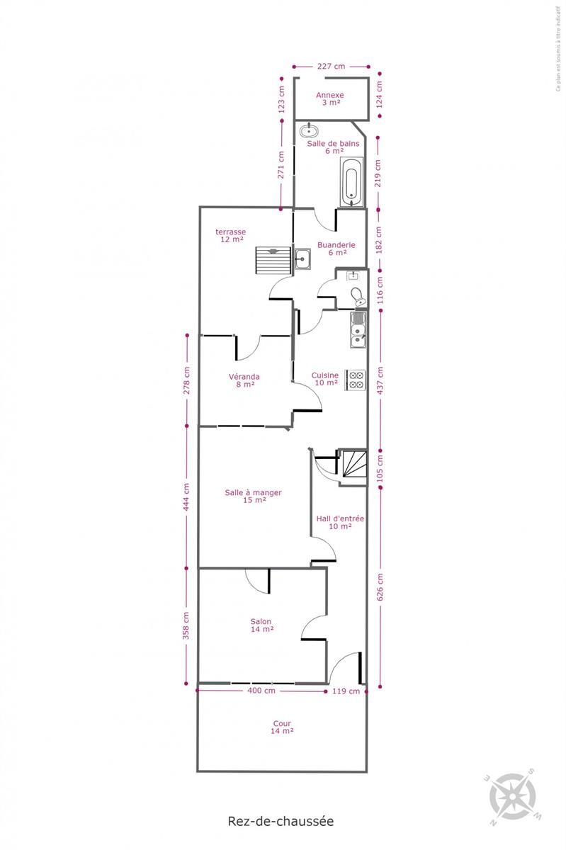
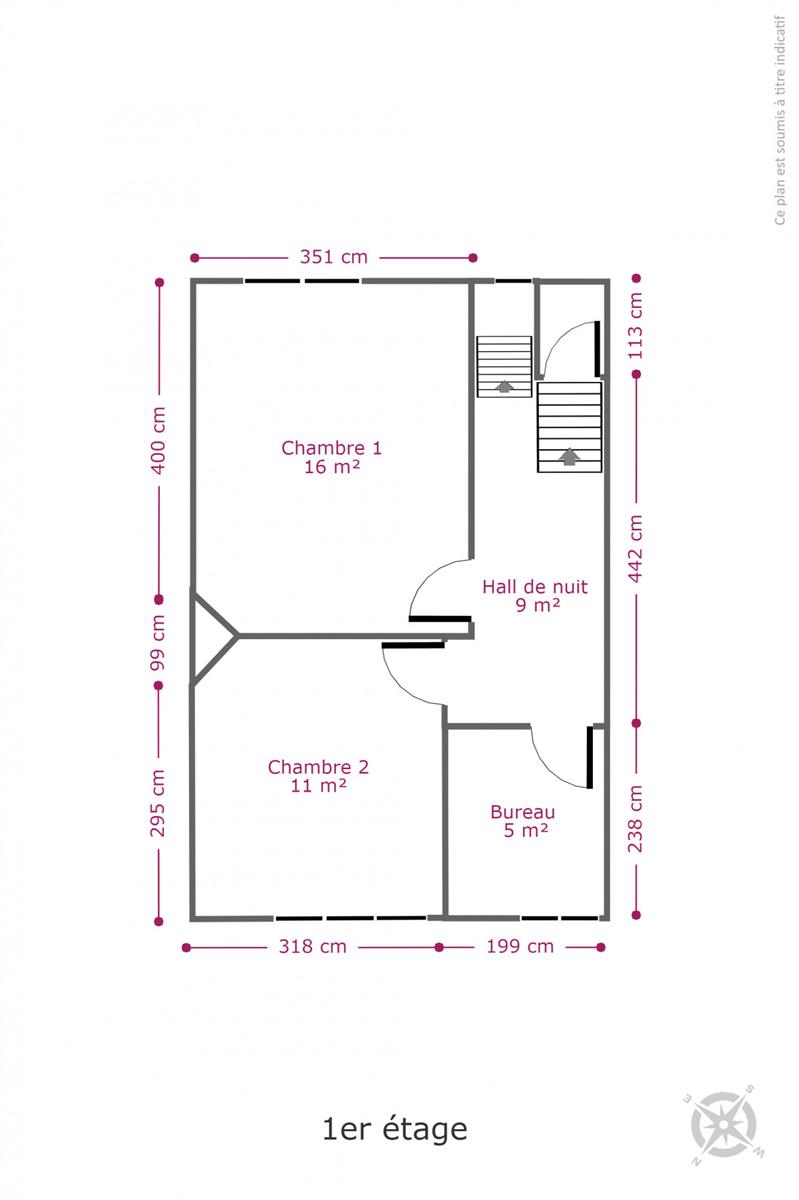
Située à 3' du Douaire, de la gare d'Ottignies et 500m de la gare de Céroux-Mousty, cette agréable maison à rénover, fonctionnelle et bien agencée, vous séduira grâce à son potentiel et sa situation hyper stratégique. ! N'est pas située en zone inondable ! RC: 639 euros - poss. de réduction des droits. La maison se compose comme suit; au RDC: hall d'entrée spacieux, double séjour de +- 30m² avec anciens carrelages et 2 convecteurs au gaz, une cuisine, une véranda, une sdb, une buanderie, un WC et du rangement. A l'étage, sur plancher: 2 belles chambres de 16 et 11,5 m², un bureau/dressing de 5m² (poss. salle d'eau), et accès via escalier permanent au grenier de 37m² - poss. 1 ou 2 ch. suppl. selon vos besoins! En extérieur, une terrasse un jardin orientés sud-est avec jolie vue sur les bois + espaces de stockage. Au -1: caves très saines. Technique: raccordée au gaz de ville, châssis DV bois en excellent état équipés de volets manuels! Travaux à prévoir (électricité, install. chauffage centr., sanitaires...). Faire offre à partir de 200.000 euros, sous réserve d'acceptation par le propriétaire! Une visite? Contactez Laurence au 0471/43.48.59. https://www.ccv-immobilier.be/fr/bien/a-vendre/maison/1340-ottignies-louvain-la-neuve/4568369
Rue Albert 1er 103 - 1340 Ottignies-Louvain-la-Neuve
Référence | 4568369 |
---|---|
Catégorie | Maison |
Nombre de chambres | 3 |
Nombre de salles de bain | 1 |
Jardin | Oui |
Surface du jardin | 220 m² |
Terrasse | Oui |
Surface habitable | 121 m² |
Surface du terrain | 220 m² |
Disponibilité | à l'acte |
Année de construction | 1934 |
---|---|
Type de construction | traditionnel |
Nombre d'étages | 2 |
---|
Cuisine | Oui |
---|---|
Chauffage (type) | gaz |
Type de cuisine | non-équipée |
Sdb (type) | bain |
Buanderie | Oui |
---|---|
Véranda | Oui |
Bureau | Oui |
Type de grenier | possibilité d'équiper |
Grenier | Oui |
Cave | Oui |
Grenier (détails) | aménageable |
Nbre de toilette(s) (nombre) | 1 |
---|---|
Chambre 1 (surface) | 16 m² |
Chambre 2 (surface) | 11 m² |
Surface brute | 176 m² |
Surface nette | 121 m² |
Salle de séjour (surface) | 30 m² |
Salle à manger (surface) | 15.26 m² |
Cuisine (surface) | 9.83 m² |
Buanderie (surface) | 5.7 m² |
Salle de bain 1 (surface) | 5.75 m² |
Caves (surface) | 24 m² |
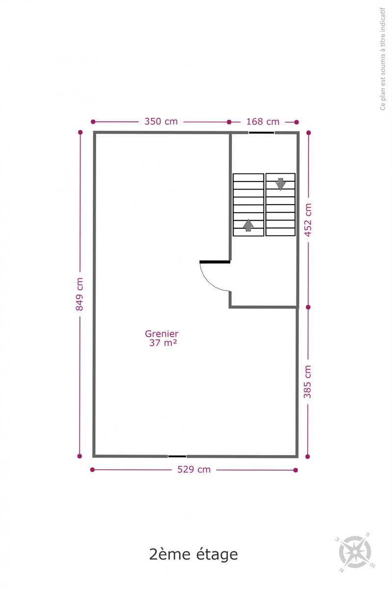
Grenier (surface) | 37 m² |
Bureau (surface) | 5 m² |
Hall d'entrée (surface) | 9.53 m² |
Orientation de la terrasse 1 | sud-est |
Hall de nuit (surface) | 8.57 m² |
Volets | Oui |
---|---|
Volets (type) | type manuel |
Magasins (distance (m)) | 500 |
---|---|
Écoles (distance (m)) | 1300 |
Transports en commun (distance (m)) | 500 |
Centre-ville (distance (m)) | 300 |
Magasins | Oui |
Ecoles | Oui |
Transports en commun | Oui |
Centre-ville | Oui |
Autoroute | Oui |
Autoroute (distance (m)) | 3500 |
Gare | Oui |
Gare (distance (m)) | 600 |
Annexe | Oui |
---|---|
Surface (m²) de annexe | 2.8 m² |
Citerne d'eau | Oui |
Jardin (détails) | sud-est, déclivité pente légère, Aménagé pelouse, fermé clôtures |
Cour | Oui |
Dimensions de la cour | 14 |
Égouts | Oui |
---|---|
Gaz | Oui |
Câbles téléphoniques | Oui |
Eau | Oui |
Électricité (Détails) | Bi-horaire |
Châssis (type) | bois |
---|---|
Vitrage (détails) | Excellent état |
Vitrage (type) | double vitrage |
Évier | Oui |
Type d'évier | 1 |
Type d'environnement | central |
---|---|
Orientation de la terrasse | sud est |
Orientation du jardin | sud est |
Environnement détail 2 (détails) | Proximité facilités |
Attestation du sol | Oui |
---|---|
Certificat d'électricité (oui/non) | oui, non conforme |
Surface de terrasse 1 | 11 m² |
---|
Type de revêtement de sol | vinyl |
---|
Revenu cadastral (€) (montant) | 639 € |
---|
Label PEB (classe) | G |
---|---|
PEB E-SPEC (kwh/m²/an) | 606 |
E total (Kwh/an) | 72819 |
PEB code unique | 20210802005151 |