
OPTIOn VISITES SANS RDV AUX DATES et HEURES SUIVANTES : MERCREDI 02/03 entre 16h et 18h et SAMEDI 05/03 de 10h à midi. Maison villageoise entièrement à rénover située au centre d'Ottignies. Elle dispose d'un volume habitable bien agencé de +/-140m² + caves. Au rez de chaussée, on y trouve un hall d'entrée, un cuisine de bonne taille avec un accès au jardin, une salle à manger et un lumineux living en 2 parties. L'étage se compose de 2 chambres et d'une salle de bains ainsi qu'un grenier aménageable de +/- 35m² accessible via un escalier existant. Jardin plat de 2a50ca. Gare de Céroux-Mousty à 2 pas et centre commercial d'Ottignies tout proche. Possibilité des droits d'enregistrements réduits. Budget rénovation important à prévoir. Faire offre à partir de 150.000 € sous réserve de l'accord des propriétaires. Visites sur RDV avec Laurence au 0471/434859. https://www.ccv-immobilier.be/fr/bien/a-vendre/maison/1340-ottignies-louvain-la-neuve/4648472
Rue de Franquenies 17 - 1340 Ottignies-Louvain-la-Neuve
Référence | 4648472 |
---|---|
Catégorie | Maison |
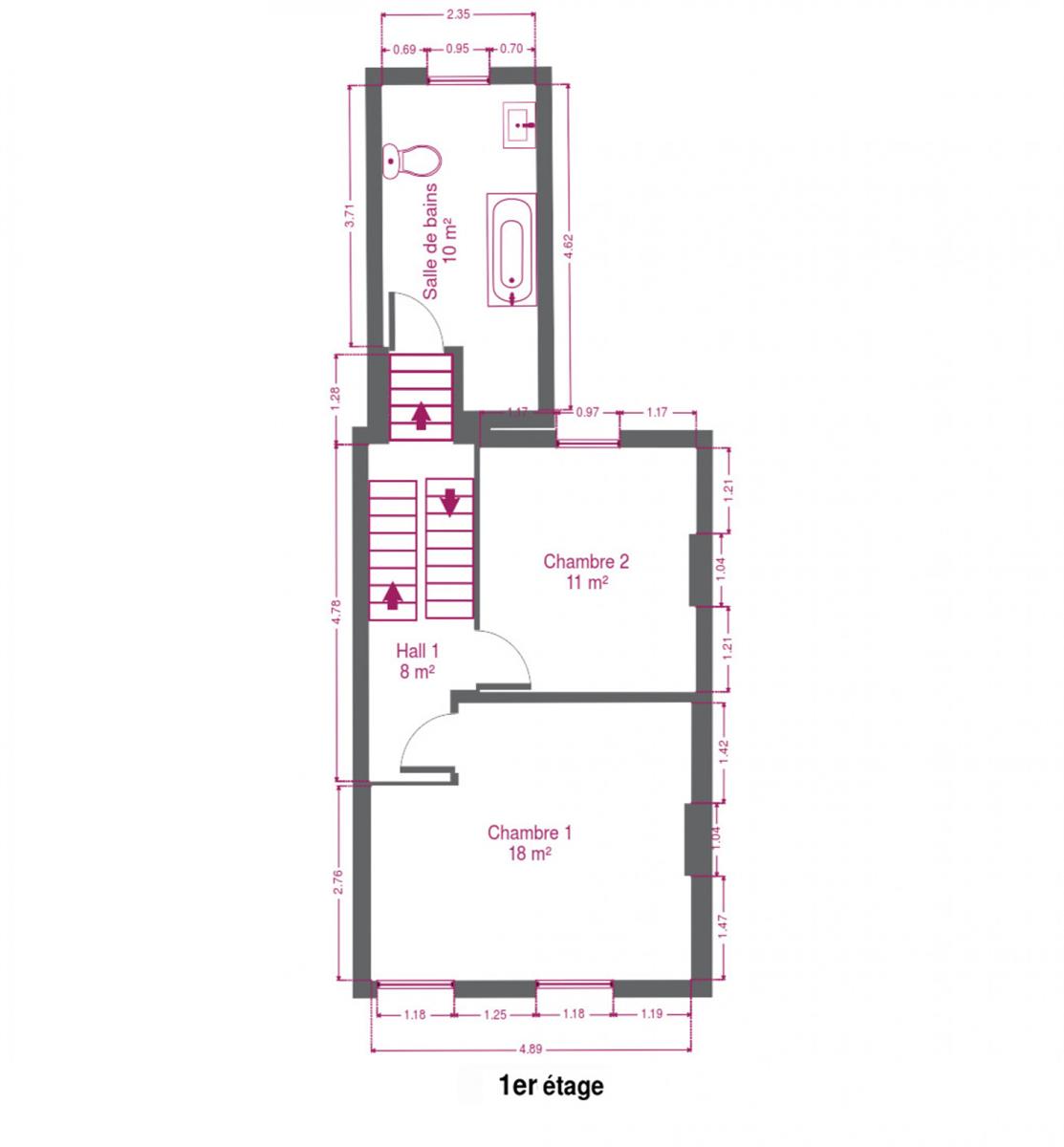
Nombre de chambres | 2 |
Nombre de salles de bain | 1 |
Jardin | Oui |
Surface du jardin | 178 m² |
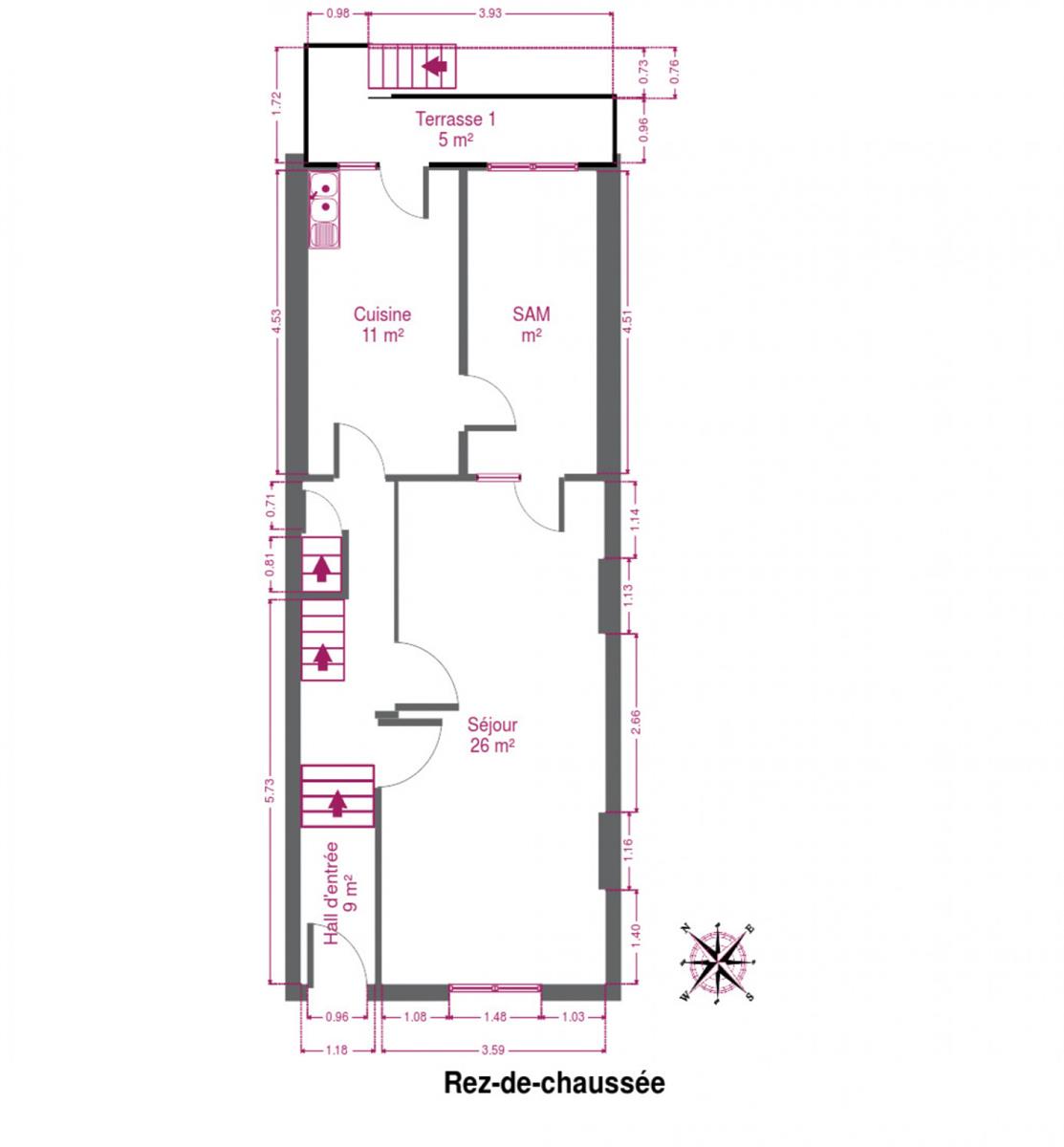
Terrasse | Oui |
Surface habitable | 140 m² |
Surface du terrain | 250 m² |
Disponibilité | à l'acte |
Largeur front de rue | 6.04 |
---|---|
Surface bâtie (surf. bât. princ.) | 72 |
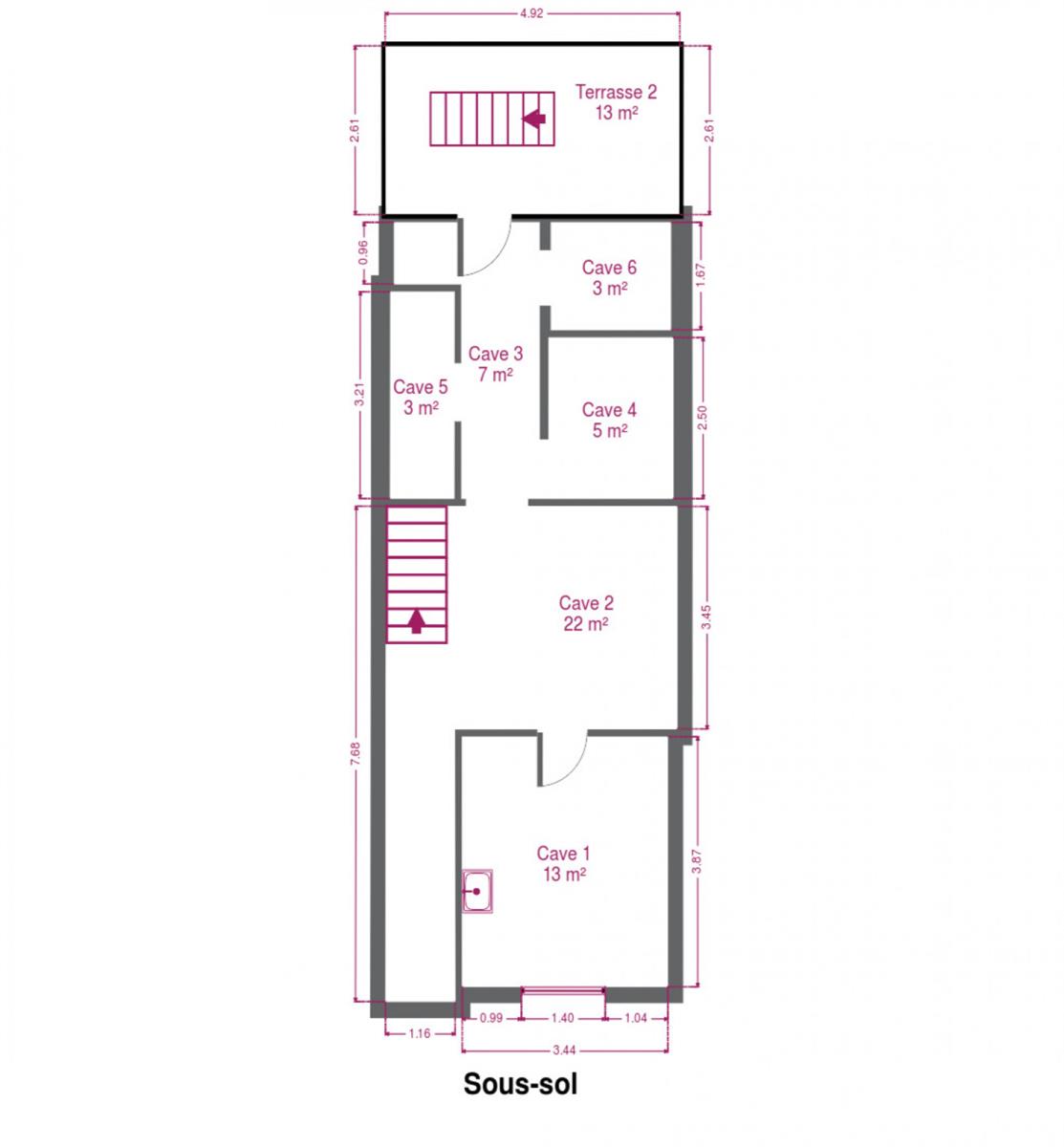
Surface de terrasse 2 | 12.8 m² |
Nbre de toilette(s) (nombre) | 1 |
Chambre 1 (surface) | 17.55 m² |
Chambre 2 (surface) | 11.31 m² |
Surface brute | 193 m² |
Surface nette | 140 m² |
Largeur de façade | 4 |
Profondeur terrain | 39 |
Nbre de terrasse(s) (nombre) | 2 |
Orientation de la terrasse 2 | nord-est |
Salle de séjour (surface) | 25.67 m² |
Salle à manger (surface) | 9.31 m² |
Cuisine (surface) | 10.9 m² |
Salle de bain 1 (surface) | 9.74 m² |
Caves (surface) | 53.63 m² |
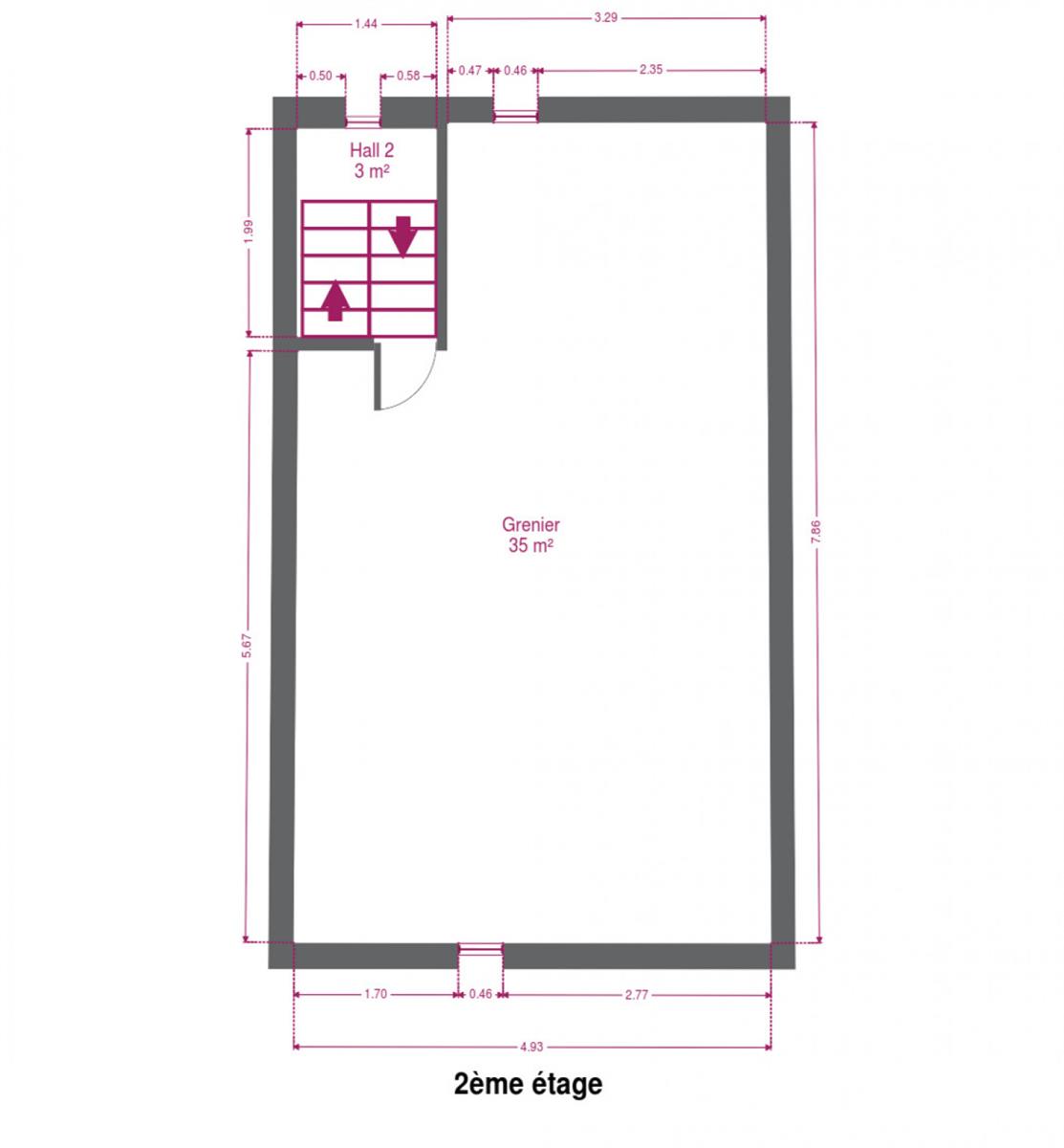
Grenier (surface) | 34.94 m² |
Hall d'entrée (surface) | 9.07 m² |
Orientation de la terrasse 1 | nord-est |
Nbre de pièce(s) (nombre) | 16 |
Cuisine | Oui |
---|---|
Double vitrage | Oui |
Chauffage (type) | gaz |
Sdb (type) | bain assis |
Transports en commun (distance (m)) | 350 |
---|---|
Magasins | Oui |
Ecoles | Oui |
Transports en commun | Oui |
Centre sportif | Oui |
Centre-ville | Oui |
Autoroute | Oui |
Autoroute (distance (m)) | 4800 |
Gare | Oui |
Gare (distance (m)) | 150 |
Gare-détails | Céroux-Mousty |
Égouts | Oui |
---|---|
Télévision par cable | Oui |
Gaz | Oui |
Câbles téléphoniques | Oui |
Eau | Oui |
Électricité (Détails) | Bi-horaire |
Centrale tél. | Oui |
---|---|
Châssis (type) | pvc |
Vitrage (type) | double vitrage |
Évier | Oui |
Type d'évier | 2 |
Type d'environnement | central |
---|---|
Exposition de la façade avant | sud-ouest |
Orientation du jardin | nord est |
Type de revêtement de sol | carrelages |
---|
Type de grenier | possibilité d'équiper |
---|---|
Grenier | Oui |
Cave | Oui |
Revenu cadastral (€) (montant) | 649 € |
---|
Jardin (détails) | nord-est, déclivité plat, Aménagé pelouse |
---|
Label PEB (classe) | F |
---|---|
PEB E-SPEC (kwh/m²/an) | 472 |
E total (Kwh/an) | 59914 |
PEB code unique | 20220216016750 |
Type de construction | traditionnel |
---|