
OPTION OPTION OPTION VVisites: Laurence au 0471/43.48.59. CCV Immobilier a le plaisir de vous présenter cette maison villageoise située dans le quartier prisé et recherché du "Parc de l'étoile" à Ottignies. Elle offre sur 200m² utiles : une lumineuse cuisine donnant accès au jardin, un agréable living, 3 belles chambres, 2 salle d'eau dont 1 au rez de chaussée, une belle cave et un grenier aménageable de +/- 20m². Le tout est complété par un joli jardin de 5a35ca plat, facile d'entretien et avec un accès carrossable depuis la rue. Vous serez également séduits par le calme et le charme des lieux. Environnement verdoyant tout en étant à proximité immédiate de Louvain-La-Neuve, des commerces, des écoles et de la gare d'Ottignies accessible à distance de marche. Vous recherchez de la tranquillité ? N'hésitez plus et contactez Laurence pour une visite au 0471/4348590.
Avenue de l'Etoile 3 - 1340 Ottignies-Louvain-la-Neuve
Référence | 5377995 |
---|---|
Catégorie | Maison |
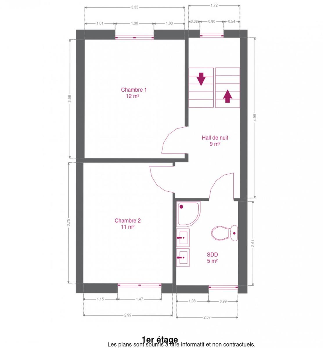
Nombre de chambres | 3 |
Nombre de salles de bain | 1 |
Jardin | Oui |
Surface du jardin | 535 m² |
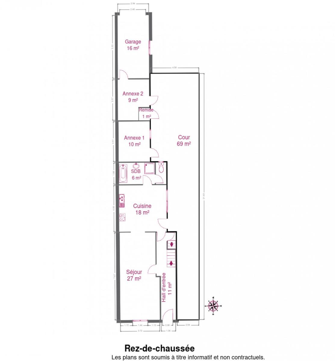
Garage | Oui |
Surface habitable | 141 m² |
Surface du terrain | 535 m² |
Disponibilité | en fonct. du locataire |
Nombre d'étages | 3 |
---|
Cuisine | Oui |
---|---|
Chauffage (type) | gaz (chau. centr.) |
Nbre de toilette(s) (nombre) | 2 |
---|---|
Chambre 1 (surface) | 12.34 m² |
Chambre 2 (surface) | 11.18 m² |
Chambre 3 (surface) | 10.83 m² |
Surface brute | 200 m² |
Surface nette | 141 m² |
Garage (surface) | 16.24 m² |
Salle de séjour (surface) | 27.13 m² |
Cuisine (surface) | 18.16 m² |
Salle de bain 1 (surface) | 10.29 m² |
Caves (surface) | 20.080000000000002 m² |
Grenier (surface) | 19.52 m² |
Sdd (surface (sdd1)) | 5.39 m² |
Hall d'entrée (surface) | 10.72 m² |
Hall de nuit (surface) | 9.07 m² |
Transports en commun (distance (m)) | 150 |
---|---|
Transports en commun | Oui |
Autoroute | Oui |
Autoroute (distance (m)) | 500 |
Gare | Oui |
Gare (distance (m)) | 1500 |
Annexe | Oui |
---|---|
Surface (m²) de annexe | 10.29 m² |
Jardin (détails) | est, déclivité, aménagé pelouse, Fermé clôtures haies |
Cour | Oui |
Dimensions de la cour | 70 |
Égouts | Oui |
---|---|
Télévision par cable | Oui |
Gaz | Oui |
Câbles téléphoniques | Oui |
Eau | Oui |
Électricité (Détails) | Individuel |
Châssis (type) | pvc |
---|---|
Évier | Oui |
Type d'évier | 2 |
Type d'environnement | calme |
---|---|
Orientation du jardin | est |
Type de revêtement de sol | carrelages |
---|
Type de grenier | possibilité d'équiper |
---|---|
Grenier | Oui |
Cave | Oui |
Label PEB (classe) | E |
---|---|
PEB E-SPEC (kwh/m²/an) | 412 |
E total (Kwh/an) | 61290 |
PEB code unique | 20160124 |
Type de construction | traditionnel |
---|