Maison - vendu - 1340 Ottignies -

Maison - à vendre - 1340 Ottignies
4 1 115 m² 1 1 PEB : D

Description

OPTION OPTION OPTION, COMPROMIS EN COURS... Jolie maison avec  jardin, prête à vivre et idéalement située au calme et proche de toutes les facilités de Ottignies et LLN. Sur 150m², elle vous offre un espace de vie de 24m², une cuisine très fonctionnelle, 3 belles chambres et un bureau, une sdb, un grand garage et 2 caves. Petit jardin facile à entretenir, quartier résidentiel calme et situé à un jet de pierre des commerces, écoles et axes de communication. Bus à portée, gare d'Ottignies à distance de marche, seule une mise à votre goût personnel s'impose. Faire offre à partir de 270.000€, sous réserve d'acceptation par les propriétaires. A très bientôt pour une visite sur place! MESURES COVID: visites sous conditions, contactez l'agence. https://www.ccv-immobilier.be/fr/bien/a-vendre/maison/1340-ottignies/4194171

Adresse

Avenue de la Paix 71 - 1340 Ottignies

Général

Référence 4194171
Catégorie Maison
Meublé Non
Nombre de chambres 4
Nombre de salles de bain 1
Jardin Oui
Garage Oui
Terrasse Oui
Parking Oui
Surface habitable 115 m²
Surface du terrain 273 m²
Disponibilité à l'acte

Nom, catégorie & situation

Nombre d'étages (numéro) 3

Bâtiment

Nombre de garage 1
Parking intérieur Oui
Parking extérieur Non
Parking(s) intérieur (nombre) 1
Garage (détails) parking, 1, bois vitrée, vitrage simple,...
Type de construction traditionnel

En chiffres

Surface bâtie (-) 42
Nbre de toilette(s) (nombre) 2
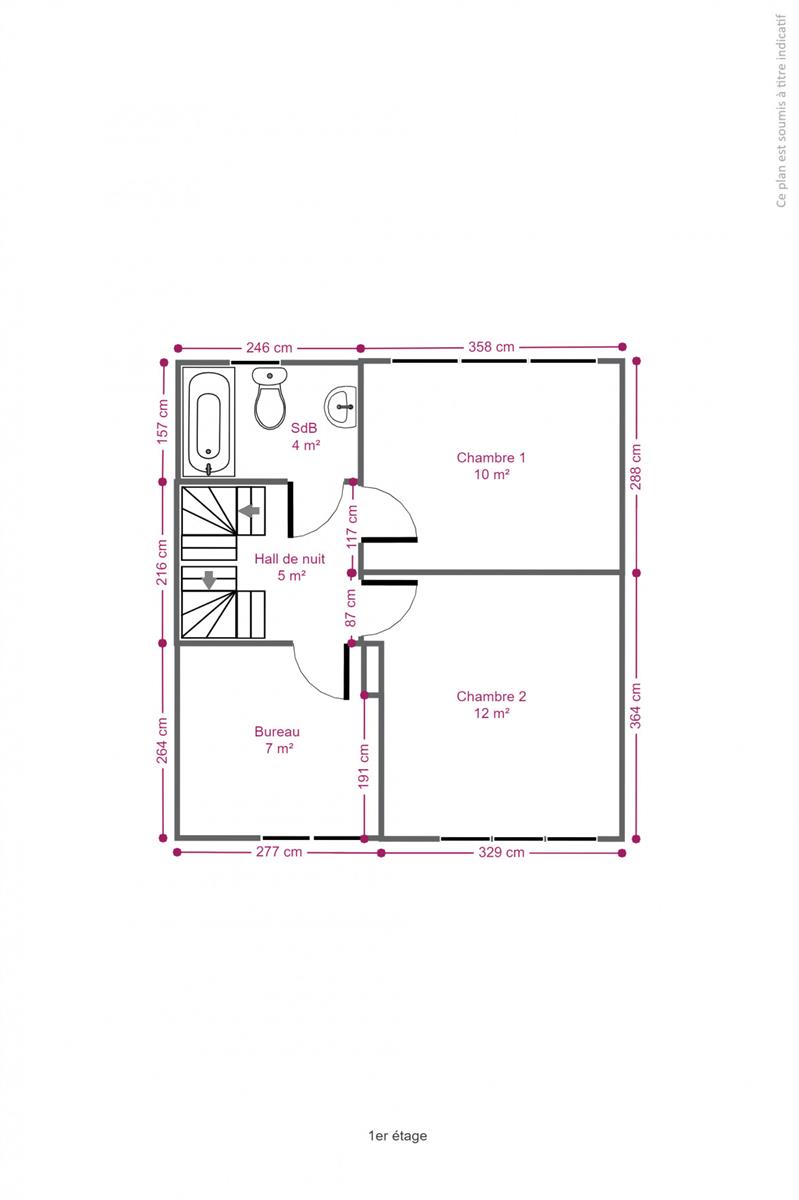
Chambre 1 (surface) 10 m²
Chambre 2 (surface) 12 m²
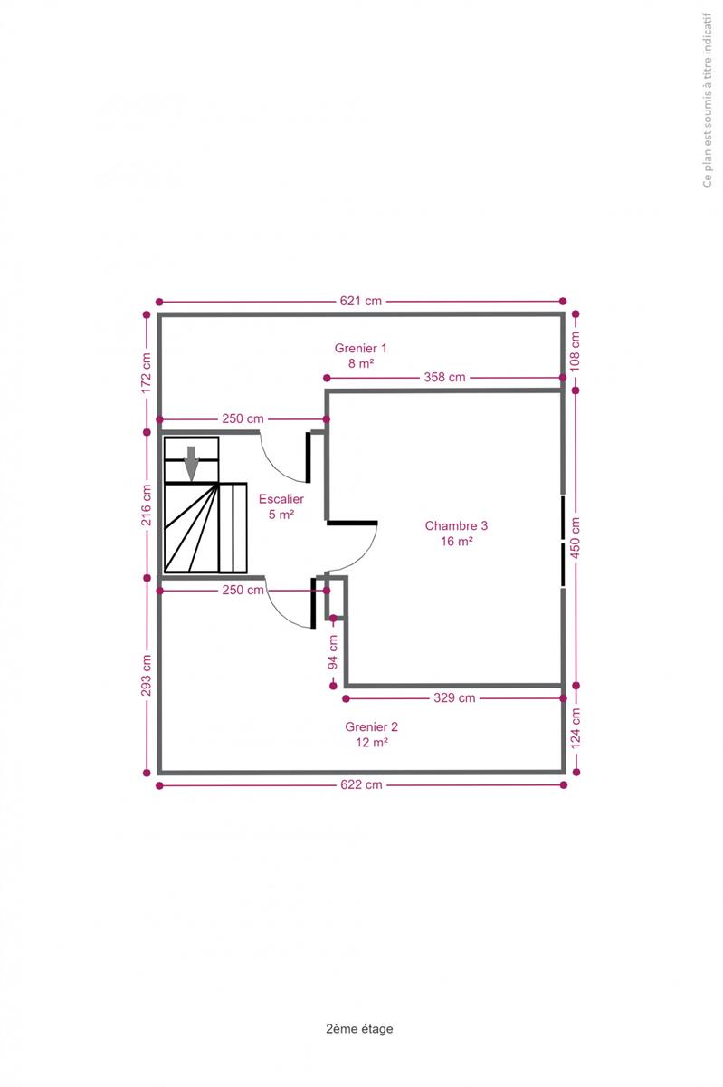
Chambre 3 (surface) 16 m²
Surface brute 150 m²
Surface nette 115 m²
Largeur de façade 6
Garage (surface) 20 m²
Salle de séjour (surface) 24 m²
Orientation de la terrasse 2 (-) nord-ouest
Cuisine (surface) 7 m²
Grenier (surface) 12 m²
Caves (surface) 14 m²
Salle de bain 1 (surface) 4 m²
Bureau (surface) 7 m²
Hall d'entrée (surface) 7 m²
Orientation de la terrasse 1 (-) nord-est
Hall de nuit (surface) 5 m²

Equipement de base

Cuisine Oui
Double vitrage Oui
Chauffage (Format/energie) gaz (chau. centr.)
Sdb (Type) bain
Type de cuisine équipée
Cuisine (détails) 2,4m, 3, équipée, terrasse, simple, avec...

Divers

Bureau Oui
Bureau (détails) Châssis bois double vitrage oscillo-battants,...
Grenier (détails) seulement rangement, béton, 2,3m, Plafond...

À proximité

Magasins (distance (m)) 1500
Écoles (distance (m)) 1500
Transports en commun (distance (m)) 200
Transports en commun Oui
Autoroute Oui
Autoroute (distance (m)) 4000
Gare Oui
Gare (distance (m)) 1000

Raccordements

Égouts Oui
Télévision par cable Oui
Gaz Oui
Câbles téléphoniques Oui
Eau Oui

Équipements techniques

Châssis (Ouvertures) bois
Vitrage (type) double vitrage
Évier Oui

Spécificités terrain

Type d'environnement résidentiel
Orientation de la terrasse (-) nord est
Orientation du jardin (-) nord ouest

Caractéristiques Principales

Surface de terrasse 1 20 m²

Type de matériau & évaluation

Type de revêtement de sol carrelages
État de la toiture (appréciation) 4
État des châssis (-) 3
État des sanitaires (appréciation) 3
État du chauffage (appréciation) 4
État des sols (appréciation) 3
État de la cuisine (appréciation) 4

Cadastre

Revenu cadastral (€) (montant) 911 €

Equipement extérieur

Jardin (détails) Aménagé pelouse, déclivité plat

Energie

Label PEB (Classe) D
PEB E-SPEC (kwh/m²/an) (Consommation énergétique) 340
E total (Kwh/an) 39660
PEB code unique (-) 20201019018905
Votre agent
Didier Piraux
E-mail Tel.
Prendre contact pour le bien : 4194171

* Champs obligatoires

Préférences pour les cookies

La protection de vos données personnelles est importante pour nous. C’est pourquoi nous détaillons ci-dessous les différents services et fonctionnalités du site qui utilisent des cookies et nous vous laissons décider des cookies que vous souhaitez autoriser ou refuser.

Veuillez cependant noter que si vous bloquez certains types de cookies, cela pourrait impacter votre expérience de navigation sur notre site ainsi que les fonctionnalités disponibles.

Nous utilisons des cookies fonctionnels obligatoires pour assurer le bon fonctionnement du site. Ils sont, par exemple, nécessaires pour retrouver le résultat d’une recherche ou enregistrer le choix de la langue.

Certaines fonctionnalités, comme l’affichage de vidéos ou de cartes géographiques, sont assurées via des composants externes développés par des partenaires comme YouTube ou Google. Certains composants utilisent des cookies qui sont susceptibles de permettre à ces tiers de suivre le comportement des internautes afin, par exemple, de réaliser du ciblage publicitaire. L’activation de ces fonctionnalités et des cookies associés est donc soumis à votre consentement.