
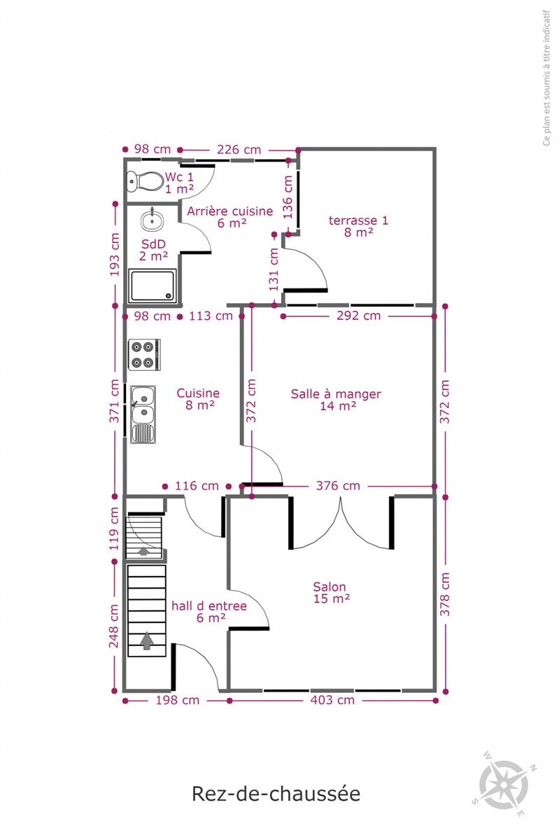
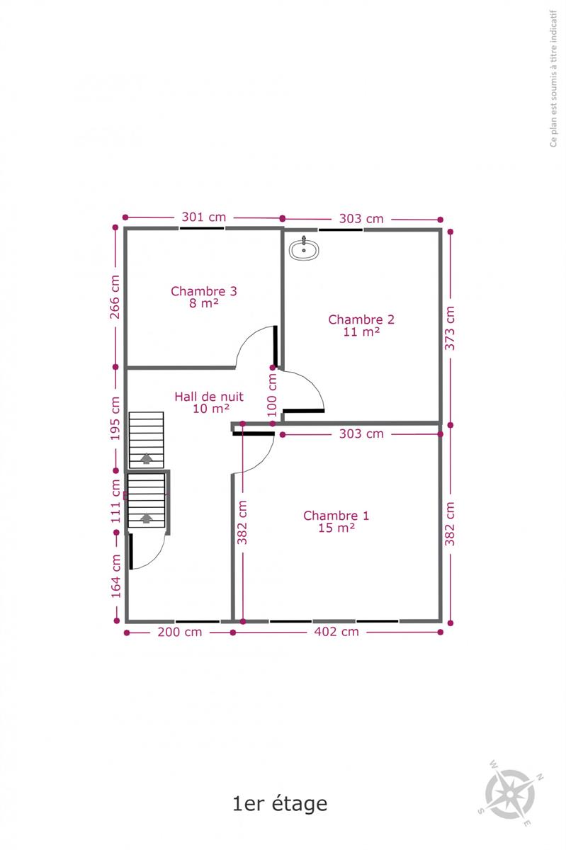
OPTION OPTION OPTION - COMPROMIS SIGNÉ !!! VISITES: CONTACTEZ LAURENCE AU 0471/43.48.59! Faire Offre à partir de 300.000 euros, sous réserve d'acceptation par les propriétaires! - Cette charmante maison pleine de potentiel, idéalement située à 2' de la gare d'Ottignies et des facilités, n'attend que votre imagination pour retrouver un nouveau souffle! Elle présente au rez : un joli hall d'entrée, un séjour en 2 parties spacieux et lumineux avec anciennes cheminées, une cuisine équipée, une arrière cuisine/coin déjeuner, une petite salle de douche et un WC séparé. Depuis le rez de chaussée, vous accédez également à une terrasse surplombant le jardin, offrant une agréable vue dégagée et verdoyante. À l'étage: 2 belles chambres de 15 et 11m² non mansardées, un bureau de 8m² (poss. salle d'eau). Au 2e étage: un beau grenier semi-aménagé de 29m²! Au sous-sol et rez de jardin, plusieurs caves très spacieuses avec espaces chaufferie + buanderie, accès au jardin et au parking (poss. profession libérale). En extérieur, un beau jardin, un garage en annexe et un large parking. Technique: chauff. central au gaz de ville - chaudière Buderus 2004 - châssis double vitrage PVC en façade avant . Travaux généraux de modernisation à prévoir: électricité, sanitaires, sols/murs... Une visite? Contactez Laurence au 0471/43.48.59 - https://www.ccv-immobilier.be/fr/bien/a-vendre/maison/1340-ottignies/4407545
Rue du Blanc Ry 37 - 1340 Ottignies
Référence | 4407545 |
---|---|
Catégorie | Maison |
Nombre de chambres | 4 |
Nombre de salles de bain | 1 |
Jardin | Oui |
Surface du jardin | 697 m² |
Garage | Oui |
Terrasse | Oui |
Parking | Oui |
Surface habitable | 130 m² |
Surface du terrain | 750 m² |
Disponibilité | à l'acte |
Année de construction | 1902 |
---|---|
Nombre de garage | 1 |
Parking intérieur | Oui |
Parking extérieur | Oui |
Parking(s) intérieur (nombre) | 1 |
Parking(s) extérieur (nombre) | 3 |
Type de construction | traditionnel |
Nombre d'étages (numéro) | 3 |
---|
Cuisine | Oui |
---|---|
Chauffage (Format/energie) | gaz (chau. centr.) |
Type de cuisine | semi-équipée |
Marque de chauffage | Buderus |
Buanderie | Oui |
---|---|
Type de grenier | grenier avec chambres |
Grenier | Oui |
Cave | Oui |
Nbre de toilette(s) (nombre) | 2 |
---|---|
Chambre 1 (surface) | 15.35 m² |
Chambre 2 (surface) | 11.3 m² |
Chambre 3 (surface) | 8.01 m² |
Chambre 4 (surface) | 28.82 m² |
Surface brute | 205 m² |
Surface nette | 127.33 m² |
Garage (surface) | 21.04 m² |
Orientation de la terrasse 2 (-) | nord-ouest |
Salle à manger (surface) | 13.94 m² |
Cuisine (surface) | 8.31 m² |
Buanderie (surface) | 3.3 m² |
Caves (surface) | 7 m² |
Sdd (surface) | 1.89 m² |
Hall d'entrée (surface) | 6.43 m² |
Orientation de la terrasse 1 (-) | nord-ouest |
Hall de nuit (surface) | 9.76 m² |
Profession libérale poss. | Oui |
---|
Volets | Oui |
---|---|
Volets (type) | type manuel |
Magasins (distance (m)) | 1500 |
---|---|
Transports en commun (distance (m)) | 500 |
Magasins | Oui |
Transports en commun | Oui |
Autoroute | Oui |
Autoroute (distance (m)) | 7300 |
Gare | Oui |
Gare (distance (m)) | 600 |
Châssis (Ouvertures) | bois |
---|---|
Évier | Oui |
Type d'évier | 2 |
Égouts | Oui |
---|---|
Télévision par cable | Oui |
Gaz | Oui |
Câbles téléphoniques | Oui |
Eau | Oui |
Électricité (Détails) | Mono-horaire |
Type d'environnement | proximité de la gare |
---|---|
Orientation de la terrasse (-) | nord ouest |
Orientation du jardin (-) | nord ouest |
Environnement détail 2 (détails) | Calme |
Type de revêtement de sol | vinyl |
---|
Citerne d'eau | Oui |
---|---|
Jardin (détails) | nord-ouest, légèrement en pente, fermé palissades haies clôtures, À aménager |
Certificat d'électricité (oui/non) | oui, non conforme |
---|
Label PEB (Classe) | E |
---|---|
PEB E-SPEC (kwh/m²/an) (Consommation énergétique) | 416 |
E total (Kwh/an) | 61962 |
PEB code unique (-) | 20210531016936 |