
VISITES SUSPENDUES , OFFRE ACCEPTEE ! Comme Chez Vous immobilier a le plaisir de vous présenter cette maison villageoise 2 chambres + bureau idéalement située sur les hauteurs d'Ottignies et à distance de marche de la gare. Vous y trouverez un agréable living ouvert sur la cuisine, 2 grandes chambres, une salle de bains, une buanderie, un bureau et un beau potentiel grâce à son grenier aménageable de 46m² avec escalier existant. Elle propose également un jardin de +/- 8 ares avec terrasse, orientés Sud-Est, au calme et avec une agréable vue. Nombreux espaces de rangement (atelier, caves,...). Travaux de rénovations à prévoir - pas de chauffage central - pas de parking ni garage - parking rue du Viaduc ! Faire offre à partir de 220.000 euros, sous réserve d’acceptation du propriétaire. Opportunité à saisir !! Une visite ? - www.ccv-immobilier.be
Rue de la Fontaine 10 - 1340 Ottignies
Référence | 4430396 |
---|---|
Catégorie | Maison |
Nombre de chambres | 3 |
Nombre de salles de bain | 1 |
Jardin | Oui |
Surface du jardin | 760 m² |
Garage | Non |
Terrasse | Oui |
Parking | Non |
Surface habitable | 161 m² |
Surface du terrain | 760 m² |
Disponibilité | à l'acte |
Nombre d'étages | 3 |
---|
Année de construction | 1925 |
---|---|
Parking intérieur | Non |
Parking extérieur | Non |
Type de construction | traditionnel |
Largeur front de rue | 36.13 |
---|---|
Surface bâtie (surf. bât. princ.) | 75 |
Nbre de toilette(s) (nombre) | 1 |
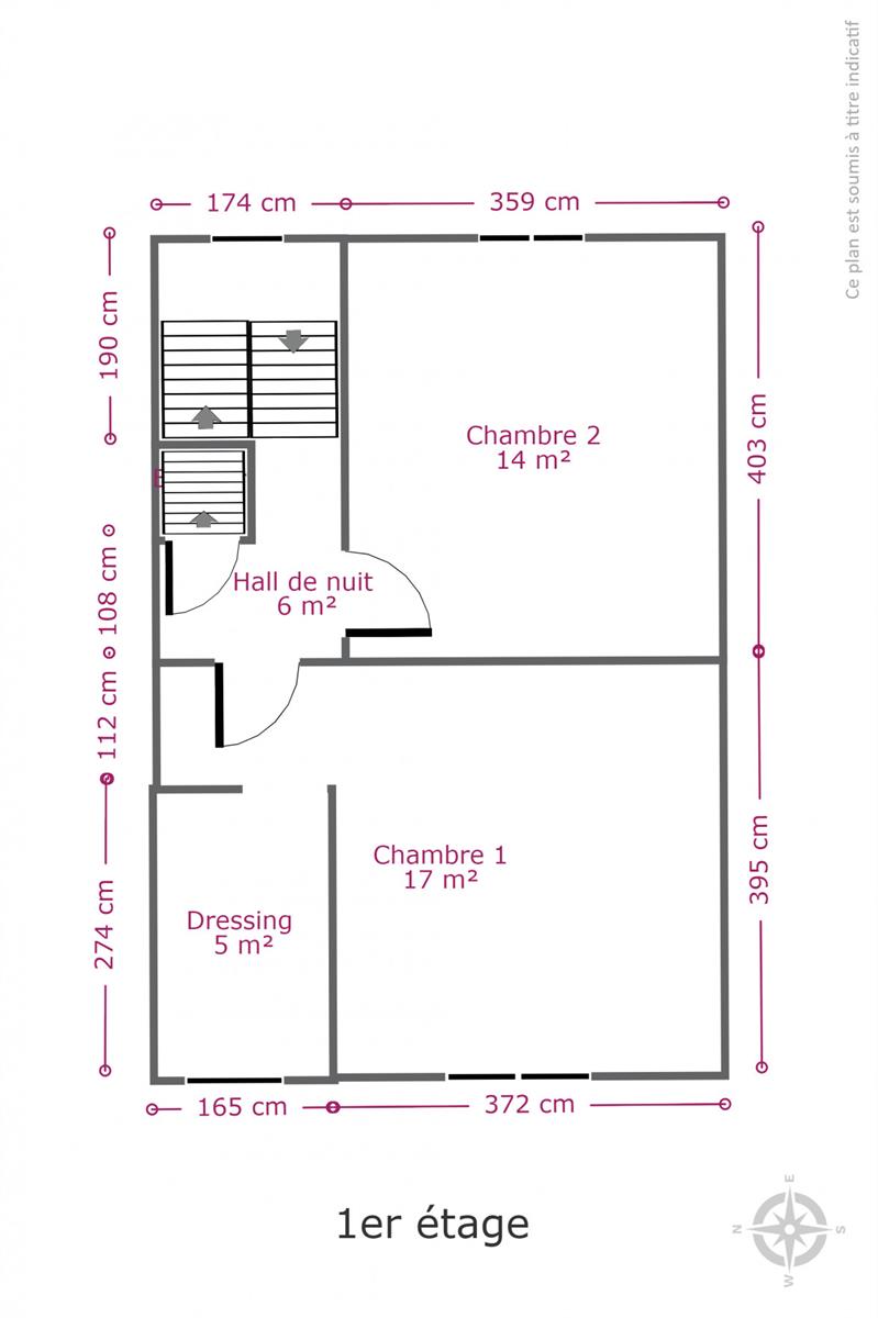
Chambre 1 (surface) | 16.65 m² |
Chambre 2 (surface) | 14.44 m² |
Surface brute | 181 m² |
Surface nette | 161 m² |
Largeur de façade | 5.5 |
Profondeur terrain | 17 |
Nbre de terrasse(s) (nombre) | 1 |
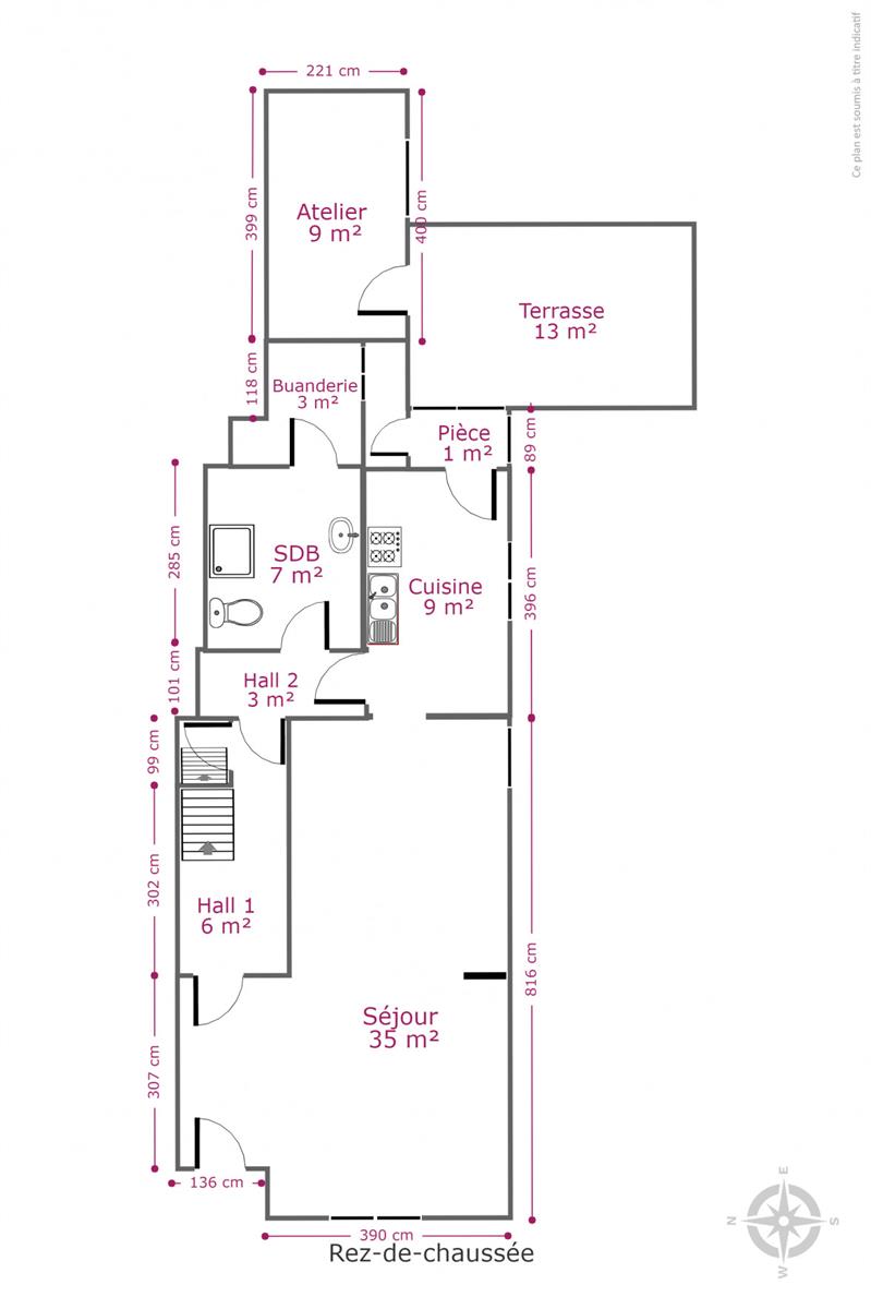
Salle de séjour (surface) | 34.77 m² |
Cuisine (surface) | 9.05 m² |
Buanderie (surface) | 3.3 m² |
Dressing (surface) | 4.54 m² |
Salle de bain 1 (surface) | 7.27 m² |
Caves (surface) | 15 m² |
Grenier (surface) | 45.96 m² |
Atelier (surface) | 2.5 m² |
Hall de nuit (surface) | 6.02 m² |
Nbre de pièce(s) (nombre) | 15 |
Cuisine | Oui |
---|---|
Double vitrage | Oui |
Chauffage (type) | gaz |
Type de cuisine | semi-équipée |
Sdb (type) | douche |
Buanderie | Oui |
---|---|
Type de grenier | possibilité d'équiper |
Grenier | Oui |
Cave | Oui |
Atelier | Oui |
---|---|
Citerne d'eau | Oui |
Jardin (détails) | est, déclivité plat, Fermé haies clôtures |
Atelier (surface) | 8.86 m² |
Volets | Oui |
---|---|
Volets (type) | type électrique |
Transports en commun (distance (m)) | 150 |
---|---|
Magasins | Oui |
Ecoles | Oui |
Transports en commun | Oui |
Centre sportif | Oui |
Autoroute | Oui |
Centre-ville | Oui |
Autoroute (distance (m)) | 4000 |
Gare | Oui |
Gare (distance (m)) | 1100 |
Égouts | Oui |
---|---|
Télévision par cable | Oui |
Gaz | Oui |
Câbles téléphoniques | Oui |
Eau | Oui |
Électricité (Détails) | Mono-horaire |
Centrale tél. | Oui |
---|---|
Châssis (type) | pvc |
Vitrage (type) | double vitrage |
Évier | Oui |
Type d'évier | 2 |
Type d'environnement | calme |
---|---|
Exposition de la façade avant | ouest |
Orientation de la terrasse | est |
Orientation du jardin | est |
Surface de terrasse 1 | 14 m² |
---|
Type de revêtement de sol | parquet |
---|
Label PEB (classe) | G |
---|---|
PEB E-SPEC (kwh/m²/an) | 524 |
E total (Kwh/an) | 85193 |
PEB code unique | 202108063002779 |