Maison - vendu - 1340 Ottignies -

Maison - à vendre - 1340 Ottignies
5 2 150 m² 1 PEB : E

Description

SOUS OPTION - COMPROMIS EN COURS - Laissez-vous surprendre par cette agréable et charmante maison idéalement située au centre d'Ottignies et en parfait état d'entretien, à distance de marche du centre commercial du Douaire, à 2 pas de la gare, des écoles et grands axes de circulation. Sur près de 200m² utiles, vous y retrouverez du cachet, un agencement pratique et des volumes intéressants : séjour double avec très jolis anciens carrelages en parfait état et véritable plancher en bois remis à neuf, cuisine équipée et lumineuse avec accès à la terrasse couverte en bois et au jardin, sdd avec wc (possiblement buanderie). Au 1er: 3 chambres et une salle de douche confortable. Au 2ème, 2 belles chambres supplémentaires et un grenier/débarras de rangement. En extérieur, un jardin aménagé et buccolique ravira les amateurs de nature. De grandes caves et du parking privatif pour 2-3 voitures complètent le tout. Technique: électricité conforme, chaudière neuve au gaz de ville, maison habitable immédiatement! VISITES: APPELEZ LAURENCE au 0471/43.48.59. https://www.ccv-immobilier.be/fr/bien/a-vendre/maison/1340-ottignies/4842638

Adresse

Rue du Monument 40 - 1340 Ottignies

Général

Référence 4842638
Catégorie Maison
Nombre de chambres 5
Nombre de salles de bain 2
Jardin Oui
Surface du jardin 387 m²
Terrasse Oui
Parking Oui
Surface habitable 150 m²
Surface du terrain 387 m²
Disponibilité à l'acte

Nom, catégorie & situation

Nombre d'étages (numéro) 2

Bâtiment

Parking extérieur Oui
Parking(s) extérieur (nombre) 1
Type de toit en pente
Type de construction traditionnel

En chiffres

Largeur front de rue 9.26
Surface bâtie (-) 57
Nbre de toilette(s) (nombre) 2
Nombre de sdd 1
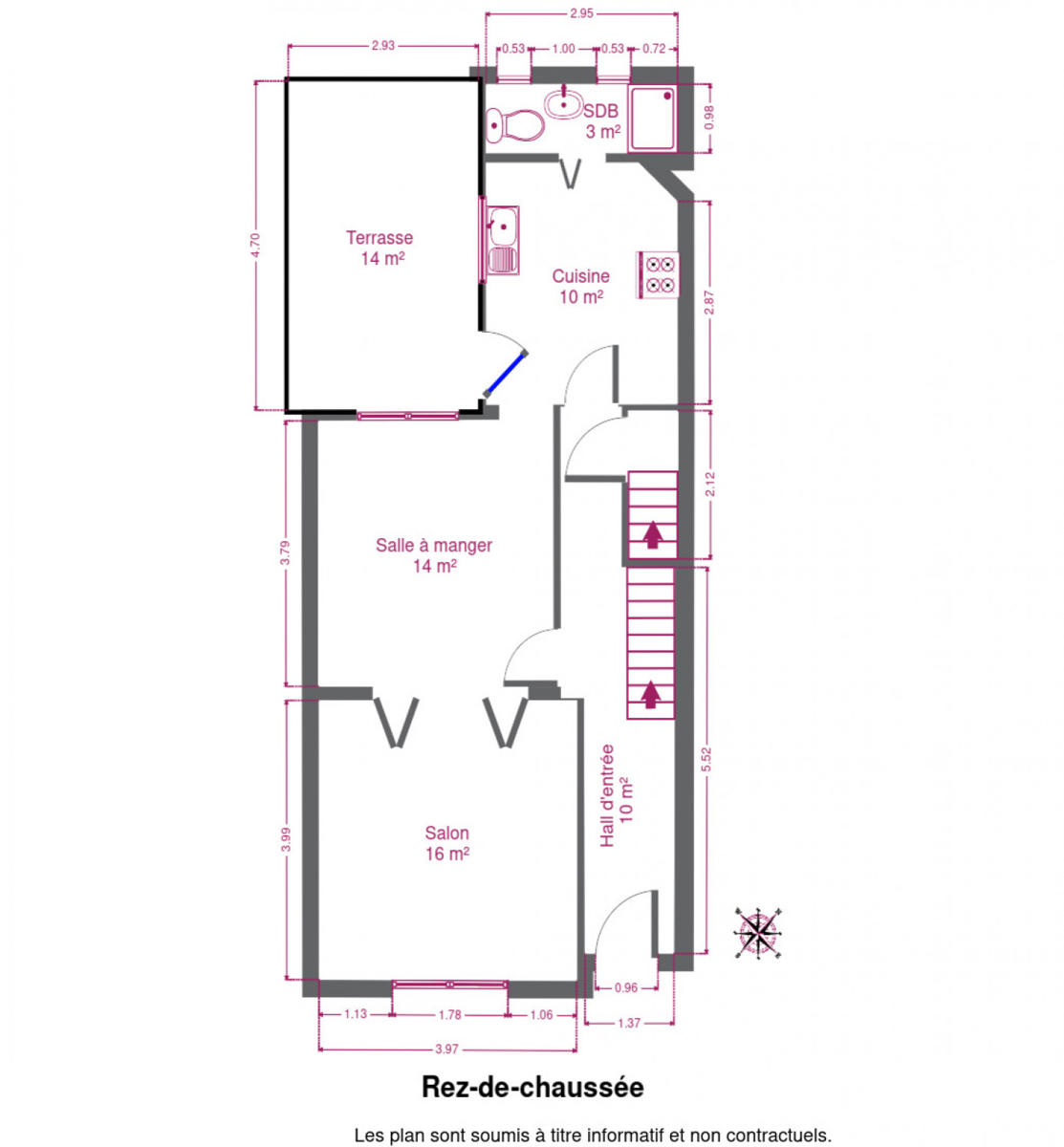
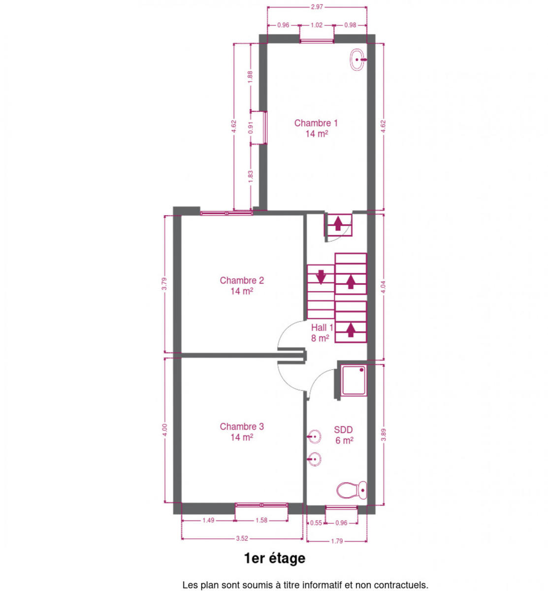
Chambre 1 (surface) 14 m²
Chambre 2 (surface) 14 m²
Chambre 3 (surface) 15 m²
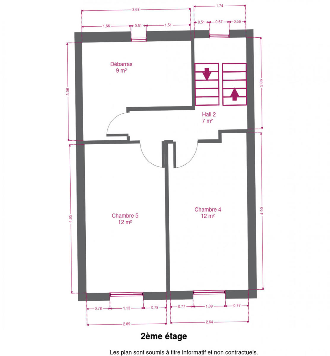
Chambre 4 (surface) 12 m²
Chambre 5 (surface) 13 m²
Surface brute 200 m²
Surface nette 150 m²
Largeur de façade 5
Profondeur terrain 45
Nbre de terrasse(s) (nombre) 1
Salle de séjour (surface) 30 m²
Salle à manger (surface) 14 m²
Cuisine (surface) 10 m²
Salle de bain 1 (surface) 6 m²
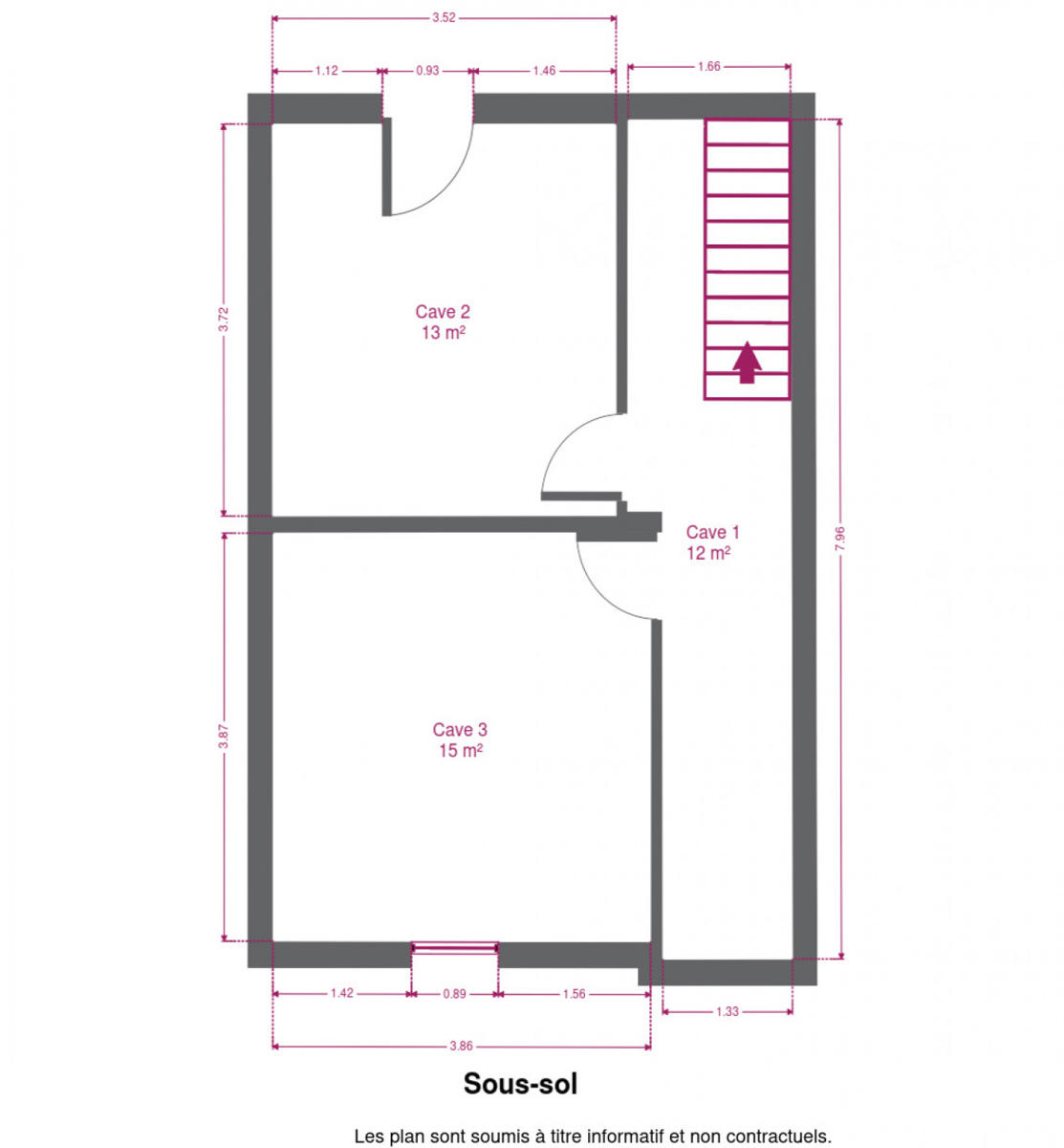
Caves (surface) 40 m²
Grenier (surface) 9 m²
Hall d'entrée (surface) 10 m²
Orientation de la terrasse 1 (-) ouest
Hall de nuit (surface) 8 m²
Nbre de pièce(s) (Nombre) 17

Equipement de base

Cuisine Oui
Double vitrage Oui
Chauffage (Format/energie) gaz (chau. centr.)
Adoucisseur Oui

Sécurité

Volets Oui
Détails volets (type) type roulant

À proximité

Magasins (distance (m)) 400
Écoles (distance (m)) 1000
Transports en commun (distance (m)) 350
Transports en commun Oui
Autoroute Oui
Autoroute (distance (m)) 4400
Gare Oui
Gare (distance (m)) 500

Raccordements

Égouts Oui
Télévision par cable Oui
Gaz Oui
Câbles téléphoniques Oui
Eau Oui
Électricité (Détails) Bi-horaire

Équipements techniques

Centrale tél. Oui
Châssis (Ouvertures) pvc
Type d'évier 1
Évier Oui

Spécificités terrain

Type d'environnement centre ville
Exposition de la façade avant (-) sud-est
Orientation de la terrasse (-) ouest
Orientation du jardin (-) ouest

Caractéristiques Principales

Surface de terrasse 1 20 m²

Type de matériau & évaluation

Type de revêtement de sol carrelages
État de la toiture (appréciation) 4
État des châssis (-) 4
État des sanitaires (appréciation) 3
État de l'électricité (appréciation) 4
État du chauffage (appréciation) 5
État de la cuisine (appréciation) 3
État des sols (appréciation) 3

Cadastre

Revenu cadastral (€) (montant) 867 €

Certificats / Attestations

Certificat d'électricité (oui/non) oui, conforme

Divers

Cave Oui

Equipement extérieur

Jardin (détails) nord-ouest, déclivité plat, Aménagé pelouse

Energie

Label PEB (Classe) E
PEB E-SPEC (kwh/m²/an) (Consommation énergétique) 352
E total (Kwh/an) 57041
PEB code unique (-) 20201001004719
PEB valide jusqu'au (validité) 01/10/2030
Votre agent
Didier Piraux
E-mail Tel.
Prendre contact pour le bien : 4842638

* Champs obligatoires

Préférences pour les cookies

La protection de vos données personnelles est importante pour nous. C’est pourquoi nous détaillons ci-dessous les différents services et fonctionnalités du site qui utilisent des cookies et nous vous laissons décider des cookies que vous souhaitez autoriser ou refuser.

Veuillez cependant noter que si vous bloquez certains types de cookies, cela pourrait impacter votre expérience de navigation sur notre site ainsi que les fonctionnalités disponibles.

Nous utilisons des cookies fonctionnels obligatoires pour assurer le bon fonctionnement du site. Ils sont, par exemple, nécessaires pour retrouver le résultat d’une recherche ou enregistrer le choix de la langue.

Certaines fonctionnalités, comme l’affichage de vidéos ou de cartes géographiques, sont assurées via des composants externes développés par des partenaires comme YouTube ou Google. Certains composants utilisent des cookies qui sont susceptibles de permettre à ces tiers de suivre le comportement des internautes afin, par exemple, de réaliser du ciblage publicitaire. L’activation de ces fonctionnalités et des cookies associés est donc soumis à votre consentement.