Maison - vendu - 1340 Ottignies -

Maison - à vendre - 1340 Ottignies
3 1 155 m² 1 PEB : E

Description

OPTION OPTION OPTION VISITES: CONTACTEZ LAURENCE au 0471/43.48.59... CCV Immobilier a le plaisir de vous présenter cette charmante villa 4 façades située dans un quartier calme et recherché d'Ottignies. Elle offre une spacieuse cuisine équipée, un chaleureux living de +/- 30m² avec K7 à bois, 3 belles chambres + bureau et une spacieuse salle de bains. Vous y trouverez également un garage 1 voiture, une annexe de rangement et 2 greniers potentiellement exploitables en chambre/bureau. La maison est entourée d'un joli jardin agrémenté de fleurs et d'arbustes et d'un étang très bien aménagé. Une grande terrasse de 68m² avec espace BBQ, ainsi qu'un parking pour plusieurs véhicules viennent compléter le tout. Possibilité de vivre de plain-pied au rez-de-chaussée. Situation particulièrement prisée : gare d'Ottignies accessible en moins de 10' à pied via le sentier Maurice Carême, nombreux commerces et écoles à proximité directe, grands axes routiers (N25, E411 et N4) tout proches et accès très facile à LLN à vélo! https://www.ccv-immobilier.be/fr/bien/a-vendre/maison/1340-ottignies/4936533

Adresse

Rue de la vallée 1 - 1340 Ottignies

Général

Référence 4936533
Catégorie Maison
Meublé Non
Nombre de chambres 3
Nombre de salles de bain 1
Jardin Oui
Surface du jardin 594 m²
Garage Oui
Terrasse Oui
Parking Oui
Surface habitable 155 m²
Surface du terrain 594 m²
Disponibilité à l'acte

Bâtiment

Année de construction 19371952
Nombre de garage 1
Parking intérieur Oui
Parking extérieur Oui
Type de construction traditionnel

Nom, catégorie & situation

Nombre d'étages (numéro) 3

En chiffres

Largeur front de rue 16
Surface bâtie (-) 131
Nbre de toilette(s) (nombre) 2
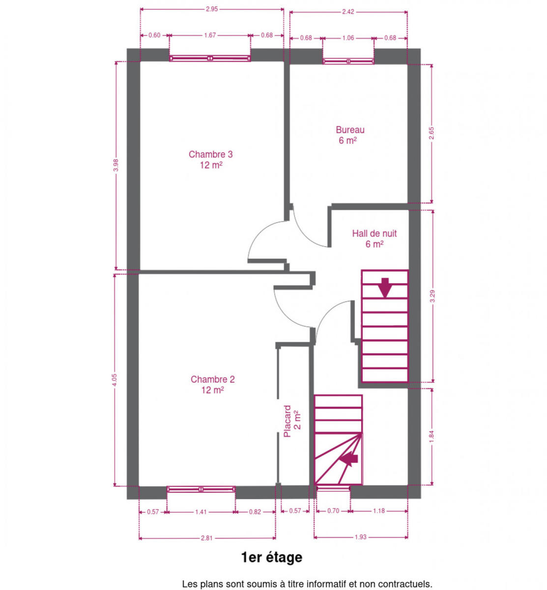
Chambre 1 (surface) 13.62 m²
Chambre 2 (surface) 12.27 m²
Chambre 3 (surface) 11.74 m²
Surface brute 227 m²
Surface nette 155 m²
Largeur de façade 10
Profondeur terrain 44
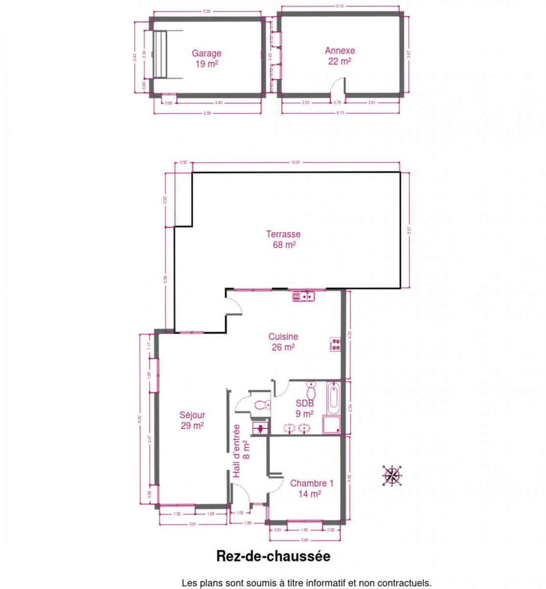
Garage (surface) 19.18 m²
Nbre de terrasse(s) (nombre) 1
Salle de séjour (surface) 28.75 m²
Cuisine (surface) 26.37 m²
Salle de bain 1 (surface) 9.26 m²
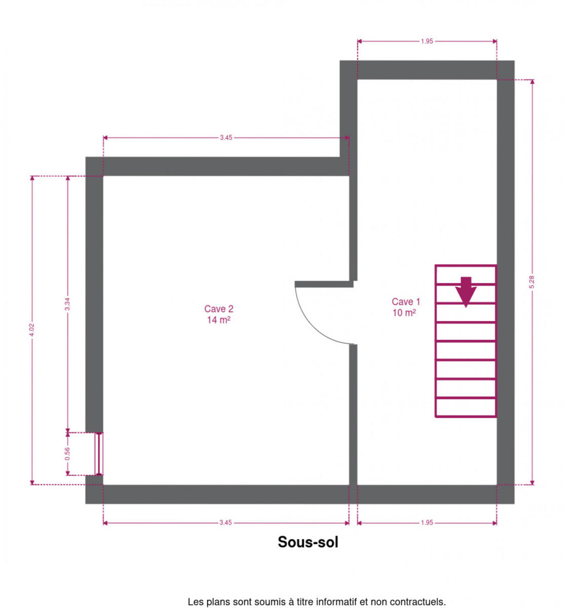
Caves (surface) 24.18 m²
Grenier (surface) 14.53 m²
Bureau (surface) 6.39 m²
Hall d'entrée (surface) 8.33 m²
Hall de nuit (surface) 6.11 m²
Nbre de pièce(s) (Nombre) 17

Equipement de base

Cuisine Oui
Double vitrage Oui
Chauffage (Format/energie) gaz (chau. centr.)

Divers

Bureau Oui
Type de grenier seulement rangement
Grenier Oui
Cave Oui

Sécurité

Volets Oui
Détails volets (type) type manuel

À proximité

Transports en commun (distance (m)) 500
Transports en commun Oui
Autoroute Oui
Autoroute (distance (m)) 3100
Gare Oui
Gare (distance (m)) 600

Equipement extérieur

Annexe Oui
Surface (m²) de annexe 22.52 m²
Citerne d'eau Oui
Jardin (détails) nord-est, déclivité, Aménagé pelouse, fermé clôtures palissades

Raccordements

Égouts Oui
Télévision par cable Oui
Gaz Oui
Câbles téléphoniques Oui
Eau Oui
Électricité (Détails) Bi-horaire

Équipements techniques

Centrale tél. Oui
Châssis (Ouvertures) bois
Évier Oui
Type d'évier 2

Spécificités terrain

Type d'environnement central
Exposition de la façade avant (-) sud-ouest
Orientation de la terrasse (-) nord est
Orientation du jardin (-) nord est

Caractéristiques Principales

Surface de terrasse 1 68 m²

Type de matériau & évaluation

Type de revêtement de sol carrelages

Cadastre

Revenu cadastral (€) (montant) 1336 €

Energie

Label PEB (Classe) E
PEB E-SPEC (kwh/m²/an) (Consommation énergétique) 405
E total (Kwh/an) 68953
PEB code unique (-) 20220929012450
Votre agent
Marie Surges
E-mail Tel.
Prendre contact pour le bien : 4936533

* Champs obligatoires

Préférences pour les cookies

La protection de vos données personnelles est importante pour nous. C’est pourquoi nous détaillons ci-dessous les différents services et fonctionnalités du site qui utilisent des cookies et nous vous laissons décider des cookies que vous souhaitez autoriser ou refuser.

Veuillez cependant noter que si vous bloquez certains types de cookies, cela pourrait impacter votre expérience de navigation sur notre site ainsi que les fonctionnalités disponibles.

Nous utilisons des cookies fonctionnels obligatoires pour assurer le bon fonctionnement du site. Ils sont, par exemple, nécessaires pour retrouver le résultat d’une recherche ou enregistrer le choix de la langue.

Certaines fonctionnalités, comme l’affichage de vidéos ou de cartes géographiques, sont assurées via des composants externes développés par des partenaires comme YouTube ou Google. Certains composants utilisent des cookies qui sont susceptibles de permettre à ces tiers de suivre le comportement des internautes afin, par exemple, de réaliser du ciblage publicitaire. L’activation de ces fonctionnalités et des cookies associés est donc soumis à votre consentement.