Maison - vendu - 1340 Ottignies -

Maison - à vendre - 1340 Ottignies
3 1 1 PEB : E

Description

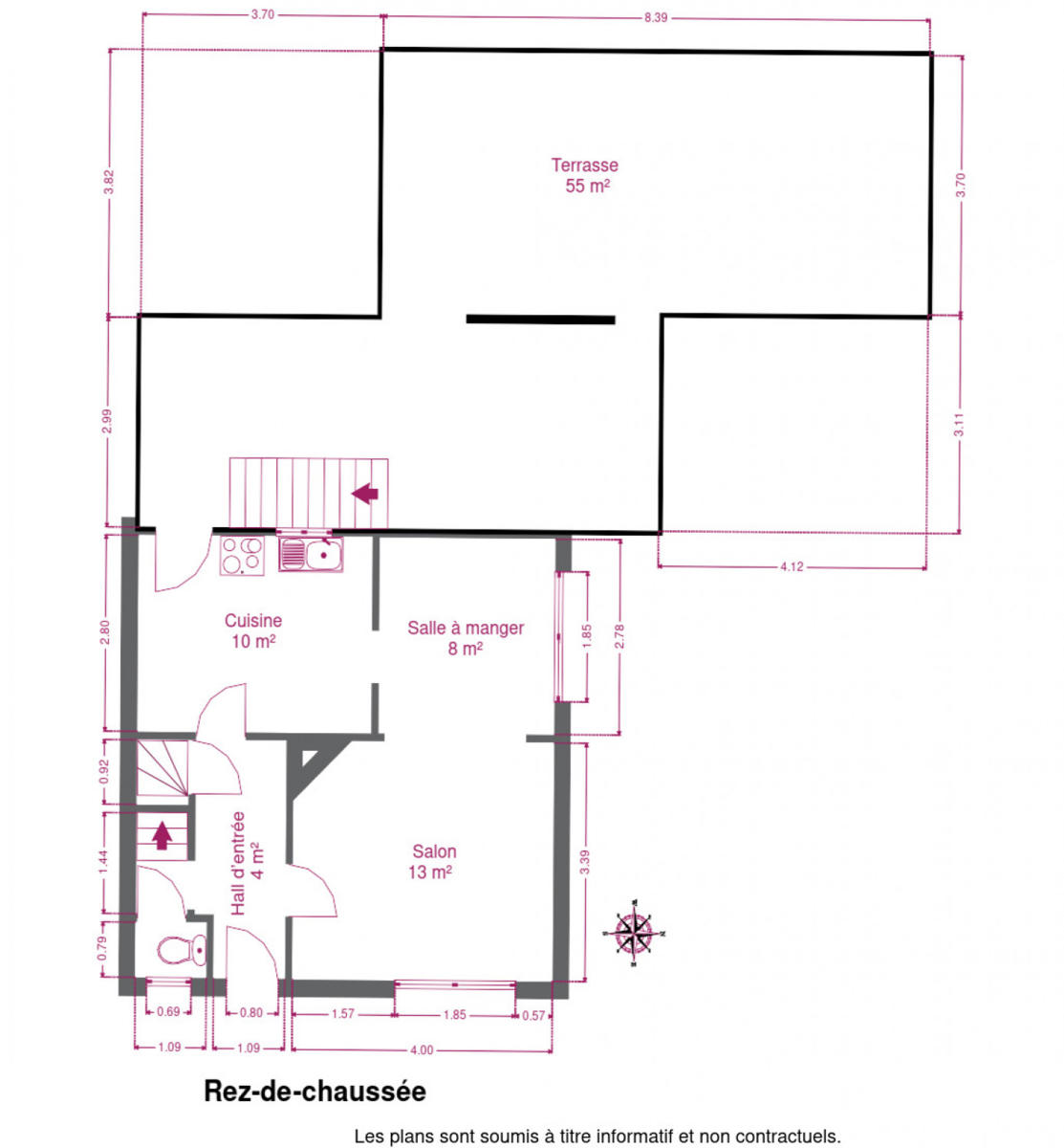
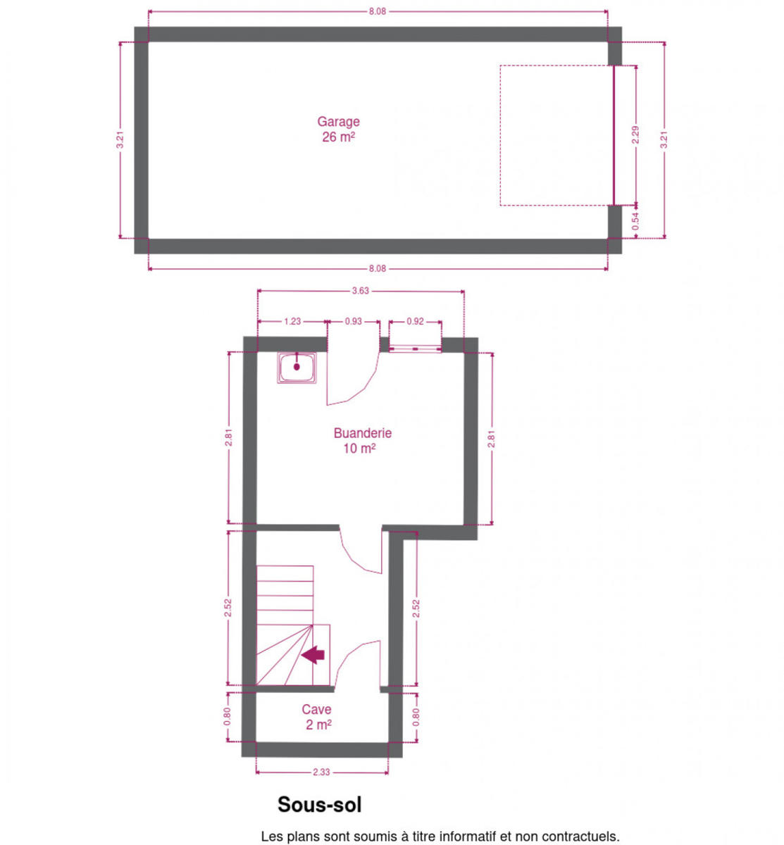
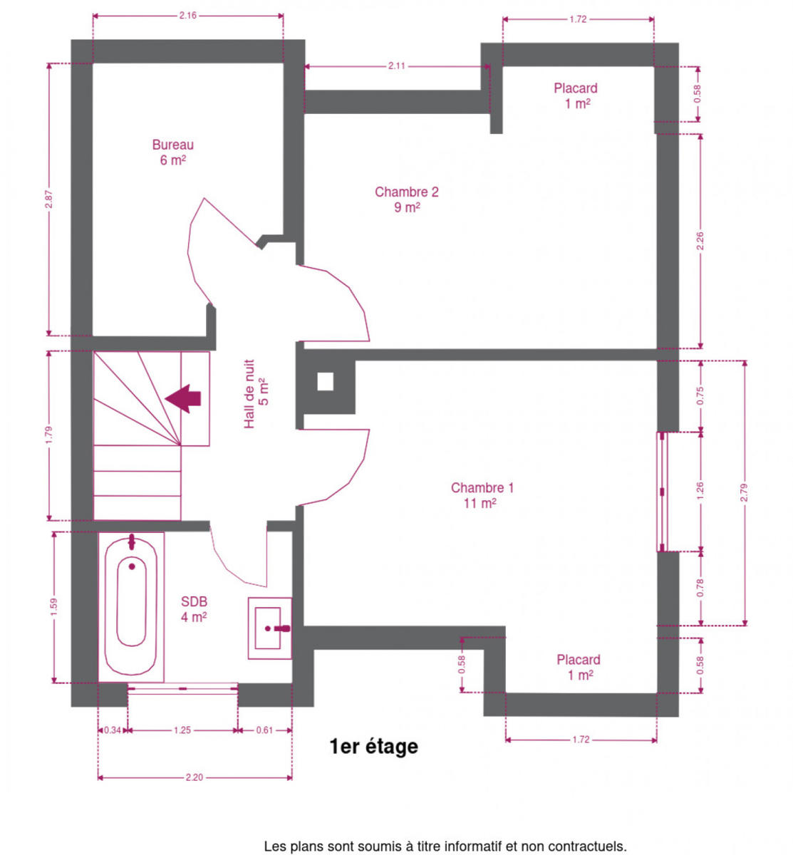
OPTION ! Située dans une rue agréable et proche de nombreuses facilités, CCV Immobilier vous présente cette sympathique maison, construite sur un terrain de 2 ares 87 centiares. Elle offre un volume utilisable de ± 116m²: 2 belles chambres + 1 bureau (6m²), un salon lumineux, une salle à manger pratique, une cuisine fonctionnelle et une salle de bains de bonne taille. Vous y trouverez également une buanderie, une cave, un vaste garage 1 voiture + rangement, une terrasse couverte et une terrasse de 55m² orientées ouest. Situation privilégiée dans une rue avec une très faible circulation et à proximité pédestre des bus et des écoles (< 1 km) et à +/- 1,5 km de toutes les commodités et du centre ville (commerces, gare, axes routiers,...). Prix souhaité: 265.000 euros. Une visite vous intéresse? Contactez Laurence au 0471-43.48.59. https://www.ccv-immobilier.be/fr/bien/a-vendre/maison/1340-ottignies/5105004

Adresse

Avenue des Coquelicots 11 - 1340 Ottignies

Général

Référence 5208410
Catégorie Maison
Nombre de chambres 3
Nombre de salles de bain 1
Jardin Oui
Surface du jardin 287 m²
Garage Oui
Terrasse Oui
Parking Oui
Surface du terrain 287 m²
Disponibilité à l'acte

Nom, catégorie & situation

Nombre d'étages (numéro) 2

Bâtiment

Nombre de garage 1
Parking intérieur Oui
Type de toit en pente
Type de construction traditionnel

Equipement de base

Cuisine Oui
Chauffage (Format/energie) mazout (chauf. centr.)
Type de cuisine amer. semi-équipée
Sdb (Type) bain assis

Divers

Buanderie Oui
Bureau Oui
Cave Oui

En chiffres

Nbre de toilette(s) (nombre) 1
Chambre 1 (surface) 10.86 m²
Chambre 2 (surface) 9.49 m²
Surface brute 116 m²
Garage (surface) 25.92 m²
Salle à manger (surface) 7.49 m²
Cuisine (surface) 10.03 m²
Buanderie (surface) 10.2 m²
Salle de bain 1 (surface) 3.51 m²
Caves (surface) 1.86 m²
Bureau (surface) 5.51 m²
Orientation de la terrasse 1 (-) ouest
Hall de nuit (surface) 4.93 m²

Sécurité

Volets Oui
Détails volets (type) type manuel

À proximité

Transports en commun (distance (m)) 200
Magasins Oui
Ecoles Oui
Transports en commun Oui
Centre sportif Oui
Autoroute Oui
Autoroute (distance (m)) 2400
Gare Oui
Gare (distance (m)) 800

Raccordements

Égouts Oui
Citerne à mazout Oui
Télévision par cable Oui
Câbles téléphoniques Oui
Eau Oui
Électricité (Détails) Bi-horaire
Citerne à mazout (détails) Enterrée, capacité 2000 L

Équipements techniques

Châssis (Ouvertures) bois
Vitrage (type) double vitrage
Type d'évier 1
Évier Oui

Spécificités terrain

Type d'environnement central
Orientation de la terrasse (-) ouest

Caractéristiques Principales

Surface de terrasse 1 55 m²

Type de matériau & évaluation

Type de revêtement de sol carrelages

Certificats / Attestations

Capacité de la citerne à mazout 2000

Equipement extérieur

Jardin (détails) pelouse, haies, ouest

Energie

Label PEB (Classe) E
PEB E-SPEC (kwh/m²/an) (Consommation énergétique) 342
E total (Kwh/an) 51430
PEB code unique (-) 20220121011626
Votre agent
Marie Surges
E-mail Tel.
Prendre contact pour le bien : 5208410

* Champs obligatoires

Préférences pour les cookies

La protection de vos données personnelles est importante pour nous. C’est pourquoi nous détaillons ci-dessous les différents services et fonctionnalités du site qui utilisent des cookies et nous vous laissons décider des cookies que vous souhaitez autoriser ou refuser.

Veuillez cependant noter que si vous bloquez certains types de cookies, cela pourrait impacter votre expérience de navigation sur notre site ainsi que les fonctionnalités disponibles.

Nous utilisons des cookies fonctionnels obligatoires pour assurer le bon fonctionnement du site. Ils sont, par exemple, nécessaires pour retrouver le résultat d’une recherche ou enregistrer le choix de la langue.

Certaines fonctionnalités, comme l’affichage de vidéos ou de cartes géographiques, sont assurées via des composants externes développés par des partenaires comme YouTube ou Google. Certains composants utilisent des cookies qui sont susceptibles de permettre à ces tiers de suivre le comportement des internautes afin, par exemple, de réaliser du ciblage publicitaire. L’activation de ces fonctionnalités et des cookies associés est donc soumis à votre consentement.