Villa - vendu - 1340 Ottignies -

Villa - à vendre - 1340 Ottignies
4 1 174 m² 1 2 PEB : F

Description

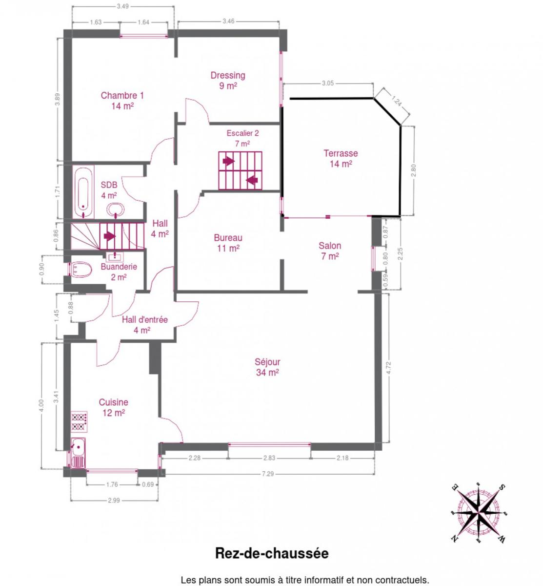
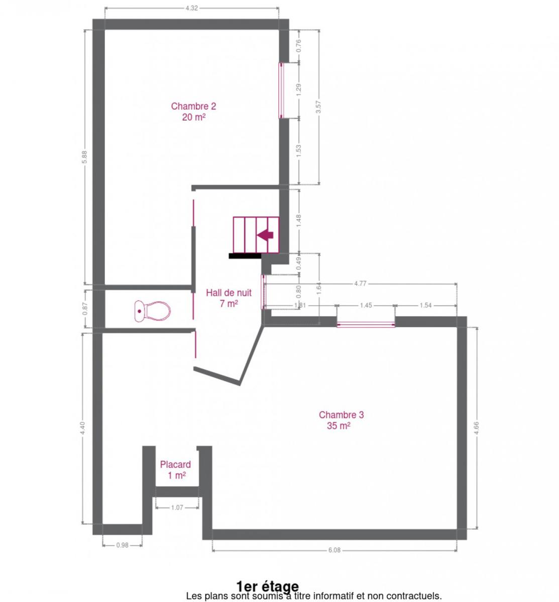
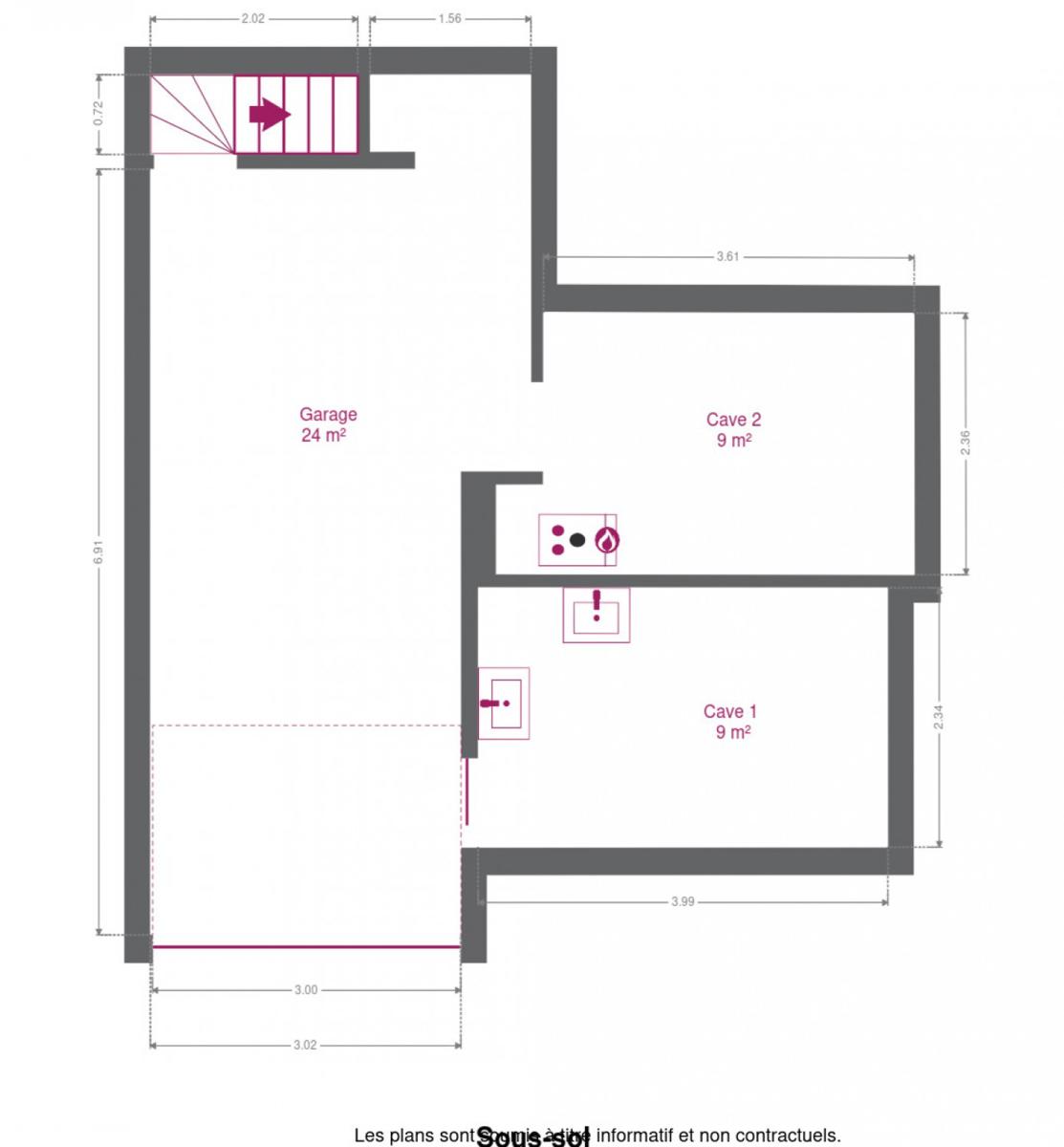
OPTION OPTION COMPROMIS EN COURS... Venez découvrir cette jolie villa 4 façades, idéalement située au calme du très prisé quartier du Petit-Ry, à proximité de toutes les facilités. Elle propose sur près de 220m², un bel espace de vie cosy et lumineux, avec possibilité d'un poêle ou feu ouvert, un coin bureau attenant intimiste donnant sur le jardin, une cuisine équipée fonctionnelle, une buanderie et un wc. Le rez propose également une superbe suite parentale avec dressing, un bureau de 11m² pouvant faire office de 4ème chambre et une salle de bains. L'étage offre 2 spacieuses chambres d'enfants mansardées. Une terrasse intimiste ravira les grands, et un jardin, plat et facile d'entretien, comblera vos enfants. De grandes caves et un garage complètent le tout. Technique: électricité conforme, PEB en classe... Pratique: écoles à proximité, accès à la gare d'Ottignies possible à pieds, nombreux commerces et grands axes à quelques minutes en voiture. Intéressés? Merci d'appeler LAURENCE au 0471/43.48.59

Adresse

Avenue van de walle 47 - 1340 Ottignies

Général

Référence 5291258
Catégorie Villa
Nombre de chambres 4
Nombre de salles de bain 1
Jardin Oui
Surface du jardin 498 m²
Garage Oui
Terrasse Oui
Parking Oui
Surface habitable 174 m²
Surface du terrain 646 m²
Disponibilité 31/10/2023

Bâtiment

Année de construction 1968
Nombre de garage 1
Parking intérieur Oui
Parking extérieur Oui
Année de rénovation 2015
Parking(s) intérieur (nombre) 1
Parking(s) extérieur (nombre) 1
Type de toit en pente
Type de construction traditionnel

Nom, catégorie & situation

Nombre d'étages (numéro) 1

En chiffres

Largeur front de rue 16
Surface bâtie (-) 148
Nbre de toilette(s) (nombre) 2
Chambre 1 (surface) 14 m²
Chambre 2 (surface) 20 m²
Chambre 3 (surface) 35 m²
Surface brute 218 m²
Surface nette 174 m²
Largeur de façade 11
Profondeur terrain 36
Garage (surface) 24 m²
Nbre de terrasse(s) (nombre) 1
Salle de séjour (surface) 34 m²
Cuisine (surface) 12 m²
Buanderie (surface) 2 m²
Dressing (surface) 9 m²
Salle de bain 1 (surface) 4 m²
Caves (surface) 18 m²
Bureau (surface) 11 m²
Hall d'entrée (surface) 4 m²
Orientation de la terrasse 1 (-) sud
Hall de nuit (surface) 7 m²
Nbre de pièce(s) (Nombre) 17

Equipement de base

Cuisine Oui
Double vitrage Oui
Chauffage (Format/energie) chaudière
Marque de chauffage JUNKERS

Divers

Buanderie Oui
Bureau Oui
Cave Oui
Feu ouvert Oui

Sécurité

Volets Oui
Détails volets (type) type roulant

À proximité

Transports en commun (distance (m)) 200
Transports en commun Oui
Autoroute Oui
Autoroute (distance (m)) 2800
Gare Oui
Gare (distance (m)) 1200

Cadastre

Section (-) F
Numéro (n°) 441YP0000
Surface (ha/a/ca) (surf. (ha/a/ca)) 6a46
Revenu cadastral (€) (montant) 2040 €

Raccordements

Égouts Oui
Télévision par cable Oui
Câbles téléphoniques Oui
Électricité (Détails) Bi-horaire

Équipements techniques

Centrale tél. Oui
Châssis (Ouvertures) bois
Évier Oui
Type d'évier 1

Spécificités terrain

Type d'environnement résidentiel
Exposition de la façade avant (-) nord-ouest
Orientation de la terrasse (-) sud
Orientation du jardin (-) sud est

Domaine juridique

Permis de bâtir Oui
Permis de lotir Oui

Caractéristiques Principales

Surface de terrasse 1 14 m²

Type de matériau & évaluation

Type de revêtement de sol carrelages

Certificats / Attestations

Type de certificat d'électricité Oui, conforme

Equipement extérieur

Jardin (détails) Aménagé pelouse
Abri de jardin Oui

Energie

Label PEB (Classe) F
PEB E-SPEC (kwh/m²/an) (Consommation énergétique) 468
E total (Kwh/an) 82705
PEB code unique (-) 20141014006526
PEB valide jusqu'au (validité) 14/10/2024
Date du PEB 14/10/2014
Votre agent
Didier Piraux
E-mail Tel.
Prendre contact pour le bien : 5291258

* Champs obligatoires

Préférences pour les cookies

La protection de vos données personnelles est importante pour nous. C’est pourquoi nous détaillons ci-dessous les différents services et fonctionnalités du site qui utilisent des cookies et nous vous laissons décider des cookies que vous souhaitez autoriser ou refuser.

Veuillez cependant noter que si vous bloquez certains types de cookies, cela pourrait impacter votre expérience de navigation sur notre site ainsi que les fonctionnalités disponibles.

Nous utilisons des cookies fonctionnels obligatoires pour assurer le bon fonctionnement du site. Ils sont, par exemple, nécessaires pour retrouver le résultat d’une recherche ou enregistrer le choix de la langue.

Certaines fonctionnalités, comme l’affichage de vidéos ou de cartes géographiques, sont assurées via des composants externes développés par des partenaires comme YouTube ou Google. Certains composants utilisent des cookies qui sont susceptibles de permettre à ces tiers de suivre le comportement des internautes afin, par exemple, de réaliser du ciblage publicitaire. L’activation de ces fonctionnalités et des cookies associés est donc soumis à votre consentement.