 
                        
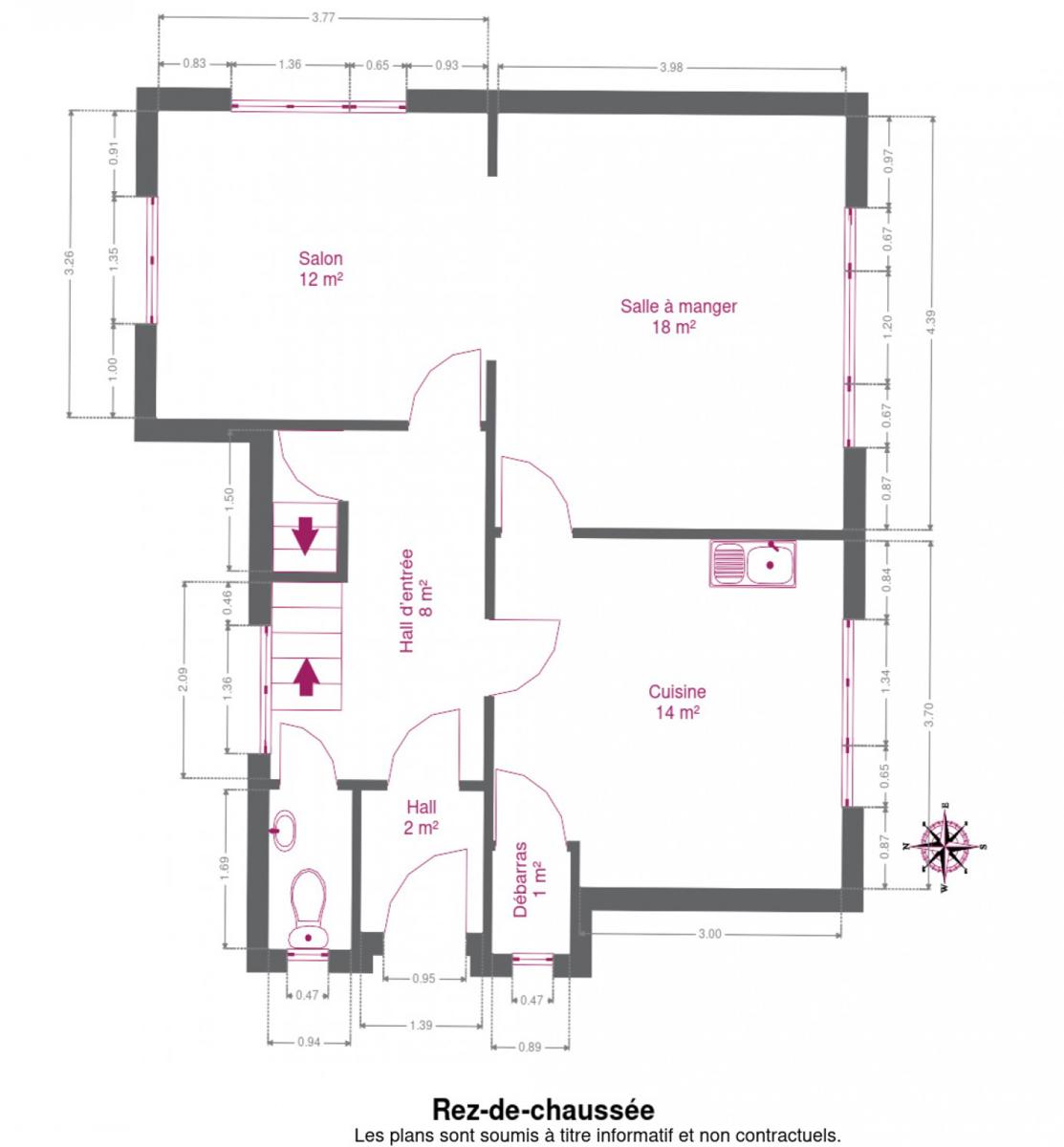
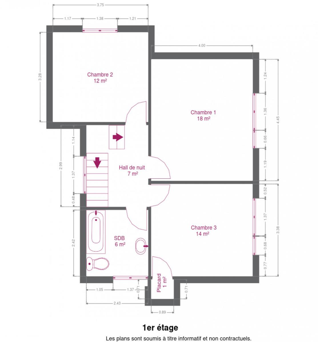
                    OPTION OPTION OPTION COMPROMIS EN COURS... Sur les hauteurs d'Ottignies, à quelques minutes à pied de LLN, dans un cadre exceptionnel, boisé, calme et verdoyant, venez découvrir cette villa 4 façades typique des années 50 à rénover. Les 120m² habitables sont agréablement agencés: grand hall d'entrée avec vestiaire et wc, spacieuse cuisine à remettre au goût du jour, salon et salle à manger attenants avec cheminée fonctionnelle. L'étage distribue 3 belles chambres sur plancher ancien en très bon état et une salle de bains à rénover. Un grenier de rangement (aménagement éventuel envisageable), de grandes caves saines et un garage complètent le tout. Cadre idyllique, jardin sauvage et naturel à aménager selon vos goûts, intimité garantie, accès carrossable depuis l'arrière de la propriété pour rejoindre le garage et à des emplacements de parking privatifs. Pratique: LLN à un jet de pierre, écoles à proximité (Christ Roi, Martin V), commerces à Ottignies ou LLN (Esplanade), gare et bus accessibles à pieds, et grands axes de circulation. Mérite votre attention!! VISITES SUR RDV avec LAURENCE au 0471/43.48.59
Avenue du Parc 11 - 1340 Ottignies
| Référence | 5298816 | 
|---|---|
| Catégorie | Maison | 
| Meublé | Non | 
| Nombre de chambres | 3 | 
| Nombre de salles de bain | 1 | 
| Jardin | Oui | 
| Surface du jardin | 965 m² | 
| Garage | Oui | 
| Parking | Oui | 
| Surface habitable | 120 m² | 
| Surface du terrain | 965 m² | 
| Disponibilité | à l'acte | 
| Année de construction | 1951 | 
|---|---|
| Nombre de garage | 1 | 
| Parking intérieur | Oui | 
| Parking extérieur | Oui | 
| Parking(s) intérieur (nombre) | 1 | 
| Parking(s) extérieur (nombre) | 2 | 
| Type de construction | traditionnel | 
| Nombre d'étages (numéro) | 3 | 
|---|
| Largeur front de rue | 16 | 
|---|---|
| Surface bâtie (-) | 58 | 
| Nbre de toilette(s) (nombre) | 2 | 
| Chambre 1 (surface) | 18 m² | 
| Chambre 2 (surface) | 14 m² | 
| Chambre 3 (surface) | 12 m² | 
| Surface brute | 215 m² | 
| Surface nette | 120 m² | 
| Largeur de façade | 8 | 
| Profondeur terrain | 74 | 
| Garage (surface) | 16 m² | 
| Salle de séjour (surface) | 12 m² | 
| Salle à manger (surface) | 18 m² | 
| Cuisine (surface) | 14 m² | 
| Salle de bain 1 (surface) | 6 m² | 
| Caves (surface) | 45 m² | 
| Grenier (surface) | 35 m² | 
| Hall d'entrée (surface) | 10 m² | 
| Orientation de la terrasse 1 (-) | sud-ouest | 
| Hall de nuit (surface) | 7 m² | 
| Nbre de pièce(s) (Nombre) | 17 | 
| Cuisine | Oui | 
|---|---|
| Chauffage (Format/energie) | gaz (chau. centr.) | 
| Sdb (Type) | bain | 
| Transports en commun (distance (m)) | 250 | 
|---|---|
| Transports en commun | Oui | 
| Autoroute | Oui | 
| Autoroute (distance (m)) | 1600 | 
| Gare | Oui | 
| Gare (distance (m)) | 1700 | 
| Centrale tél. | Oui | 
|---|---|
| Châssis (Ouvertures) | bois | 
| Évier | Oui | 
| Type d'évier | 1 | 
| Type d'environnement | calme | 
|---|---|
| Exposition de la façade avant (-) | sud | 
| Orientation du jardin (-) | nord est | 
| Type de revêtement de sol | carrelages | 
|---|
| Type de grenier | seulement rangement | 
|---|---|
| Grenier | Oui | 
| Cave | Oui | 
| Télévision par cable | Oui | 
|---|---|
| Gaz | Oui | 
| Câbles téléphoniques | Oui | 
| Eau | Oui | 
| Électricité (Détails) | Bi-horaire | 
| Citerne d'eau | Oui | 
|---|---|
| Jardin (détails) | sud, déclivité, aménagé pelouse, Fermé haies clôtures | 
| Groupe hydrophore | Oui | 
| Label PEB (Classe) | E | 
|---|---|
| PEB E-SPEC (kwh/m²/an) (Consommation énergétique) | 370 | 
| E total (Kwh/an) | 61680 | 
| PEB code unique (-) | 20230412018519 | 
| Date du PEB | 12/04/2023 |