
SOUS OPTION ! Située en plein centre d'Ottignies, à 200m du Cœur de Ville et ses commerces, à 2 pas de la gare, cette maison 3 chambres + jardin à rénover entièrement n'attend que vous pour retrouver un nouveau souffle! Elle propose une superficie habitable de +- 130m², et un potentiel habitable de près de 190m² après aménagement du grenier. Au rez, vous bénéficierez d'un séjour double lumineux avec cheminée (actuellement poêle au gaz de ville), d'une cuisine à équiper et d'une extension de type véranda à réhabiliter. À l'étage sur ancien plancher, vous trouverez 3 chambres et une grande salle de bains. Au 2e, le grenier de près de 60m², actuellement brut mais accessible via un escalier déjà existant, vous permettra de concrétiser vos projets futurs ou de stocker en quantité. En extérieur, vous profiterez d'un joli jardin plat orienté quasi plein sud et d'une terrasse sans vis-à-vis. Le sous-sol est constitué de plusieurs caves de rangement. Budget rénovation à prévoir: électricité, chauffage, châssis, toiture, rafraichissement intérieur général. Prix souhaité: 200.000 euros. Une visite? Contactez Laurence au 0471/43.48.59. https://www.ccv-immobilier.be/fr/bien/a-vendre/maison/1340-ottignies/5489241
Boulevard Martin 34 - 1340 Ottignies
Référence | 5489241 |
---|---|
Catégorie | Maison |
Nombre de chambres | 3 |
Nombre de salles de bain | 1 |
Jardin | Oui |
Surface du jardin | 350 m² |
Terrasse | Oui |
Surface habitable | 129 m² |
Surface du terrain | 350 m² |
Disponibilité | en fonct. du locataire |
Nombre d'étages | 3 |
---|
Largeur front de rue | 7 |
---|---|
Surface bâtie (surf. bât. princ.) | 65 |
Nbre de toilette(s) (nombre) | 1 |
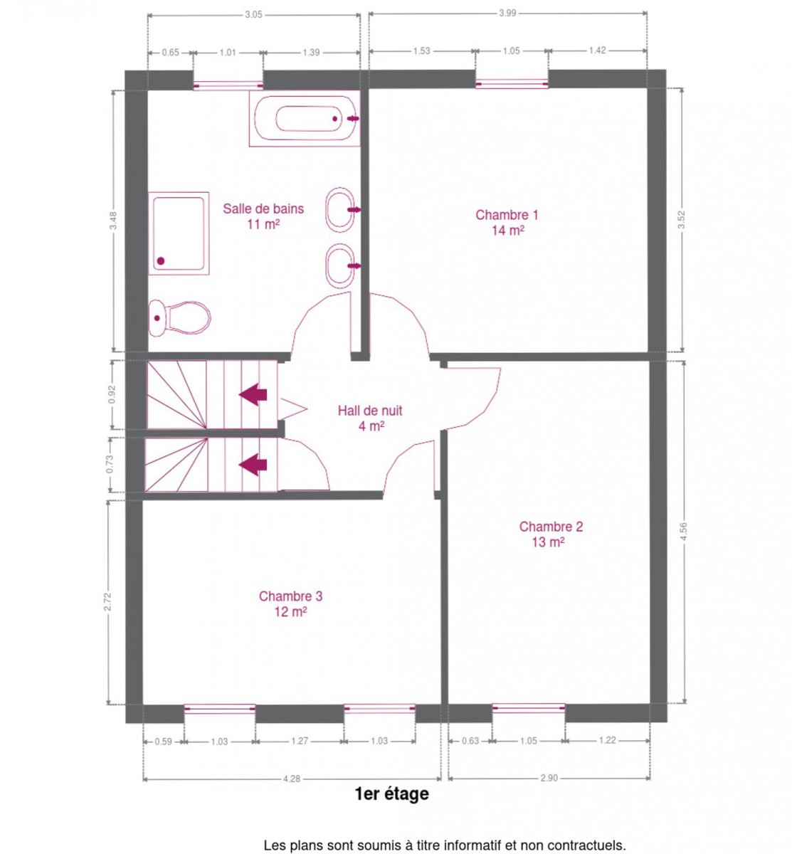
Chambre 1 (surface) | 14.05 m² |
Chambre 2 (surface) | 13.21 m² |
Chambre 3 (surface) | 11.64 m² |
Surface brute | 234 m² |
Surface nette | 129 m² |
Largeur de façade | 7 |
Profondeur terrain | 60 |
Nbre de terrasse(s) (nombre) | 1 |
Salle à manger (surface) | 13.86 m² |
Cuisine (surface) | 10.75 m² |
Salle de bain 1 (surface) | 10.63 m² |
Caves (surface) | 46.41 m² |
Grenier (surface) | 58.87 m² |
Hall d'entrée (surface) | 6.93 m² |
Orientation de la terrasse 1 | sud |
Hall de nuit (surface) | 3.82 m² |
Nbre de pièce(s) (nombre) | 15 |
Cuisine | Oui |
---|---|
Chauffage (type) | gaz |
Transports en commun (distance (m)) | 10 |
---|---|
Transports en commun | Oui |
Autoroute | Oui |
Autoroute (distance (m)) | 1400 |
Gare | Oui |
Gare (distance (m)) | 700 |
Égouts | Oui |
---|---|
Télévision par cable | Oui |
Gaz | Oui |
Câbles téléphoniques | Oui |
Eau | Oui |
Électricité (Détails) | Mono-horaire |
Centrale tél. | Oui |
---|---|
Châssis (type) | pvc |
Évier | Oui |
Type d'évier | 1 |
Type d'environnement | central |
---|---|
Orientation de la terrasse | sud |
Orientation du jardin | sud |
Surface de terrasse 1 | 16 m² |
---|
Type de revêtement de sol | carrelages |
---|
Type de grenier | possibilité d'équiper |
---|---|
Grenier | Oui |
Cave | Oui |
Revenu cadastral (€) (montant) | 758 € |
---|
Citerne d'eau | Oui |
---|---|
Jardin (détails) | sud, déclivité, aménagé pelouse, Fermé clôtures haies |
Groupe hydrophore | Oui |
Certificat d'électricité (oui/non) | oui, non conforme |
---|
Label PEB (classe) | G |
---|---|
PEB E-SPEC (kwh/m²/an) | 629 |
E total (Kwh/an) | 97772 |
PEB code unique | 20220426004289 |
Type de construction | traditionnel |
---|