 
                        
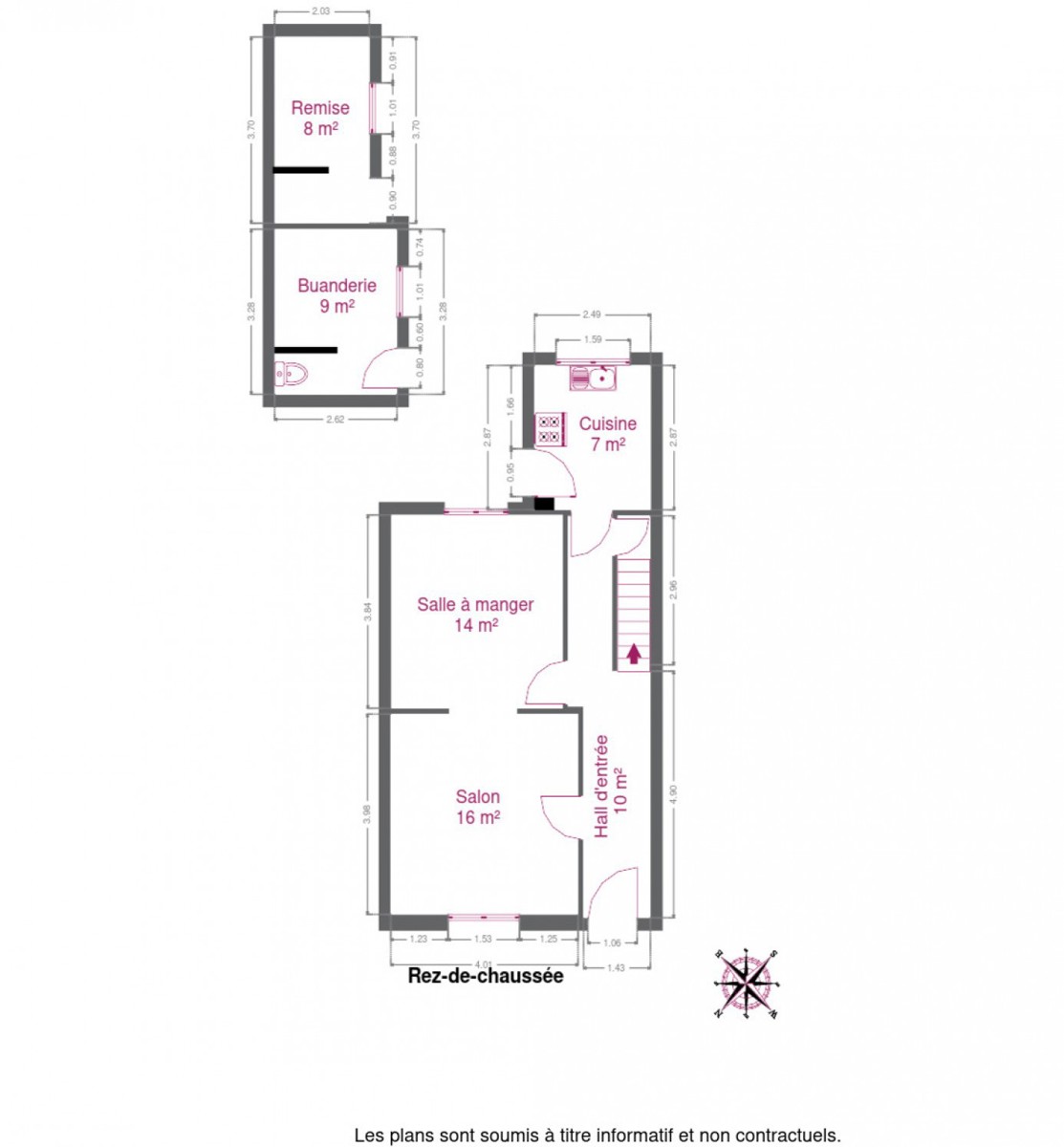
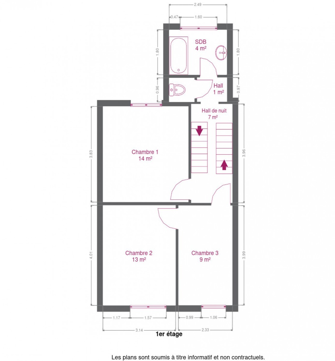
                    OPTION OPTION OPTION COMPROMIS EN COURS... Laissez vous surprendre par cette agréable et charmante maison villageoise idéalement située sur les hauteurs de Ottignies, en très bon état d'entretien, à distance de marche de LLN, proche de la gare, des écoles et grands axes de circulation. Sur près de 185m² utiles, vous découvrirez au rez: hall d'entrée accueillant, salon et salle à manger avec possibilité de feu ouvert/poêle, cuisine fonctionnelle. Le 1er étage propose 3 chambres (dont 1 de passage) et une salle de bains. Le 2ème sous toiture avec accès par escalier, offre 42m² de grenier aménageable: possibilité de 1 ou 2 chambres supplémentaires et une pièce d'eau. En extérieur, des annexes (buanderie), un joli jardin plat et bucolique ravira petits et grands. Maison 3 façades, passage latéral vers la rue (2m de large). Des caves et un parking privatif pour 1 voiture complètent le tout. Technique: électricité conforme, chaudière neuve au gaz de ville, maison habitable immédiatement! VISITES: APPELEZ DIDIER au 0476/98.62.88. https://www.ccv-immobilier.be/fr/bien/a-vendre/maison/1340-ottignies/5496509
| Référence | 5496509 | 
|---|---|
| Catégorie | Maison | 
| Meublé | Non | 
| Nombre de chambres | 3 | 
| Nombre de salles de bain | 1 | 
| Jardin | Oui | 
| Surface du jardin | 235 m² | 
| Garage | Non | 
| Terrasse | Oui | 
| Parking | Oui | 
| Surface habitable | 112 m² | 
| Surface du terrain | 320 m² | 
| Disponibilité | à l'acte | 
| Année de construction | 1920 | 
|---|---|
| Parking intérieur | Non | 
| Parking extérieur | Oui | 
| Année de rénovation | 2000 | 
| Parking(s) extérieur (nombre) | 1 | 
| Type de construction | traditionnel | 
| Nombre d'étages (numéro) | 3 | 
|---|
| Largeur front de rue | 9 | 
|---|---|
| Surface bâtie (-) | 85 | 
| Nbre de toilette(s) (nombre) | 1 | 
| Chambre 1 (surface) | 14 m² | 
| Chambre 2 (surface) | 13 m² | 
| Chambre 3 (surface) | 9 m² | 
| Surface brute | 185 m² | 
| Surface nette | 112 m² | 
| Largeur de façade | 5 | 
| Profondeur terrain | 40 | 
| Salle de séjour (surface) | 16 m² | 
| Salle à manger (surface) | 14 m² | 
| Cuisine (surface) | 7 m² | 
| Buanderie (surface) | 9 m² | 
| Salle de bain 1 (surface) | 5 m² | 
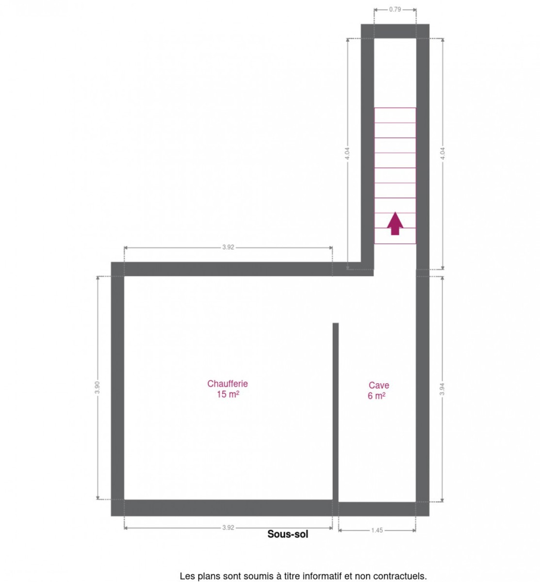
| Caves (surface) | 21 m² | 
| Grenier (surface) | 42 m² | 
| Hall d'entrée (surface) | 10 m² | 
| Atelier (surface) | 8 m² | 
| Orientation de la terrasse 1 (-) | sud | 
| Hall de nuit (surface) | 7 m² | 
| Nbre de pièce(s) (Nombre) | 15 | 
| Cuisine | Oui | 
|---|---|
| Chauffage (Format/energie) | gaz (chau. centr.) | 
| Buanderie | Oui | 
|---|---|
| Type de grenier | possibilité d'équiper | 
| Grenier | Oui | 
| Cave | Oui | 
| Grenier (détails) | à aménager | 
| Transports en commun (distance (m)) | 200 | 
|---|---|
| Transports en commun | Oui | 
| Autoroute | Oui | 
| Autoroute (distance (m)) | 2000 | 
| Gare | Oui | 
| Gare (distance (m)) | 1600 | 
| Égouts | Oui | 
|---|---|
| Télévision par cable | Oui | 
| Gaz | Oui | 
| Câbles téléphoniques | Oui | 
| Eau | Oui | 
| Électricité (Détails) | Mono-horaire, nombre 1 | 
| Centrale tél. | Oui | 
|---|---|
| Châssis (Ouvertures) | bois | 
| Évier | Oui | 
| Type d'évier | 1 | 
| Type d'environnement | central | 
|---|---|
| Exposition de la façade avant (-) | nord-ouest | 
| Orientation de la terrasse (-) | sud | 
| Orientation du jardin (-) | sud | 
| Surface de terrasse 1 | 10 m² | 
|---|
| Surface (m²) de annexe | 8 m² | 
|---|---|
| Jardin (détails) | sud, déclivité, aménagé pelouse, Fermé palissades murs clôtures muret | 
| Cour | Oui | 
| Type de revêtement de sol | carrelages | 
|---|
| Label PEB (Classe) | G | 
|---|---|
| PEB E-SPEC (kwh/m²/an) (Consommation énergétique) | 683 | 
| E total (Kwh/an) | 83397 | 
| PEB code unique (-) | 20230824018052 | 
| PEB valide jusqu'au (validité) | 24/08/2033 | 
| Date du PEB | 24/08/2023 |