
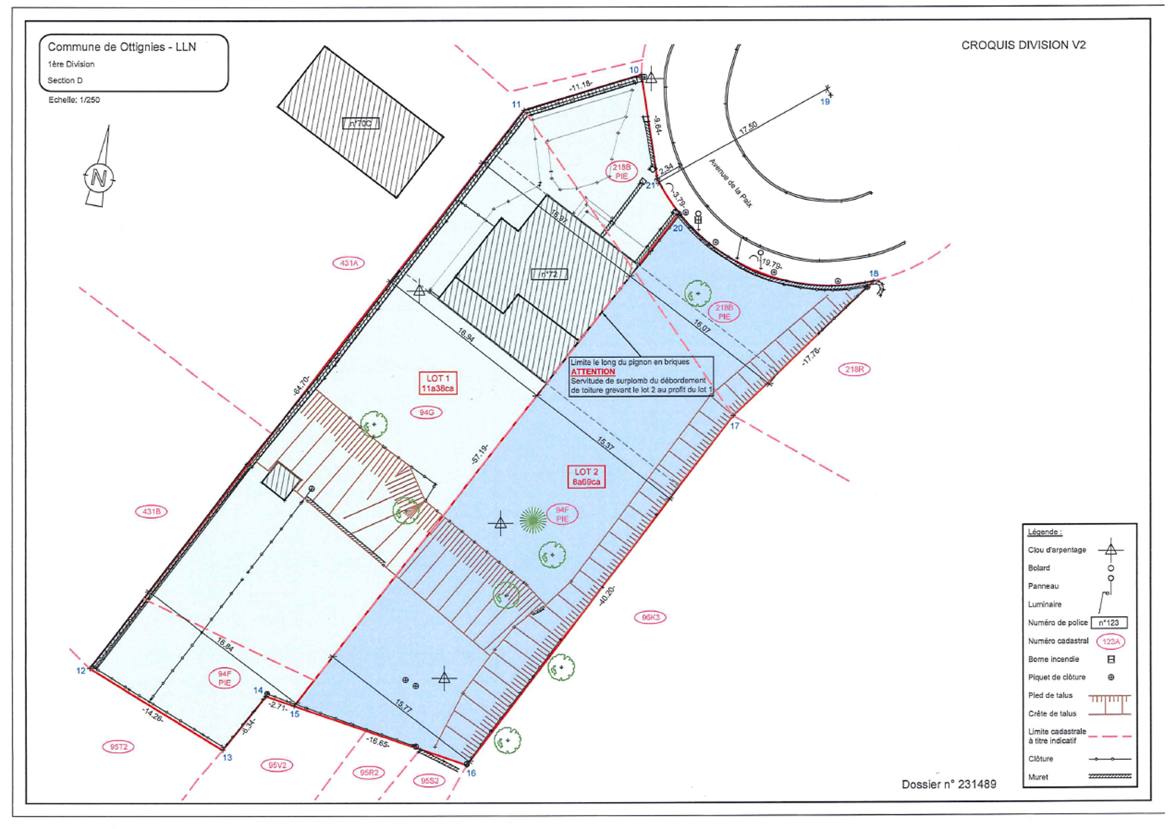
OPTION OPTION OPTION !! CCV immobilier vous invite à venir découvrir cette volumineuse villa 3 façades des années 70 (lot 1 sur le plan de géomètre), sur un terrain de 11 ares 38, à rénover et à mettre au goût du jour, située dans un cadre calme et verdoyant sur les hauteurs d'Ottignies, un véritable paradis pour vos enfants. Environnement pratique aussi à proximité des commerces, des écoles, de la gare, des grands axes de communication et de LLN à un jet de pierre! Superficie utile de 384m² dont 228m² habitables (chauffés). Le rez distribue un beau séjour lumineux, une cuisine à rénover, un bureau, une salle à manger, une grande sdb, une véranda et un vestiaire. L'étage propose 5 belles chambres (dont une à transformer éventuellement en sdb). Un grenier de rangement, de grandes caves et un double garage complètent le tout. Un magnifique jardin intime orienté sud-ouest ravira petits et grands. L'ensemble est très sain mais nécessite néanmoins un budget travaux: châssis, électricité, cuisine et sdb ainsi qu'un rafraîchissement général. Possibilité d'acquérir en plus un terrain à bâtir attenant pour une superficie de 8a69ca (lot 2 sur le plan de géomètre)! La limite des 2 lots se situe le long du pignon aveugle de la maison objet de la vente. Une visite?
https://www.ccv-immobilier.be/fr/bien/a-vendre/maison/1340-ottignies/5540747
Avenue de la Paix 72 - 1340 Ottignies
Référence | 5540747 |
---|---|
Catégorie | Maison |
Nombre de chambres | 5 |
Nombre de salles de bain | 1 |
Jardin | Oui |
Surface du jardin | 1138 m² |
Garage | Oui |
Terrasse | Non |
Parking | Oui |
Surface habitable | 228 m² |
Surface du terrain | 1138 m² |
Disponibilité | à l'acte |
Année de construction | 1970 |
---|---|
Nombre de garage | 1 |
Parking intérieur | Oui |
Parking extérieur | Oui |
Parking(s) intérieur (nombre) | 2 |
Parking(s) extérieur (nombre) | 2 |
Type de toit | en pente |
Type de construction | traditionnel |
Nombre d'étages (numéro) | 3 |
---|
Cuisine | Oui |
---|---|
Chauffage (Format/energie) | mazout (chauf. centr.) |
Nbre de toilette(s) (nombre) | 1 |
---|---|
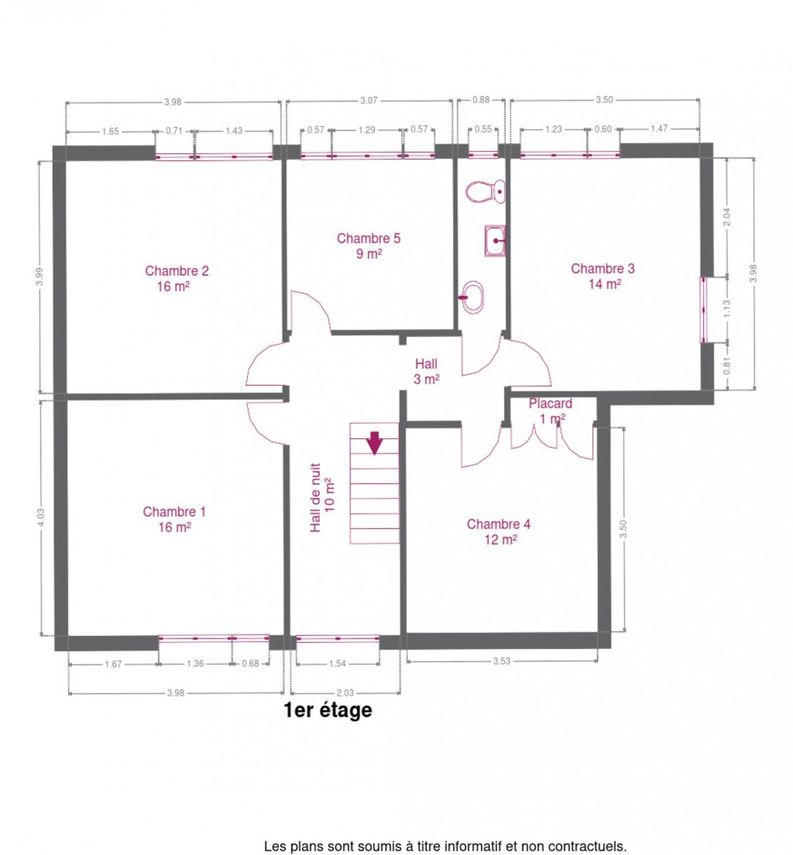
Chambre 1 (surface) | 16 m² |
Chambre 2 (surface) | 16 m² |
Chambre 3 (surface) | 14 m² |
Chambre 4 (surface) | 12 m² |
Chambre 5 (surface) | 9 m² |
Surface brute | 384 m² |
Surface nette | 228 m² |
Garage (surface) | 33 m² |
Salle de séjour (surface) | 33 m² |
Salle à manger (surface) | 14 m² |
Cuisine (surface) | 12 m² |
Salle de bain 1 (surface) | 7 m² |
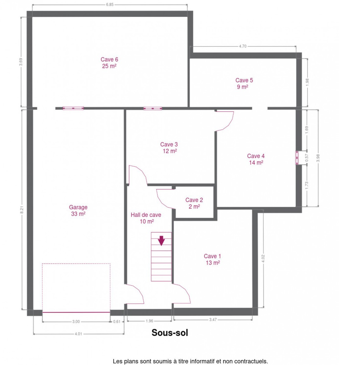
Caves (surface) | 85 m² |
Grenier (surface) | 38 m² |
Bureau (surface) | 13 m² |
Hall d'entrée (surface) | 10 m² |
Atelier (surface) | 12 m² |
Orientation de la terrasse 1 (-) | sud-ouest |
Hall de nuit (surface) | 13 m² |
Véranda | Oui |
---|---|
Bureau | Oui |
Vestiaire | Oui |
Type de grenier | seulement rangement |
Grenier | Oui |
Cave | Oui |
Volets | Oui |
---|---|
Volets (type) | type roulant |
Transports en commun (distance (m)) | 250 |
---|---|
Transports en commun | Oui |
Autoroute | Oui |
Autoroute (distance (m)) | 1400 |
Gare | Oui |
Gare (distance (m)) | 600 |
Section (-) | D |
---|---|
Numéro (n°) | 94P0000 |
Surface (ha/a/ca) (surf. (ha/a/ca)) | 898ca |
Revenu cadastral (€) (montant) | 2716 € |
Châssis (Ouvertures) | aluminium |
---|---|
Type d'évier | 2 |
Évier | Oui |
Type d'environnement | central |
---|---|
Orientation du jardin (-) | sud ouest |
Type de revêtement de sol | carrelages |
---|
Télévision par cable | Oui |
---|---|
Câbles téléphoniques | Oui |
Électricité (Détails) | Bi-horaire |
Jardin (détails) | sud-ouest, déclivité, aménagé pelouse, Fermé clôtures, Aménagé pelouse |
---|
Label PEB (Classe) | F |
---|---|
PEB E-SPEC (kwh/m²/an) (Consommation énergétique) | 461 |
E total (Kwh/an) | 111872 |
PEB code unique (-) | 20230614038330 |
PEB valide jusqu'au (validité) | 14/06/2033 |
Date du PEB | 14/06/2023 |