Maison - vendu - 1340 Ottignies -

Maison - à vendre - 1340 Ottignies
6 2 212 m² 2 6 PEB : D

Description

Située sur la rue de Pinchart à proximité de toutes les facilités, venez absolument découvrir cette grande villa familiale des années 70 avec son joli jardin intime, son double garage et son potentiel unique. Sur un total de plus de 270m² répartis sur 3 niveaux de vie, vous pourrez laisser libre cours à votre imagination et à vos besoins: profession libérale, famille nombreuse ou recomposée, cohabitation... Elle offre un total de 6 chambres, 2 salles de bains, 2 possibilités d'espace de vie différents, des belles caves... Elle nécessitera cependant quelques aménagements, rafraîchissements et une mise à votre goût personnel. Pratique: bus, écoles, commerces, gare et grands axes de circulation tout proche! Une visite vous tente? Merci d'appeler Marie Verlinden au 0496/53.75.41... https://www.ccv-immobilier.be/fr/bien/a-vendre/maison/1340-ottignies/7212296

Adresse

Rue de Pinchart 41 - 1340 Ottignies

Général

Référence 7212296
Catégorie Maison
Meublé Non
Nombre de chambres 6
Nombre de salles de bain 2
Jardin Oui
Surface du jardin 453 m²
Garage Oui
Terrasse Oui
Parking Oui
Surface habitable 212 m²
Surface du terrain 629 m²
Disponibilité à l'acte

Bâtiment

Année de construction 1968
Nombre de garage 2
Parking intérieur Oui
Parking extérieur Oui
Année de rénovation 2000
Parking(s) intérieur (nombre) 2
Parking(s) extérieur (nombre) 4
Type de toit en pente
Type de construction traditionnel

Nom, catégorie & situation

Nombre d'étages 3

Equipement de base

Cuisine Oui
Chauffage (type) gaz
Marque de chauffage BUDERUS

Divers

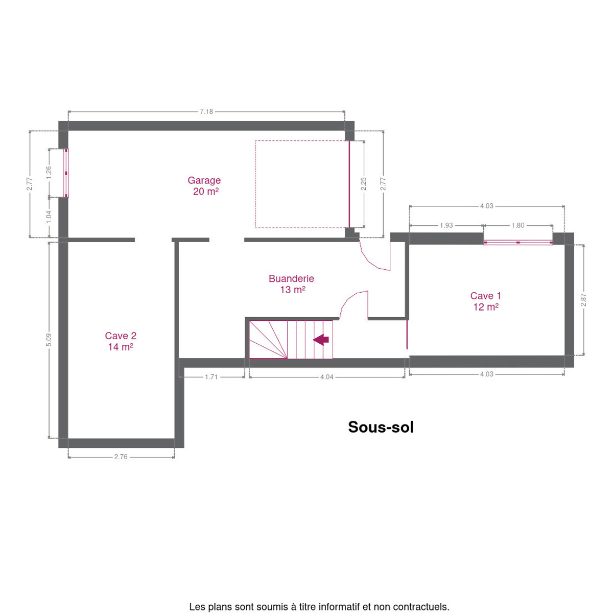
Buanderie Oui
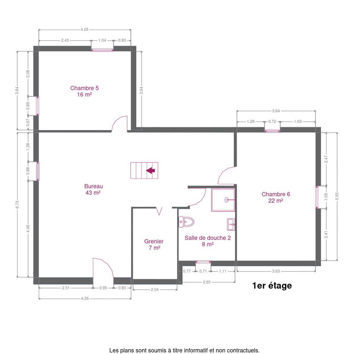
Bureau Oui
Type de grenier seulement rangement
Grenier Oui
Cave Oui
Feu ouvert Oui

En chiffres

Nbre de toilette(s) (nombre) 2
Chambre 1 (surface) 7 m²
Chambre 2 (surface) 9 m²
Chambre 3 (surface) 12 m²
Chambre 4 (surface) 12 m²
Chambre 5 (surface) 16 m²
Chambre 6 (surface) 22 m²
Surface brute 272 m²
Surface nette 212 m²
Garage (surface) 20 m²
Salle de séjour (surface) 36 m²
Cuisine (surface) 14 m²
Buanderie (surface) 13 m²
Caves (surface) 23.12 m²
Grenier (surface) 7 m²
Sdd (surface (sdd1)) 4 m²
Bureau (surface) 43 m²
Hall d'entrée (surface) 15 m²
Orientation de la terrasse 1 sud-ouest
Salle de bains 2 (surface) 8 m²

À proximité

Magasins (distance (m)) 3000
Transports en commun (distance (m)) 60
Transports en commun Oui
Autoroute Oui
Autoroute (distance (m)) 2300
Gare Oui
Gare (distance (m)) 1500

Cadastre

Section F
Numéro (n°) 0326GP0000
Surface (ha/a/ca) (surf. (ha/a/ca)) 629ca
Revenu cadastral (€) (montant) 2991 €

Raccordements

Égouts Oui
Télévision par cable Oui
Gaz Oui
Câbles téléphoniques Oui
Eau Oui
Électricité (Détails) Bi-horaire

Équipements techniques

Châssis (type) bois
Évier Oui
Type d'évier 2

Spécificités terrain

Type d'environnement calme
Orientation de la terrasse sud ouest
Orientation du jardin sud ouest

Caractéristiques Principales

Surface de terrasse 1 15 m²

Type de matériau & évaluation

Type de revêtement de sol carrelages

Equipement extérieur

Jardin (détails) plat
Fosse septique Oui

Certificats énergétiques

Label PEB (classe) D
PEB E-SPEC (kwh/m²/an) 300
E total (Kwh/an) 67549
PEB code unique 20250605002783
PEB valide jusqu'au (datetime) 05/06/2035
Date du PEB (datetime) 05/06/2025
Votre agent
Marie Verlinden
E-mail Tel.
Prendre contact pour le bien : 7212296

* Champs obligatoires

Préférences pour les cookies

La protection de vos données personnelles est importante pour nous. C’est pourquoi nous détaillons ci-dessous les différents services et fonctionnalités du site qui utilisent des cookies et nous vous laissons décider des cookies que vous souhaitez autoriser ou refuser.

Veuillez cependant noter que si vous bloquez certains types de cookies, cela pourrait impacter votre expérience de navigation sur notre site ainsi que les fonctionnalités disponibles.

Nous utilisons des cookies fonctionnels obligatoires pour assurer le bon fonctionnement du site. Ils sont, par exemple, nécessaires pour retrouver le résultat d’une recherche ou enregistrer le choix de la langue.

Certaines fonctionnalités, comme l’affichage de vidéos ou de cartes géographiques, sont assurées via des composants externes développés par des partenaires comme YouTube ou Google. Certains composants utilisent des cookies qui sont susceptibles de permettre à ces tiers de suivre le comportement des internautes afin, par exemple, de réaliser du ciblage publicitaire. L’activation de ces fonctionnalités et des cookies associés est donc soumis à votre consentement.