Maison - vendu - 1341 Céroux-mousty -

Maison - à vendre - 1341 Céroux-mousty
4 1 150 m² 1 4 PEB : G

Description

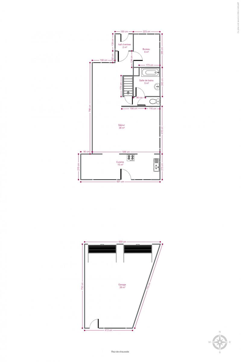
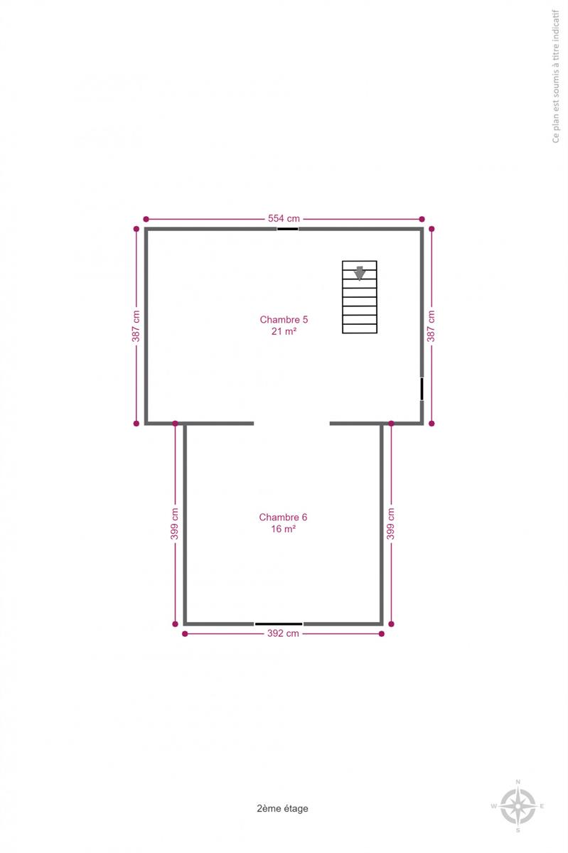
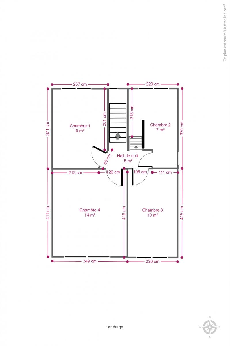
VENDU VENDU VENDU!... Charmante et lumineuse maison 4 façades sise sur un terrain plat de +- 6 ares, au cœur d'un quartier résidentiel à la situation hyper stratégique! Gare d'Ottignies, centre commercial du Douaire, Hôpital, écoles, centre sportif... Vous trouverez toutes les facilités à distance de marche - arrêt de bus à 20m. Elle se compose comme suit : au rez, hall d'entrée, lumineux et spacieux séjour avec cheminée, cuisine équipée semi-ouverte, bureau, salle de bains, WC visiteurs. À l'étage, vous trouverez 3 chambres + 1 bureau non mansardés. Au 2e, une grande pièce polyvalente de 36m² déjà aménagée et accessible via escalier permanent, présentant tout l'espace nécessaire pour 1 voire 2 chambres. Agréable jardin plat orienté plein sud! Gros atouts supplémentaires : sous-sol de 20m² - double garage - parking pour plusieurs voitures - chaudière récente au gaz de ville. Prévoir budget pour rafraîchissements et mise à votre goût personnel... FOAP de 270.000€, sous réserve d'acceptation de l'offre par les propriétaires! Évaluation gratuite et sans engagement de votre projet! https://www.ccv-immobilier.be/fr/bien/a-vendre/maison/1341-ceroux-mousty/4142638

Adresse

Rue des coquerées 79 - 1341 Céroux-mousty

Général

Référence 4142638
Catégorie Maison
Meublé Non
Nombre de chambres 4
Nombre de salles de bain 1
Jardin Oui
Garage Oui
Terrasse Oui
Parking Oui
Surface habitable 150 m²
Surface du terrain 545 m²
Disponibilité à l'acte

Nom, catégorie & situation

Nombre d'étages (numéro) 2

Bâtiment

Nombre de garage 1
Parking intérieur Oui
Parking extérieur Oui
Parking(s) intérieur (nombre) 2
Parking(s) extérieur (nombre) 2
Type de construction traditionnel

En chiffres

Surface bâtie (-) 108
Nbre de toilette(s) (nombre) 1
Chambre 1 (surface) 14 m²
Chambre 2 (surface) 9 m²
Chambre 3 (surface) 9 m²
Chambre 4 (surface) 36 m²
Surface brute 210 m²
Surface nette 150 m²
Largeur de façade 5
Garage (surface) 39 m²
Nbre de terrasse(s) (nombre) 1
Salle de séjour (surface) 38 m²
Cuisine (surface) 14 m²
Salle de bain 1 (surface) 5 m²
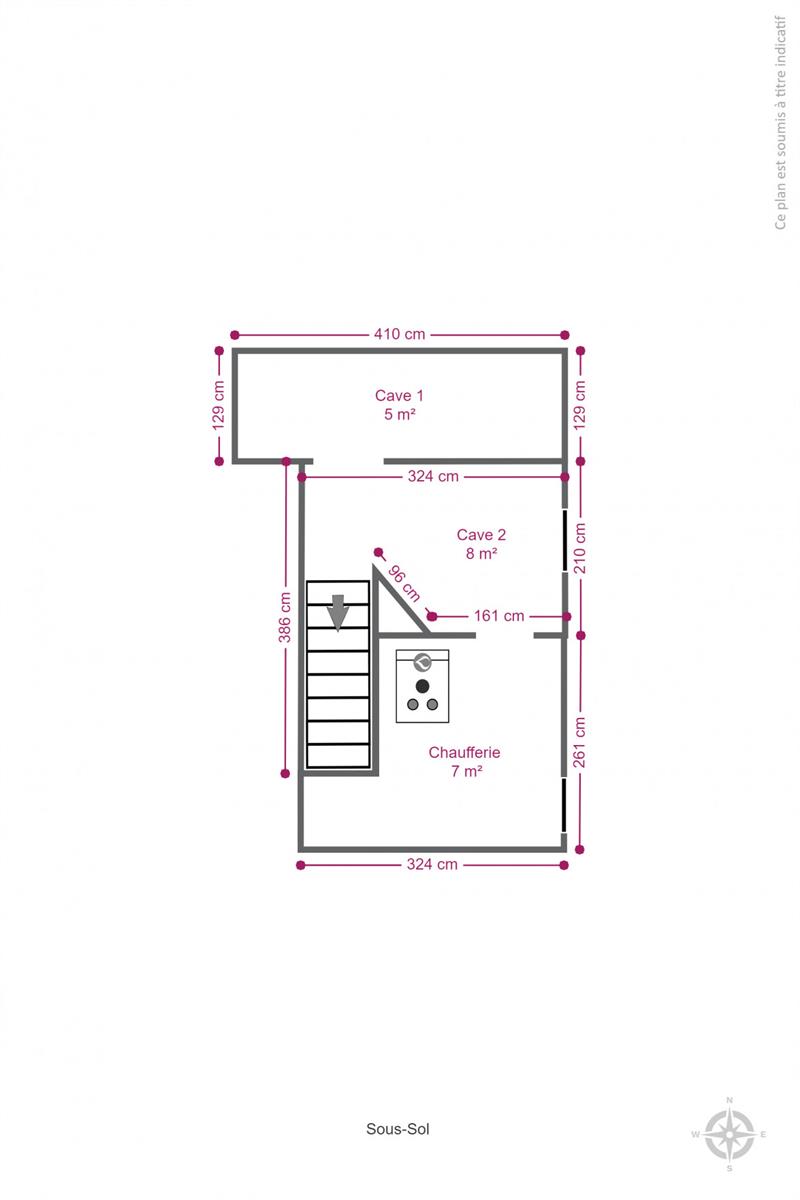
Caves (surface) 20 m²
Bureau (surface) 7 m²
Orientation de la terrasse 1 (-) sud
Hall de nuit (surface) 4 m²

Equipement de base

Cuisine Oui
Double vitrage Oui
Chauffage (Format/energie) gaz (chau. centr.)
Type de cuisine amer. équipée
Sdb (Type) douche dans le bain
Marque de chauffage marque junkers

Divers

Bureau Oui
Type de grenier grenier avec chambres
Grenier Oui
Cave Oui
Grenier (détails) pré-aménagé - espace pour 2 chambres

Sécurité

Volets Oui
Détails volets (type) oscillo-battants

À proximité

Magasins (distance (m)) 1200
Écoles (distance (m)) 750
Transports en commun (distance (m)) 20
Centre-ville (distance (m)) 1000
Centre sportif (distance (m)) 250
Magasins Oui
Ecoles Oui
Transports en commun Oui
Centre-ville Oui
Centre sportif Oui
Autoroute Oui
Autoroute (distance (m)) 5500
Gare Oui
Gare (distance (m)) 1700
Transports en commun - détails arrêt de bus à 20 mètres

Raccordements

Égouts Oui
Télévision par cable Oui
Gaz Oui
Eau Oui

Équipements techniques

Châssis (Ouvertures) pvc
Vitrage (type) double vitrage
Évier Oui

Spécificités terrain

Type d'environnement résidentiel
Orientation de la terrasse (-) sud
Orientation du jardin (-) sud
Environnement détail 2 (détails) Proximité gare et centre commercial

Caractéristiques Principales

Surface de terrasse 1 17 m²

Domaine juridique

Destination bâtiment (type) privé - unifamilial
Affectation urbanistique zone d'habitat

Type de matériau & évaluation

État de la toiture (appréciation) 4
État de la toiture (détails) Tuiles terre cuite
État des châssis (-) 3
État des sanitaires (appréciation) 4
État de l'électricité (appréciation) 4
État du chauffage (appréciation) 4
État de la cuisine (appréciation) 3
État des sols (appréciation) 2

Equipement extérieur

Jardin (détails) Plat, orienté sud, aménagé, rangement
Abri de jardin Oui

Energie

Label PEB (Classe) G
PEB E-SPEC (kwh/m²/an) (Consommation énergétique) 687
E total (Kwh/an) 124316
PEB code unique (-) 20170920015633
Votre agent
Marie Verlinden
E-mail Tel.
Prendre contact pour le bien : 4142638

* Champs obligatoires

Préférences pour les cookies

La protection de vos données personnelles est importante pour nous. C’est pourquoi nous détaillons ci-dessous les différents services et fonctionnalités du site qui utilisent des cookies et nous vous laissons décider des cookies que vous souhaitez autoriser ou refuser.

Veuillez cependant noter que si vous bloquez certains types de cookies, cela pourrait impacter votre expérience de navigation sur notre site ainsi que les fonctionnalités disponibles.

Nous utilisons des cookies fonctionnels obligatoires pour assurer le bon fonctionnement du site. Ils sont, par exemple, nécessaires pour retrouver le résultat d’une recherche ou enregistrer le choix de la langue.

Certaines fonctionnalités, comme l’affichage de vidéos ou de cartes géographiques, sont assurées via des composants externes développés par des partenaires comme YouTube ou Google. Certains composants utilisent des cookies qui sont susceptibles de permettre à ces tiers de suivre le comportement des internautes afin, par exemple, de réaliser du ciblage publicitaire. L’activation de ces fonctionnalités et des cookies associés est donc soumis à votre consentement.