Maison - vendu - 1341 Céroux-mousty -

Maison - à vendre - 1341 Céroux-mousty
2 1 88 m² 1 PEB : E

Description

OPTION OPTION OPTION, COMPROMIS EN COURS...!! À quelques mètres de la splendide place de Céroux, célèbre pour ses envols de montgolfières, et à proximité immédiate de Lasne et du centre de Rixensart, venez découvrir cette maison villageoise bénéficiant d'un joli jardin avec vue dégagée sur les prairies... Sur 120m² utiles, elle propose sur 3 niveaux: rez: hall d'entrée, garage 1 voiture, buanderie avec accès vers le jardin; 1er: pièce de vie ouverte et lumineuse (orientation sud), cuisine fonctionnelle et salle de bains à rafraîchir. Le 2ème étage dispose d'un espace de rangement et de 2 chambres sous toiture. Place de parking privative devant la maison. Le tout à proximité de toutes les facilités: commerces, gare, écoles à Ottignies. Travaux à prévoir dont la pose d'une chaudière individuelle! VENTE SOUMISE A CONDITION: libération du bien en fonction du locataire...! FAIRE OFFRE A PARTIR DE 200.000€, SOUS RESERVE D'ACCEPTATION DU PROPRIETAIRE... https://www.ccv-immobilier.be/fr/bien/a-vendre/maison/1341-ceroux-mousty/4771604

Adresse

Grand-rue 19 - 1341 Céroux-mousty

Général

Référence 4771604
Catégorie Maison
Nombre de chambres 2
Nombre de salles de bain 1
Jardin Oui
Surface du jardin 290 m²
Garage Oui
Parking Oui
Surface habitable 88 m²
Surface du terrain 290 m²
Disponibilité en fonct. du locataire

Nom, catégorie & situation

Nombre d'étages (numéro) 3

Bâtiment

Nombre de garage 1
Parking intérieur Oui
Parking extérieur Oui
Type de construction traditionnel

Equipement de base

Cuisine Oui
Chauffage (Format/energie) Pas installé

Divers

Buanderie Oui
Feu ouvert Oui

En chiffres

Nbre de toilette(s) (nombre) 1
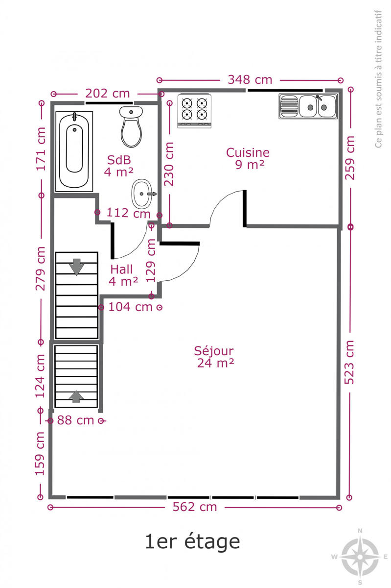
Chambre 1 (surface) 12.32 m²
Chambre 2 (surface) 8.91 m²
Surface brute 106 m²
Surface nette 88 m²
Garage (surface) 18.02 m²
Salle de séjour (surface) 24.17 m²
Cuisine (surface) 9.1 m²
Buanderie (surface) 9.47 m²
Salle de bain 1 (surface) 4.03 m²
Hall d'entrée (surface) 7.3 m²
Hall de nuit (surface) 4.56 m²

À proximité

Transports en commun (distance (m)) 300
Transports en commun Oui
Autoroute Oui
Autoroute (distance (m)) 4000
Gare Oui
Gare (distance (m)) 4000

Équipements techniques

Châssis (Ouvertures) bois
Évier Oui
Type d'évier 2

Spécificités terrain

Type d'environnement central
Orientation du jardin (-) nord

Type de matériau & évaluation

Type de revêtement de sol carrelages

Raccordements

Télévision par cable Oui
Eau Oui
Électricité (Détails) Bi-horaire

Equipement extérieur

Jardin (détails) nord, déclivité plat, Aménagé pelouse, fermé haies clôtures
Fosse septique Oui

Energie

Label PEB (Classe) E
PEB E-SPEC (kwh/m²/an) (Consommation énergétique) 424
E total (Kwh/an) 43616
PEB code unique (-) 20220321019720
Votre agent
Didier Piraux
E-mail Tel.
Prendre contact pour le bien : 4771604

* Champs obligatoires

Préférences pour les cookies

La protection de vos données personnelles est importante pour nous. C’est pourquoi nous détaillons ci-dessous les différents services et fonctionnalités du site qui utilisent des cookies et nous vous laissons décider des cookies que vous souhaitez autoriser ou refuser.

Veuillez cependant noter que si vous bloquez certains types de cookies, cela pourrait impacter votre expérience de navigation sur notre site ainsi que les fonctionnalités disponibles.

Nous utilisons des cookies fonctionnels obligatoires pour assurer le bon fonctionnement du site. Ils sont, par exemple, nécessaires pour retrouver le résultat d’une recherche ou enregistrer le choix de la langue.

Certaines fonctionnalités, comme l’affichage de vidéos ou de cartes géographiques, sont assurées via des composants externes développés par des partenaires comme YouTube ou Google. Certains composants utilisent des cookies qui sont susceptibles de permettre à ces tiers de suivre le comportement des internautes afin, par exemple, de réaliser du ciblage publicitaire. L’activation de ces fonctionnalités et des cookies associés est donc soumis à votre consentement.