
OPTION OPTION OPTION COMPROMIS EN COURS... Une visite ? Contactez Laurence au 0471/43.48.59 ! Venez découvrir cette villa de caractère proposant une superficie totale de 275m² sur 12a51ca. La maison propose de magnifiques volumes: un spacieux living de +/- 45m², une cuisine avec espace déjeuner et un accès direct au cellier, 5 belles chambres, une salle de bains ainsi qu'une chaufferie et un garage. De plus, vous aurez également la possibilité d'aménager les greniers en bureau, salle de jeux ou chambres supplémentaires. En extérieur, vous pourrez profiter d'une grande terrasse sans aucun vis-à-vis orientée sud-est. Le jardin arrière forme d'abord un talus abrupte puis présente une partie plate sur la hauteur, permettant aux enfants de profiter d'un environnement verdoyant, arboré et intimiste, ou aux parents d'aménager potager, verger etc. Sain et de qualité, le bien se veut rassurant mais nécessite toutefois une rénovation pour une remise aux gouts du jour. Commerces, écoles à proximité immédiate et gare d'Ottignies à 2km. Faire offre à partir de 355 000€ sous réserve de l'accord des propriétaires. Une visite ? Contactez Laurence au 0471/43.48.59 ! https://www.ccv-immobilier.be/fr/bien/a-vendre/maison/1341-ceroux-mousty/5823862
Avenue des Vallées 17 - 1341 Céroux-mousty
Référence | 5823862 |
---|---|
Catégorie | Maison |
Nombre de chambres | 5 |
Nombre de salles de bain | 1 |
Jardin | Oui |
Garage | Oui |
Terrasse | Oui |
Surface habitable | 155 m² |
Surface du terrain | 1251 m² |
Disponibilité | à l'acte |
Année de construction | 1952 |
---|---|
Nombre de garage | 1 |
Parking intérieur | Oui |
Parking extérieur | Oui |
Parking(s) extérieur (nombre) | 1 |
Type de toit | en pente |
Garage (détails) | 1 voiture |
Type de construction | traditionnel |
Nombre d'étages | 2 |
---|
Cuisine | Oui |
---|---|
Chauffage (type) | pellets |
Type de cuisine | semi-équipée |
Sdb (type) | bain assis |
Marque de chauffage | Wolf |
Nbre de toilette(s) (nombre) | 1 |
---|---|
Chambre 1 (surface) | 8.93 m² |
Chambre 2 (surface) | 14.44 m² |
Chambre 3 (surface) | 10.9 m² |
Chambre 4 (surface) | 12.55 m² |
Chambre 5 (surface) | 11.55 m² |
Surface brute | 273 m² |
Surface nette | 155 m² |
Garage (surface) | 20.04 m² |
Salle de séjour (surface) | 24 m² |
Salle à manger (surface) | 20.81 m² |
Cuisine (surface) | 13.34 m² |
Salle de bain 1 (surface) | 4.36 m² |
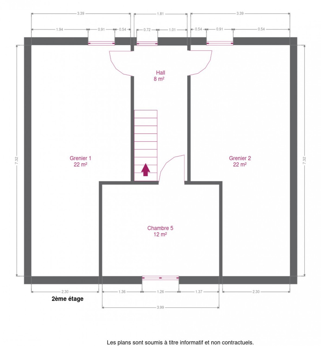
Grenier (surface) | 21.53 m² |
Hall d'entrée (surface) | 9.77 m² |
Hall de nuit (surface) | 10.78 m² |
Atelier | Oui |
---|---|
Jardin (détails) | sud-est, plat, aménagé pelouse, Fermé clôtures haies, sud-est, en pente, nord-ouest, Fermé haies, nord-est, Aménagé pelouse, fermé clôtures haies |
Fosse septique | Oui |
Abri de jardin | Oui |
Égouts | Oui |
---|---|
Citerne à mazout | Oui |
Gaz | Oui |
Câbles téléphoniques | Oui |
Eau | Oui |
Électricité (Détails) | Mono-horaire |
Citerne à mazout (détails) | externe , moins de 3000 litres |
Détails | dans la rue |
Châssis (type) | bois |
---|---|
Vitrage (type) | double vitrage |
Type d'évier | 1 |
Évier | Oui |
Type d'environnement | zone d'habitation |
---|---|
Orientation de la terrasse | sud est |
Orientation du jardin | sud est |
Surface de terrasse 1 | 50 m² |
---|
Type de revêtement de sol | carrelages |
---|
Capacité de la citerne à mazout (capacite) | 2500 |
---|---|
Certificat d'électricité (oui/non) | oui, non conforme |
Type de grenier | possibilité d'équiper |
---|---|
Coin à déjeuner | Oui |
Grenier | Oui |
Revenu cadastral (€) (montant) | 1688 € |
---|
Magasins | Oui |
---|---|
Ecoles | Oui |
Transports en commun | Oui |
Centre-ville | Oui |
Centre sportif | Oui |
Autoroute | Oui |
Gare | Oui |
Label PEB (classe) | F |
---|---|
PEB E-SPEC (kwh/m²/an) | 494 |
PEB code unique | 20231102007773 |