 
                        
                    ! OPTION ! Situation stratégique pour cette maison située à proximité du centre de Wavre. Elle offre sur 182m² habitable, de beaux volumes en demi-niveaux, 4 chambres, plus espace profession libérale au rez, cuisine, sdb et sdd incluse dans la suite parentale du 2ème étage, une grande cour intime de 67m² avec coin barbecue couvert. Un grand garage à porte sectionnelle et une cave voûtée. Technique: excellente isolation des murs extérieurs, toiture récente, panneaux photovoltaïques, PEB en classe B, ventilation double flux, électricité conforme. Travaux de rafraîchissements intérieurs et de mise au goût personnel à prévoir. Elle n'attend que vos valises et votre inspiration...! FAIRE OFFRE A PARTIR DE 255.000€, sous réserve d'acceptation par le propriétaire... https://www.ccv-immobilier.be/fr/bien/a-vendre/maison/1390-grez-doiceau/4288796
| Référence | 4288796 | 
|---|---|
| Catégorie | Maison | 
| Nombre de chambres | 4 | 
| Nombre de salles de bain | 1 | 
| Garage | Oui | 
| Terrasse | Oui | 
| Parking | Oui | 
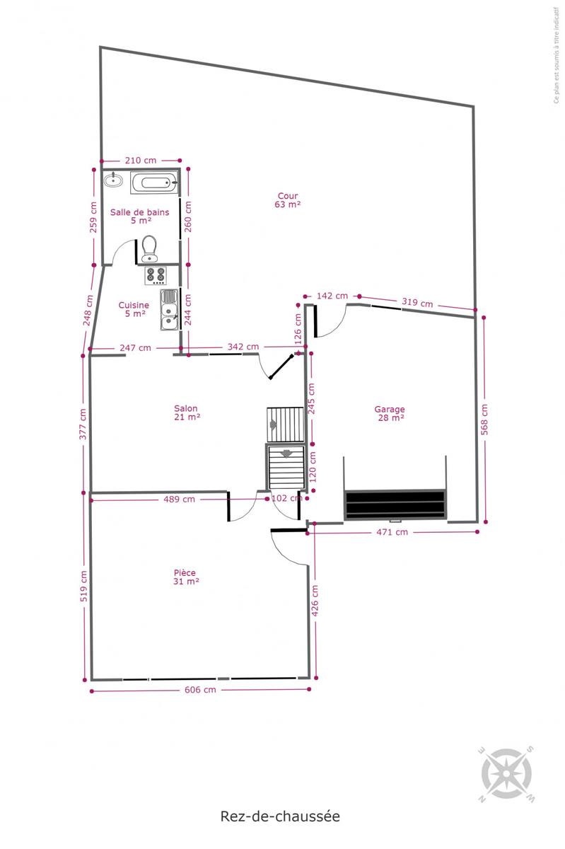
| Surface habitable | 182 m² | 
| Surface du terrain | 196 m² | 
| Disponibilité | à l'acte | 
| Nombre de garage | 1 | 
|---|---|
| Année de construction | 1900 | 
| Parking intérieur | Oui | 
| Parking extérieur | Oui | 
| Année de rénovation | 2012 | 
| Parking(s) extérieur (nombre) | 1 | 
| Parking(s) intérieur (nombre) | 1 | 
| Type de toit | en pente | 
| Type de construction | traditionnel | 
| Nombre d'étages (numéro) | 3 | 
|---|
| Cuisine | Oui | 
|---|---|
| Chauffage (Format/energie) | pellets | 
| Sdb (Type) | douche dans le bain | 
| Type de cuisine | semi-équipée | 
| Adoucisseur | Oui | 
| Nbre de toilette(s) (nombre) | 2 | 
|---|---|
| Chambre 1 (surface) | 36 m² | 
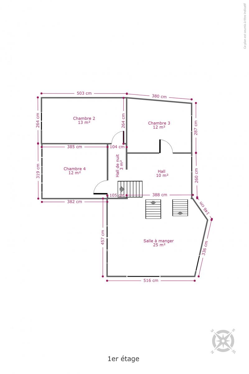
| Chambre 2 (surface) | 13 m² | 
| Chambre 3 (surface) | 12 m² | 
| Chambre 4 (surface) | 12 m² | 
| Surface brute | 231 m² | 
| Surface nette | 184 m² | 
| Garage (surface) | 28 m² | 
| Salle à manger (surface) | 21 m² | 
| Cuisine (surface) | 6 m² | 
| Caves (surface) | 20 m² | 
| Salle de bain 1 (surface) | 6 m² | 
| Possibilité profession libérale (surface) | 31 m² | 
| Sdd (surface) | 6 m² | 
| Hall de nuit (surface) | 13 m² | 
| Profession libérale poss. | Oui | 
|---|
| Transports en commun (distance (m)) | 50 | 
|---|---|
| Transports en commun | Oui | 
| Autoroute | Oui | 
| Autoroute (distance (m)) | 5000 | 
| Gare | Oui | 
| Gare (distance (m)) | 600 | 
| Égouts | Oui | 
|---|---|
| Télévision par cable | Oui | 
| Câbles téléphoniques | Oui | 
| Eau | Oui | 
| Électricité (Détails) | conforme | 
| Châssis (Ouvertures) | bois | 
|---|---|
| Isolation | Oui | 
| Type d'électricité | 220 V | 
| Panneaux solaires | Oui | 
| Type de panneaux solaires | photovoltaïque | 
| Panneaux solaires (détails) | 23 panneaux photovoltaïques | 
| Vitrage (type) | double vitrage | 
| Vitrage (détails) | PVC | 
| Isolation (type) | extérieure | 
| Évier | Oui | 
| Type d'évier | 2 | 
| Type d'environnement | zone d'habitation | 
|---|
| Surface de terrasse 1 | 67 m² | 
|---|
| Type de revêtement de sol | carrelages | 
|---|---|
| État de la toiture (appréciation) | 4 | 
| État des châssis (-) | 4 | 
| État des sanitaires (appréciation) | 3 | 
| État du chauffage (appréciation) | 4 | 
| État de l'électricité (détails) | conforme | 
| État de l'électricité (appréciation) | 5 | 
| État de la cuisine (appréciation) | 3 | 
| État des sols (appréciation) | 3 | 
| Cave | Oui | 
|---|
| Jardin (détails) | pas de jardin | 
|---|---|
| Cour | Oui | 
| Dimensions de la cour | 67 | 
| Abri de jardin | Oui | 
| Label PEB (Classe) | B | 
|---|---|
| PEB E-SPEC (kwh/m²/an) (Consommation énergétique) | 132 | 
| E total (Kwh/an) | 30672 | 
| PEB code unique (-) | 20200225003552 |