
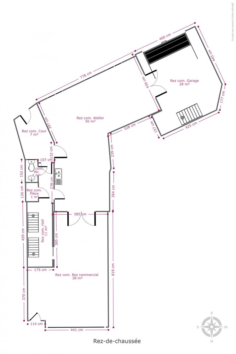
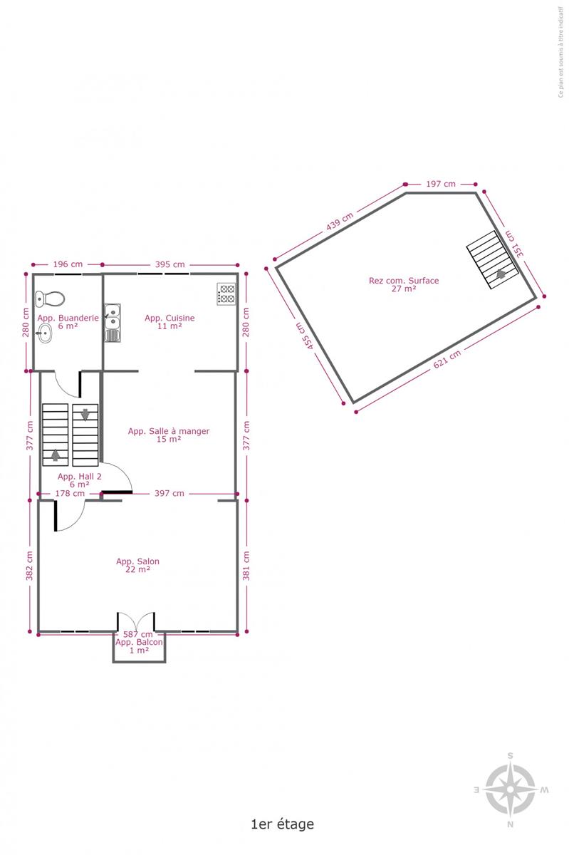
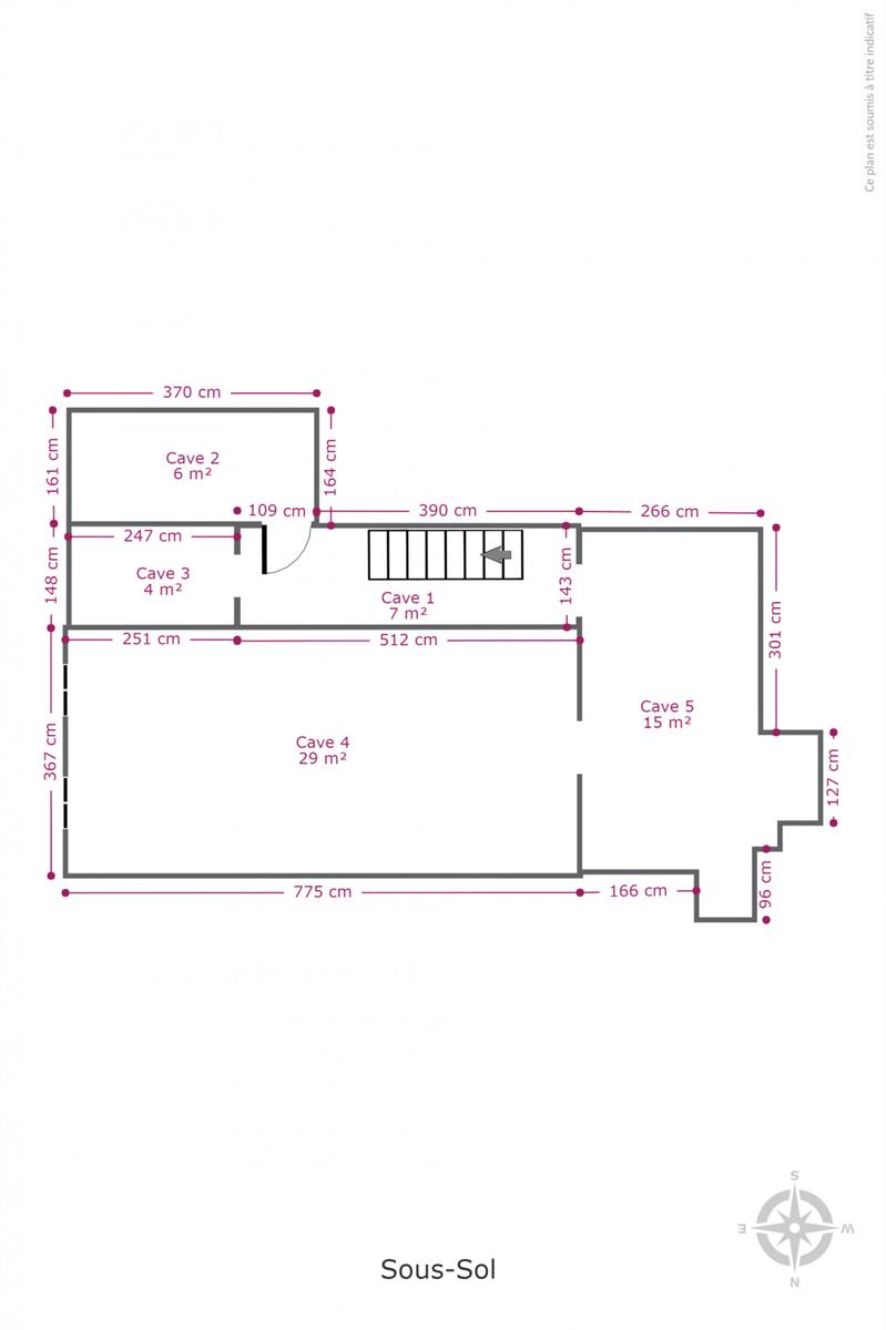
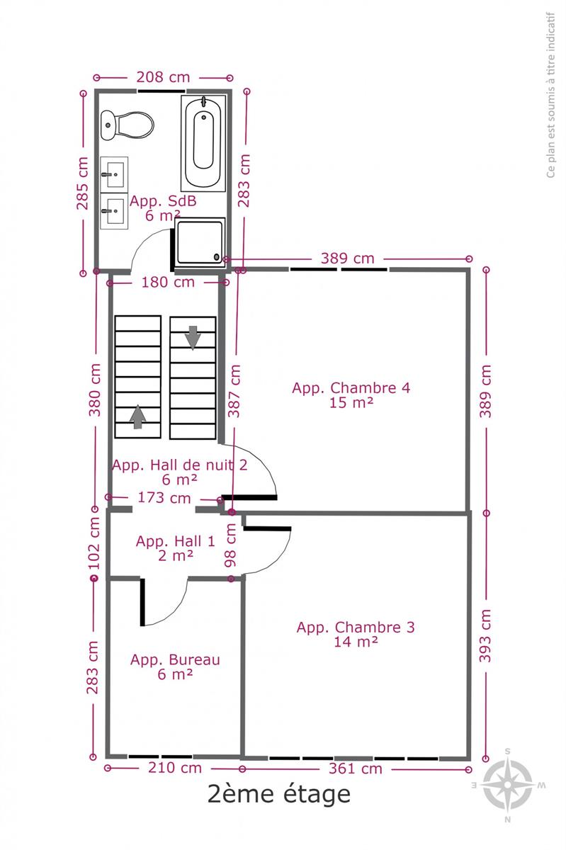
OPTION ! Rare opportunité en plein cœur de Nivelles, cette maison de commerce idéalement située totalise près de 370m² utiles répartis entre rez commercial - actuellement boulangerie et atelier de +- 90m² !! - et maison d'habitation/triplex 4 chambres de +- 150m² hab. Rénové en partie en 2001 (PEB C !), cet immeuble présente un potentiel énorme pour y développer vos projets professionnels et/ou familiaux. La partie rez commercial se compose d'un espace "comptoir" de 38m², d'un large atelier de 50m² (avec accès au garage). L'espace habitation se compose, au 1e étage: d'un séjour salon + sàm lumineux, d'une cuisine récente ouverte et d'une buanderie en demi-niveau. Au 2e étage se trouvent 2 grandes chambres (15 et 14m²), 1 bureau et 1 sdb. Au 3e étage, vous trouverez 2 autres grandes chambres de 19 et 13m². L'immeuble est complété d'un garage de 28m² (avec grenier de rangement) accessible également par l'intérieur de l'atelier - avantage non négligeable avec une telle situation! - et de + de 60m² de caves. Pas de jardin, cour de 9m² à l'arrière, pratique pour livraisons par ex. Possibilité de scinder rez commercial et logement car entrées séparées. Faire offre à partir de 300.000 euros, sous réserve d'acceptation par le propriétaire! Ne tardez pas, contactez Laurence 0471/43.48.59 pour organiser une visite.
Rue de Namur 70 - 1400 Nivelles
Référence | 4621535 |
---|---|
Catégorie | Immeuble mixte |
Meublé | Non |
Nombre de chambres | 4 |
Nombre de salles de bain | 1 |
Garage | Oui |
Terrasse | Non |
Parking | Oui |
Surface habitable | 277,79 m² |
Surface du terrain | 165 m² |
Disponibilité | à l'acte |
Année de construction | 1890 |
---|---|
Nombre de garage | 1 |
Parking intérieur | Oui |
Parking extérieur | Non |
Année de rénovation | 2001 |
Parking(s) intérieur (nombre) | 1 |
Type de construction | traditionnel |
Nombre d'étages (numéro) | 4 |
---|
Cuisine | Oui |
---|---|
Chauffage (Format/energie) | gaz |
Type de cuisine | équipée |
Sdb (Type) | douche et bain |
Buanderie | Oui |
---|---|
Bureau | Oui |
Cave | Oui |
Nbre de toilette(s) (nombre) | 3 |
---|---|
Chambre 1 (surface) | 19.03 m² |
Chambre 2 (surface) | 13.2 m² |
Chambre 3 (surface) | 14.25 m² |
Chambre 4 (surface) | 15.3 m² |
Surface brute | 366.42 m² |
Surface nette | 277.79 m² |
Garage (surface) | 27.8 m² |
Salle à manger (surface) | 14.7 m² |
Cuisine (surface) | 11.13 m² |
Buanderie (surface) | 5.51 m² |
Salle de bain 1 (surface) | 5.9 m² |
Caves (surface) | 7 m² |
Bureau (surface) | 5.92 m² |
Atelier (surface) | 2.5 m² |
Hall de nuit (surface) | 2.12 m² |
Profession libérale poss. | Oui |
---|
Atelier | Oui |
---|---|
Cour | Oui |
Dimensions de la cour | 7 |
Atelier (surface) | 50.28 m² |
Magasins (distance (m)) | 3 |
---|---|
Transports en commun (distance (m)) | 50 |
Magasins | Oui |
Transports en commun | Oui |
Centre-ville | Oui |
Autoroute | Oui |
Autoroute (distance (m)) | 4300 |
Gare | Oui |
Gare (distance (m)) | 600 |
Égouts | Oui |
---|---|
Télévision par cable | Oui |
Gaz | Oui |
Câbles téléphoniques | Oui |
Eau | Oui |
Électricité (Détails) | Bi-horaire |
Châssis (Ouvertures) | pvc |
---|---|
Vitrage (type) | double vitrage |
Évier | Oui |
Type d'évier | 2 |
Type d'environnement | centre ville |
---|
Type de revêtement de sol | vinyl |
---|
Revenu cadastral (€) (montant) | 2689 € |
---|
Label PEB (Classe) | C |
---|---|
PEB E-SPEC (kwh/m²/an) (Consommation énergétique) | 229 |
E total (Kwh/an) | 41016 |
PEB code unique (-) | 20211108013718 |