
OPTION? COMPROMIS EN COURS... Dans le joli village de Corbais, rue Warichet, 25, à proximité des commerces, des grands axes (N25 et E411), de LLN (bus direct), des écoles, dans une rue calme, avec un joli jardin et une vue totalement dégagée à l'arrière, venez découvrir cette maison 3 façades à rénover: châssis, électricité, cuisine, sdb, chauffage, rafraîchissement général... Maison saine, avec cave et garage, elle offre actuellement 110m² habitables, avec possibilité de réaliser une extension (moyennant permis). Nombreuses places de parking privatives devant la maison. 2 séances de visites libres sont organisées: le vendredi 22 mai de 12h à 15h et le samedi 23 mai de 9h30 à 12h. Les règles sanitaires actuelles seront de rigueur: ports du masque et de gants obligatoires, distance de sécurité de 1m50 et maximum 2 visites simultanément... Faire offre à partir de 199.000€, sous réserve d'acceptation par le propriétaire. A bientôt! https://www.ccv-immobilier.be/fr/bien/a-vendre/maison/1435-corbais/4002087
Rue Warichet 25 - 1435 Corbais
Référence | 4002087 |
---|---|
Catégorie | Maison |
Meublé | Non |
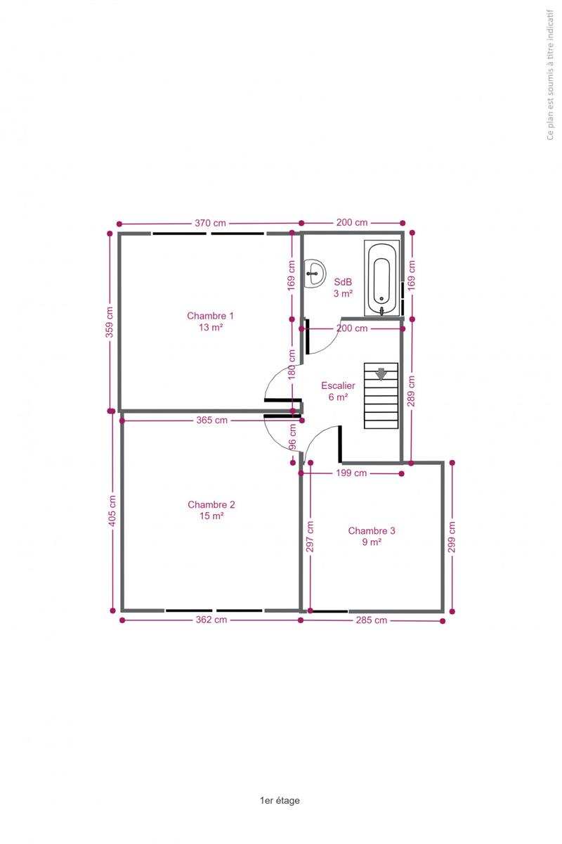
Nombre de chambres | 3 |
Nombre de salles de bain | 1 |
Jardin | Oui |
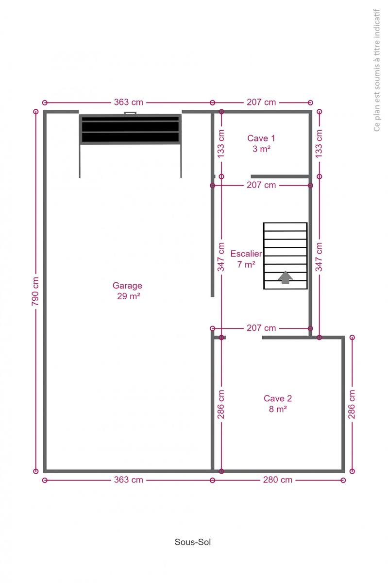
Garage | Oui |
Terrasse | Oui |
Parking | Non |
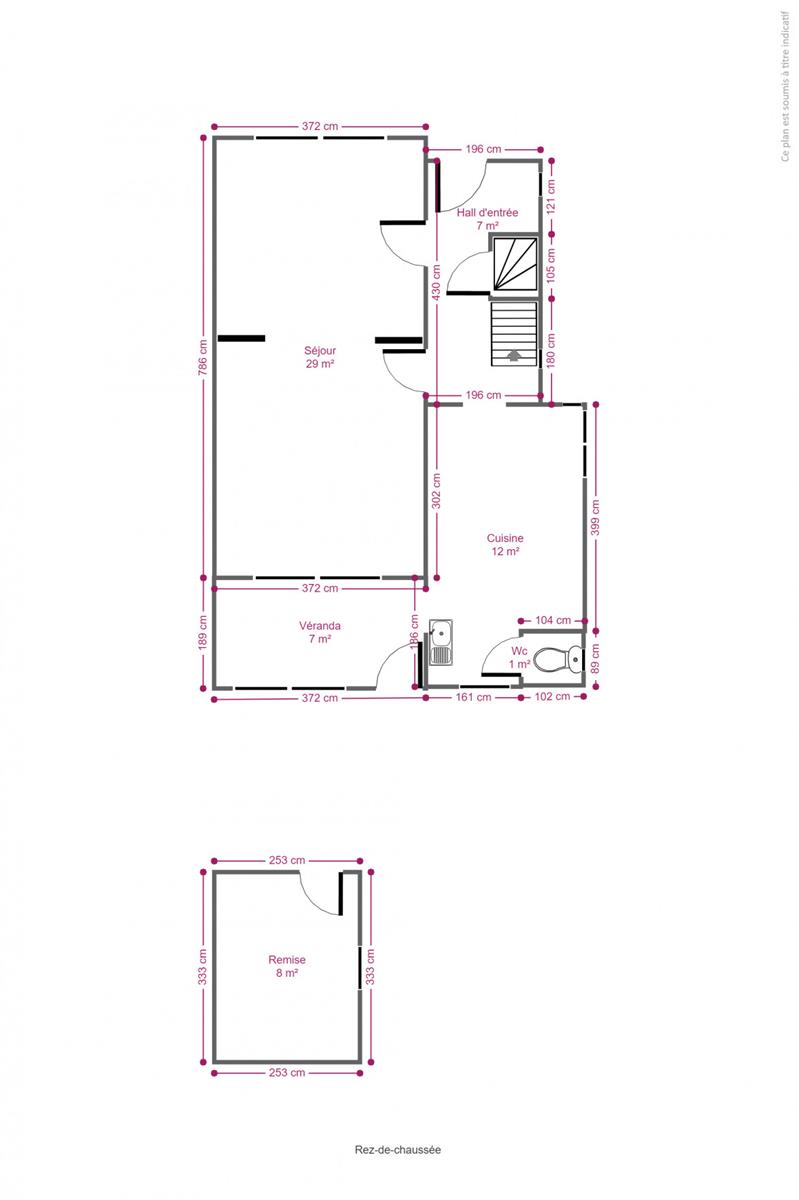
Surface habitable | 103 m² |
Surface du terrain | 657 m² |
Disponibilité | à l'acte |
Nombre d'étages | 1 |
---|
Nombre de garage | 1 |
---|---|
Parking extérieur | Oui |
Garage (détails) | 1, ouverture manuelle, béton, 1,9m, Point... |
Surface bâtie (surf. bât. princ.) | 66 |
---|---|
Nbre de toilette(s) (nombre) | 1 |
Chambre 1 (surface) | 13 m² |
Chambre 2 (surface) | 14 m² |
Chambre 3 (surface) | 8 m² |
Surface nette | 110 m² |
Largeur de façade | 8 |
Garage (surface) | 28 m² |
Nbre de terrasse(s) (nombre) | 1 |
Salle de séjour (surface) | 29 m² |
Orientation de la terrasse 2 | sud-est |
Cuisine (surface) | 12 m² |
Salle de bain 1 (surface) | 3 m² |
Caves (surface) | 10 m² |
Hall d'entrée (surface) | 7 m² |
Orientation de la terrasse 1 | sud-est |
Cuisine | Oui |
---|---|
Chauffage (type) | mazout (chauf. centr.) |
Type de cuisine | non-équipée |
Cuisine (détails) | 2,5m, 2, non-équipée, simple, inox, châssis... |
Véranda | Oui |
---|
Magasins (distance (m)) | 500 |
---|---|
Écoles (distance (m)) | 3500 |
Transports en commun (distance (m)) | 80 |
Transports en commun | Oui |
Autoroute | Oui |
Autoroute (distance (m)) | 2000 |
Gare | Oui |
Gare (distance (m)) | 2900 |
Section | B |
---|---|
Numéro (n°) | 461/V |
Surface (ha/a/ca) (surf. (ha/a/ca)) | 675 ca |
Revenu cadastral (€) (montant) | 691 € |
Égouts | Oui |
---|---|
Télévision par cable | Oui |
Châssis (type) | bois |
---|---|
Vitrage (type) | simple vitrage |
Évier | Oui |
Type d'environnement | zone d'habitation |
---|---|
Orientation de la terrasse | sud est |
Orientation du jardin | sud est |
Attestation du sol | Oui |
---|
Surface de terrasse 1 | 48 m² |
---|
Label PEB (classe) | G |
---|---|
PEB E-SPEC (kwh/m²/an) | 644 |
E total (Kwh/an) | 75310 |
PEB code unique | 20200129005059 |