Maison - vendu - 1435 Hévillers -

Maison - à vendre - 1435 Hévillers
3 1 178 m² 1 1 PEB : G

Description

STOP VISITES? COMPROMIS EN COURS!... FOAP de 210.000€, sous réserve d'acceptation du propriétaire! RC net de 629€, possibilité de REDUCTION DES DROITS D'ENREGISTREMENT! Venez découvrir cette très belle maison de village aux volumes étonnants! 60m² par niveau pour un total de 180m² habitables, grenier aménageable (60m²) en suite parentale ou 2 chambres et sdd, grand garage de 24m², parking privatif, terrasse et petit jardin. Gros potentiel pour famille nombreuse ou recomposée, environnement villageois, calme et pratique: N4/N25 et E411 proches, gares (Blanmont et MSG) à 1500m, bus à 100m, commerces et écoles accessibles à pieds. Travaux à prévoir: électricité, chaudière, cuisine et sdb, plus un rafraîchissement général. Charme au rendez-vous avec anciens carrelages, plancher massif à l'étage, 2 cheminées fonctionnelles. Possibilité d'acquérir une parcelle de terrain à bâtir de 207m² en plus au prix de 50.000€. A bientôt pour une visite? https://www.ccv-immobilier.be/fr/bien/a-vendre/maison/1435-hevillers/4168667

Adresse

Rue des Tilleuls 14 - 1435 Hévillers

Général

Référence 4168667
Catégorie Maison
Meublé Non
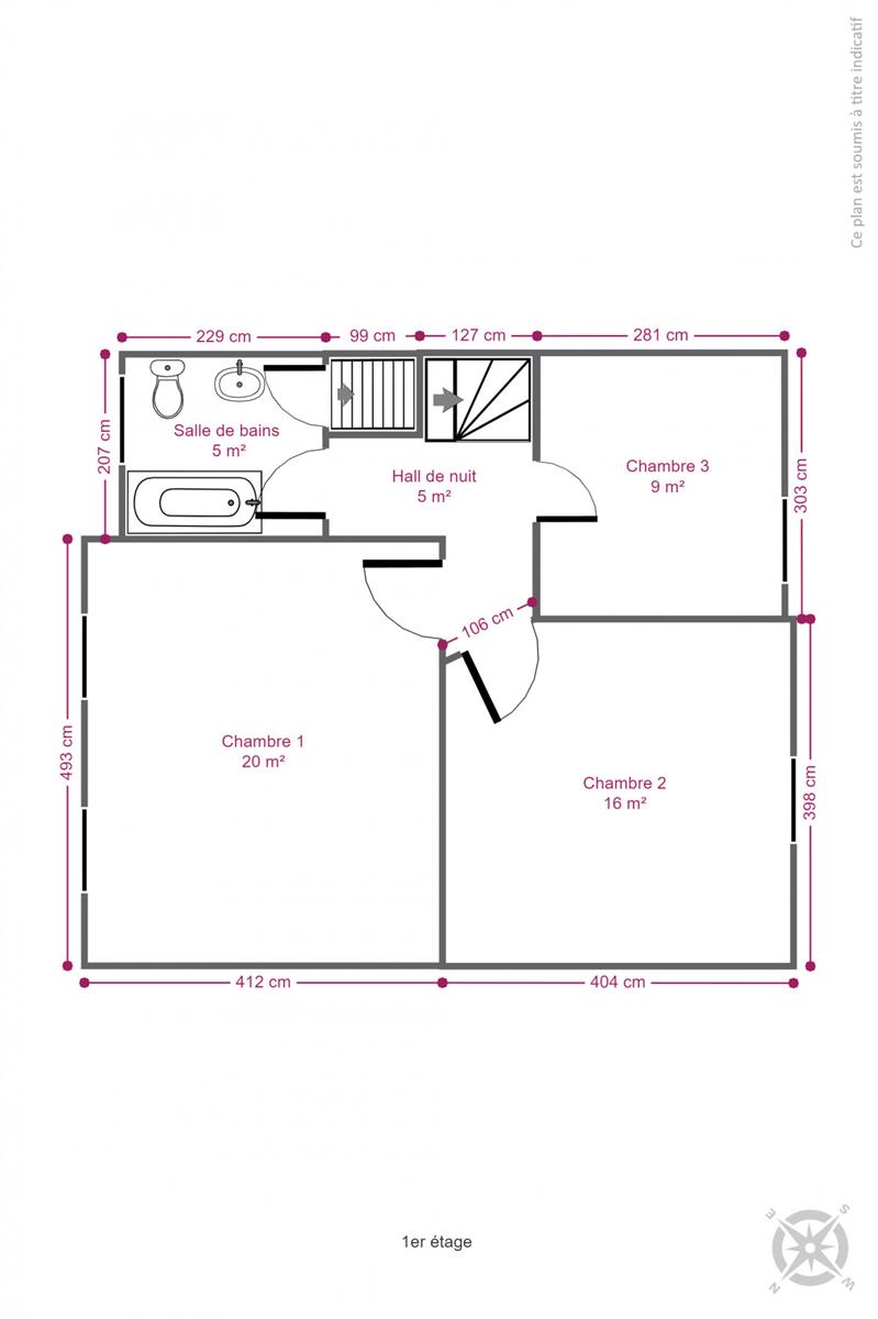
Nombre de chambres 3
Nombre de salles de bain 1
Jardin Oui
Garage Oui
Terrasse Oui
Parking Oui
Surface habitable 178 m²
Surface du terrain 202 m²
Disponibilité à l'acte

Bâtiment

Année de construction 1920
Nombre de garage 1
Parking intérieur Oui
Parking extérieur Oui
Parking(s) extérieur (nombre) 1
Type de toit en pente
Garage (détails) 1, pvc, châssis sans ouverture métallique,...
Type de construction traditionnel

Nom, catégorie & situation

Nombre d'étages (numéro) 3

En chiffres

Surface bâtie (-) 97
Nbre de toilette(s) (nombre) 2
Chambre 1 (surface) 20 m²
Chambre 2 (surface) 16 m²
Chambre 3 (surface) 9 m²
Surface brute 220 m²
Surface nette 178 m²
Largeur de façade 10
Garage (surface) 24 m²
Nbre de terrasse(s) (nombre) 1
Salle de séjour (surface) 19 m²
Salle à manger (surface) 16 m²
Cuisine (surface) 9 m²
Salle de bain 1 (surface) 5 m²
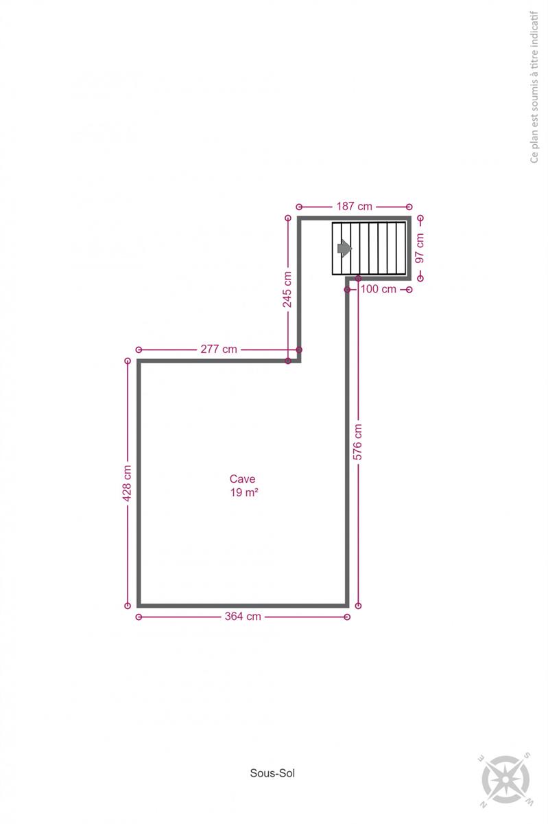
Caves (surface) 18 m²
Grenier (surface) 61 m²
Hall d'entrée (surface) 10 m²
Orientation de la terrasse 1 (-) ouest
Hall de nuit (surface) 5 m²

Equipement de base

Cuisine Oui
Chauffage (Format/energie) mazout (chauf. centr.)
Marque de chauffage marque acv
Cuisine (détails) 2,8m, 2, simple, avec égouttoir, inox, bois...

Divers

Buanderie Oui
Véranda Oui
Type de grenier possibilité d'équiper
Grenier Oui
Cave Oui
Grenier (détails) aménageable, châssis sans ouverture...

Sécurité

Volets Oui

À proximité

Magasins (distance (m)) 1800
Écoles (distance (m)) 1800
Transports en commun (distance (m)) 100
Transports en commun Oui
Autoroute Oui
Autoroute (distance (m)) 4000
Gare Oui
Gare (distance (m)) 1800
Transports en commun - détails bus

Equipement extérieur

Annexe Oui
Surface (m²) de annexe 10 m²
Jardin (détails) Aménagé pelouse, déclivité plat

Raccordements

Égouts Oui
Citerne à mazout Oui
Télévision par cable Oui
Gaz Oui
Citerne à mazout (détails) Apparente, capacité 2500 L
Détails dans la rue

Équipements techniques

Châssis (Ouvertures) bois ou pvc
Évier Oui

Spécificités terrain

Type d'environnement calme
Orientation de la terrasse (-) ouest
Orientation du jardin (-) sud ouest
Environnement détail 2 (détails) Centre d'Hévillers

Caractéristiques Principales

Surface de terrasse 1 18 m²

Type de matériau & évaluation

Type de revêtement de sol plancher
État de la toiture (appréciation) 4
État des châssis (-) 2
État des sanitaires (appréciation) 1
État de l'électricité (appréciation) 1
État du chauffage (appréciation) 1
État de la cuisine (appréciation) 1
État des sols (appréciation) 4

Cadastre

Revenu cadastral (€) (montant) 629 €

Energie

Label PEB (Classe) G
PEB E-SPEC (kwh/m²/an) (Consommation énergétique) 630
E total (Kwh/an) 87598
PEB code unique (-) 20200311013753
Votre agent
Didier Piraux
E-mail Tel.
Prendre contact pour le bien : 4168667

* Champs obligatoires

Préférences pour les cookies

La protection de vos données personnelles est importante pour nous. C’est pourquoi nous détaillons ci-dessous les différents services et fonctionnalités du site qui utilisent des cookies et nous vous laissons décider des cookies que vous souhaitez autoriser ou refuser.

Veuillez cependant noter que si vous bloquez certains types de cookies, cela pourrait impacter votre expérience de navigation sur notre site ainsi que les fonctionnalités disponibles.

Nous utilisons des cookies fonctionnels obligatoires pour assurer le bon fonctionnement du site. Ils sont, par exemple, nécessaires pour retrouver le résultat d’une recherche ou enregistrer le choix de la langue.

Certaines fonctionnalités, comme l’affichage de vidéos ou de cartes géographiques, sont assurées via des composants externes développés par des partenaires comme YouTube ou Google. Certains composants utilisent des cookies qui sont susceptibles de permettre à ces tiers de suivre le comportement des internautes afin, par exemple, de réaliser du ciblage publicitaire. L’activation de ces fonctionnalités et des cookies associés est donc soumis à votre consentement.