
Maison 4 façades entièrement rénovée à 2' des facilités (transports, commerces, N25, écoles, etc), qui offre un confort technique optimal et de beaux espaces : hall d'entrée avec WC visiteurs, grand salon lumineux avec poêle à pellets, salle à manger avec accès terrasse et jardin, nouvelle cuisine équipée de 16m² ! A l'étage: 2 chambres non mansardées (14 et 9m²), 1 salle de bains avec baignoire, meuble double vasque et douche à l'italienne, WC séparé. Au 2e étage: magnifique chambre de 22m² avec placards encastrés, espace grenier de rangement. A l'extérieur, deux terrasses neuves et intimistes donnent sur un agréable jardin de 7a. Excellent niveau technique: toiture rénovée + isolation, chaudière récente au gaz, nouveaux châssis, électricité conforme..! Caves, garage et parking. Vous souhaitez la découvrir? Contactez Didier au 0476/98.62.88 !
Rue des Vignes 65 - 1435 Mont-saint-guibert
Référence | 4326109 |
---|---|
Catégorie | Maison |
Nombre de chambres | 3 |
Nombre de salles de bain | 1 |
Jardin | Oui |
Surface du jardin | 632 m² |
Garage | Oui |
Terrasse | Oui |
Parking | Oui |
Surface habitable | 135 m² |
Surface du terrain | 700 m² |
Disponibilité | à l'acte |
Nombre d'étages | 4 |
---|
Nombre de garage | 1 |
---|---|
Parking intérieur | Oui |
Parking extérieur | Oui |
Parking(s) intérieur (nombre) | 1 |
Parking(s) extérieur (nombre) | 1 |
Type de construction | traditionnel |
Largeur front de rue | 9.6 |
---|---|
Surface bâtie (surf. bât. princ.) | 68 |
Nbre de toilette(s) (nombre) | 2 |
Chambre 1 (surface) | 22 m² |
Chambre 2 (surface) | 14 m² |
Chambre 3 (surface) | 9 m² |
Surface brute | 167 m² |
Surface nette | 135 m² |
Profondeur terrain | 72 |
Largeur de façade | 5.5 |
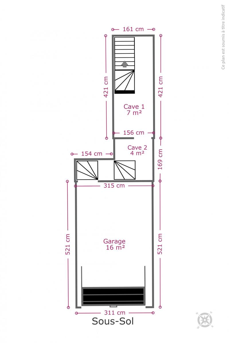
Garage (surface) | 16 m² |
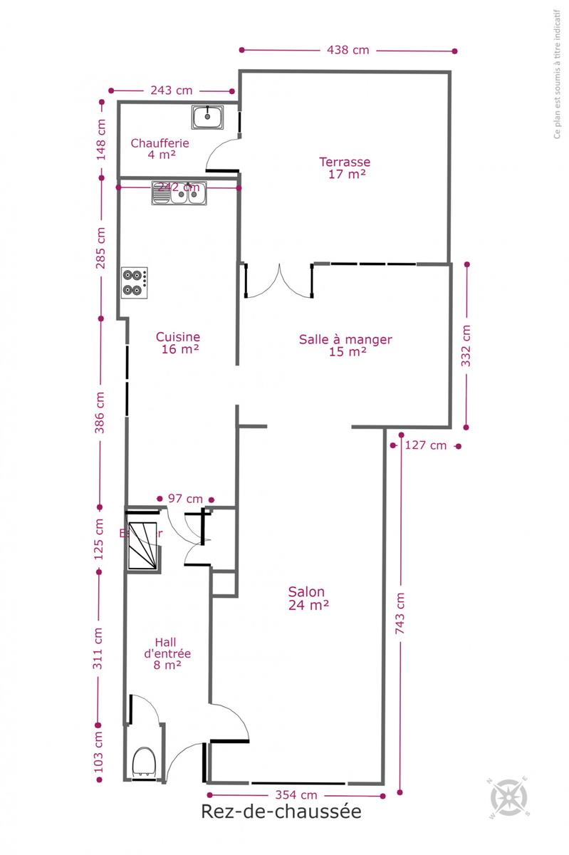
Salle à manger (surface) | 15 m² |
Cuisine (surface) | 16 m² |
Salle de bain 1 (surface) | 8 m² |
Grenier (surface) | 5 m² |
Caves (surface) | 6 m² |
Hall d'entrée (surface) | 8 m² |
Orientation de la terrasse 1 | nord-est |
Hall de nuit (surface) | 6 m² |
Nbre de pièce(s) (nombre) | 17 |
Cuisine | Oui |
---|---|
Double vitrage | Oui |
Chauffage (type) | gaz (chau. centr.) |
Type de cuisine | semi-équipée |
Sdb (type) | douche et bain |
Adoucisseur | Oui |
Volets | Oui |
---|---|
Volets (type) | type manuel |
Transports en commun (distance (m)) | 250 |
---|---|
Transports en commun | Oui |
Autoroute | Oui |
Autoroute (distance (m)) | 1500 |
Gare | Oui |
Gare (distance (m)) | 700 |
Égouts | Oui |
---|---|
Télévision par cable | Oui |
Gaz | Oui |
Câbles téléphoniques | Oui |
Eau | Oui |
Centrale tél. | Oui |
---|---|
Châssis (type) | pvc |
Vitrage (type) | double vitrage |
Évier | Oui |
Type d'évier | 2 |
Type d'environnement | calme |
---|---|
Exposition de la façade avant | sud-ouest |
Orientation de la terrasse | nord est |
Orientation du jardin | nord est |
Environnement détail 2 (détails) | proximité gare |
Surface de terrasse 1 | 17 m² |
---|
Type de revêtement de sol | carrelages |
---|---|
État de la toiture (appréciation) | 5 |
État des châssis (appréciation) | 5 |
État des sanitaires (appréciation) | 5 |
État de l'électricité (appréciation) | 5 |
État du chauffage (appréciation) | 5 |
État de la cuisine (appréciation) | 5 |
État des sols (appréciation) | 5 |
Type de grenier | seulement rangement |
---|---|
Grenier | Oui |
Cave | Oui |
Jardin (détails) | nord-est, déclivité en pente, Aménagé pelouse, fermé haies clôtures palissades |
---|---|
Abri de jardin | Oui |
Label PEB (classe) | C |
---|---|
PEB E-SPEC (kwh/m²/an) | 185 |
E total (Kwh/an) | 41549 |
PEB code unique | 20210420011487 |