
OPTION OPTION OPTION Venez découvrir cette agréable villa de plain pied prête à vivre à Mont-Saint -Guibert! Située au calme de la rue de l'Ornoy, elle vous propose sur 200m2 utiles de très belles prestations: un joli hall d'entrée, un bel espace de vie très lumineux avec poêle, une cuisine super- équipée, 3 belles chambres, un bureau, une salle de douche,2 WC séparés et une véranda avec accès à la terrasse donnant vue sur le jardin. Le tout est agrémenté d'un grenier de rangement, d'une cave, d'un garage et d'une buanderie. Une cour de 88m² s'ouvre sur un magnifique jardin de 10 ares arboré et fleuri orienté sud-est. Allée privative le long de l'habitation donnant accès à plusieurs emplacements de parking. La situation est particulièrement recherchée: proximité de la N25/E411, proche de la gare de Mont-Saint-Guibert, nombreux commerces et écoles prisées aux alentours immédiats. Très belle opportunité à voir rapidement! Une visite? Contactez Marie au 0474/88 59 30 sans tardez! www.ccv-immobilier.be
Rue de l'Ornoy 22 - 1435 Mont-saint-guibert
Référence | 4766527 |
---|---|
Catégorie | Maison |
Nombre de chambres | 3 |
Nombre de salles de bain | 1 |
Jardin | Oui |
Surface du jardin | 884 m² |
Garage | Oui |
Terrasse | Oui |
Parking | Oui |
Surface habitable | 114 m² |
Surface du terrain | 1004 m² |
Disponibilité | à l'acte |
Année de construction | 1975 |
---|---|
Nombre de garage | 1 |
Parking intérieur | Oui |
Parking extérieur | Oui |
Type de toit | en pente |
Garage (détails) | 1 |
Type de construction | traditionnel |
Nombre d'étages | 2 |
---|
Largeur front de rue | 16 |
---|---|
Surface bâtie (surf. bât. princ.) | 120 |
Nbre de toilette(s) (nombre) | 2 |
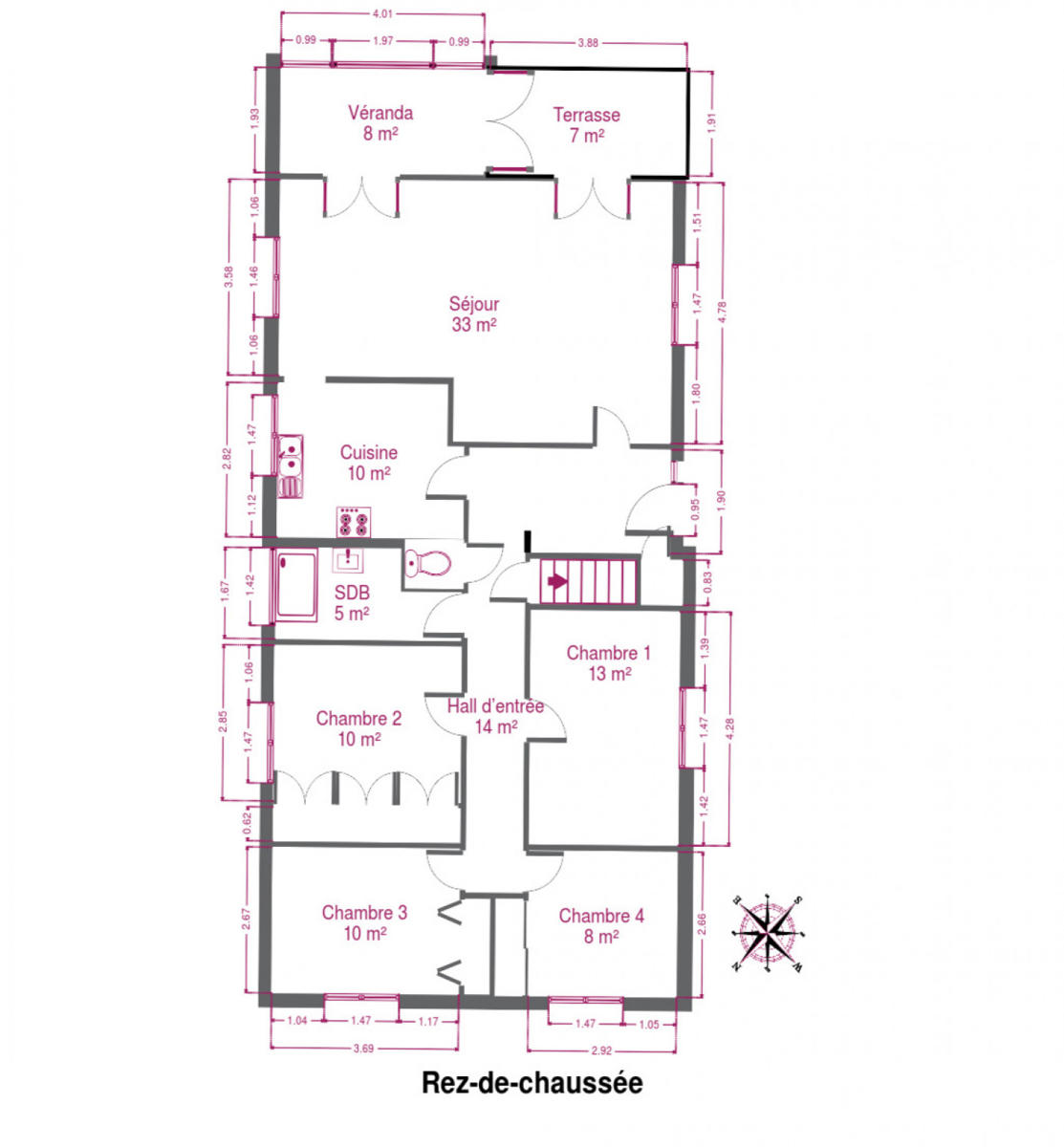
Chambre 1 (surface) | 12.56 m² |
Chambre 2 (surface) | 10.5 m² |
Chambre 3 (surface) | 9.83 m² |
Surface brute | 186 m² |
Surface nette | 114 m² |
Largeur de façade | 8 |
Profondeur terrain | 65 |
Garage (surface) | 45.58 m² |
Nbre de terrasse(s) (nombre) | 1 |
Salle de séjour (surface) | 32.84 m² |
Cuisine (surface) | 9.98 m² |
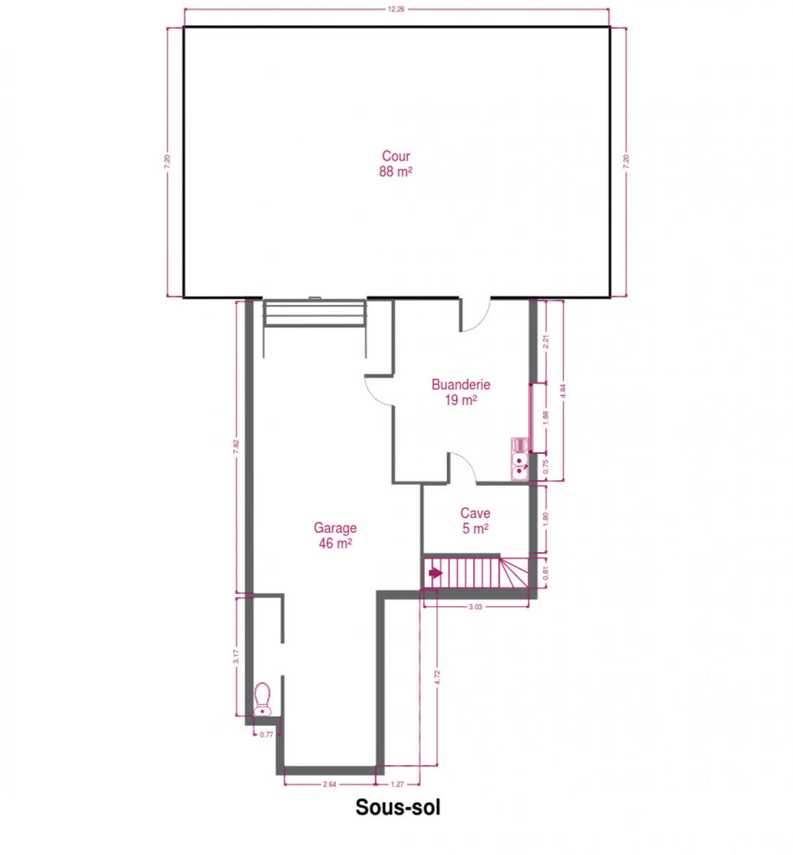
Buanderie (surface) | 18.65 m² |
Caves (surface) | 2.44 m² |
Grenier (surface) | 87.92 m² |
Salle de bain 1 (surface) | 5.17 m² |
Bureau (surface) | 7.77 m² |
Hall d'entrée (surface) | 14.47 m² |
Orientation de la terrasse 1 | sud-est |
Nbre de pièce(s) (nombre) | 15 |
Cuisine | Oui |
---|---|
Double vitrage | Oui |
Chauffage (type) | gaz (chau. centr.) |
Type de cuisine | super-équipée |
Sdb (type) | douche |
Buanderie | Oui |
---|---|
Véranda | Oui |
Type de grenier | seulement rangement |
Grenier | Oui |
Cave | Oui |
Magasins (distance (m)) | 500 |
---|---|
Écoles (distance (m)) | 1000 |
Transports en commun (distance (m)) | 400 |
Centre sportif (distance (m)) | 200 |
Centre-ville (distance (m)) | 400 |
Magasins | Oui |
Ecoles | Oui |
Transports en commun | Oui |
Centre sportif | Oui |
Centre-ville | Oui |
Autoroute | Oui |
Autoroute (distance (m)) | 1600 |
Gare | Oui |
Gare (distance (m)) | 800 |
Gare-détails | Mont-Saint-Guibert |
Égouts | Oui |
---|---|
Télévision par cable | Oui |
Gaz | Oui |
Câbles téléphoniques | Oui |
Eau | Oui |
Électricité (Détails) | Bi-horaire |
Centrale tél. | Oui |
---|---|
Châssis (type) | pvc |
Vitrage (type) | double vitrage |
Type d'évier | 1,5 |
Évier | Oui |
Type d'environnement | calme |
---|---|
Exposition de la façade avant | nord-ouest |
Orientation du jardin | sud est |
Surface de terrasse 1 | 7 m² |
---|
Type de revêtement de sol | carrelages |
---|
Jardin (détails) | sud-est, déclivité en palier, aménagé pelouse, Fermé clôtures haies, nord-ouest, déclivité plat, Fermé haies |
---|---|
Fosse septique | Oui |
Cour | Oui |
Dimensions de la cour | 88 |
Label PEB (classe) | G |
---|---|
PEB E-SPEC (kwh/m²/an) | 815 |
E total (Kwh/an) | 102364 |
PEB code unique | 20220531022532 |