Maison - vendu - 1435 Mont-saint-guibert -

Maison - à vendre - 1435 Mont-saint-guibert
3 1 155 m² 1 5 PEB : D

Description

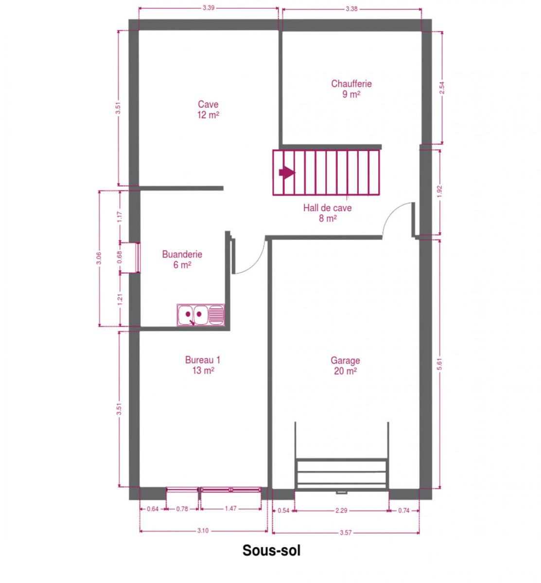
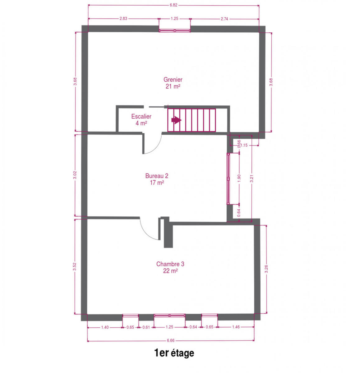
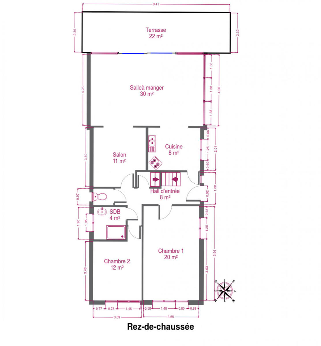
OPTION OPTION OPTION, COMPROMIS EN COURS...!!! Dans une petite rue calme de Mont-Saint-Guibert, à proximité de toutes les facilités, venez découvrir cette jolie villa 4 façades des années 60 et rénovée en partie entre 2014 et 2020. Elle offre sur 230m² (dont 155m² habitables et chauffés) sur 3 niveaux. Rez-de-chaussée: bureau avec fenêtre, garage, buanderie, chaufferie, cave de rangement et escalier vers le rez. Vous accédez à la porte d'entrée par un large escalier en pierre situé sur le côté de la maison: hall d'entrée, cuisine équipée fonctionnelle, bel espace de vie lumineux donnant sur la terrasse et le jardin par une large baie vitrée coulissante, plus un salon très cosy et intimiste. Une salle de douche et 2 belles chambres complètent ce niveau. A l'étage, une belle suite parentale offre, en 2 parties, une belle chambre et un bureau (ou possibilité dressing), plus un grenier pouvant accueillir une salle de bains (arrivée et évacuation d'eau prévues). Environnement très agréable et intime avec une vue sur la campagne environnante. Pratique: commerces, écoles, gare de MSG (ou de Blanmont), N25/E411 et LLN à proximité immédiate... VISITES: Contactez LAURENCE au 0471/43.48.59... https://www.ccv-immobilier.be/fr/bien/a-vendre/maison/1435-mont-saint-guibert/4784282

Adresse

Rue d'Alvau 23 - 1435 Mont-saint-guibert

Général

Référence 4784282
Catégorie Maison
Nombre de chambres 3
Nombre de salles de bain 1
Jardin Oui
Surface du jardin 362 m²
Garage Oui
Terrasse Oui
Parking Oui
Surface habitable 155 m²
Surface du terrain 458 m²
Disponibilité à convenir

Bâtiment

Année de construction 1962
Nombre de garage 1
Parking extérieur Oui
Année de rénovation 2014
Parking(s) extérieur (nombre) 5
Type de construction traditionnel

Nom, catégorie & situation

Nombre d'étages (numéro) 2

En chiffres

Largeur front de rue 34
Surface bâtie (-) 96
Nbre de toilette(s) (nombre) 1
Chambre 1 (surface) 20 m²
Chambre 2 (surface) 12 m²
Chambre 3 (surface) 22 m²
Surface brute 230 m²
Surface nette 155 m²
Largeur de façade 7
Profondeur terrain 19
Garage (surface) 20 m²
Nbre de terrasse(s) (nombre) 1
Salle à manger (surface) 30 m²
Cuisine (surface) 8 m²
Buanderie (surface) 6 m²
Caves (surface) 29 m²
Grenier (surface) 20 m²
Sdd (surface) 4 m²
Possibilité profession libérale (surface) 13 m²
Bureau (surface) 17 m²
Hall d'entrée (surface) 9 m²
Orientation de la terrasse 1 (-) sud-est
Nbre de pièce(s) (Nombre) 16

Equipement de base

Cuisine Oui
Double vitrage Oui
Chauffage (Format/energie) gaz (chau. centr.)
Type de cuisine équipée
Marque de chauffage Vaillant
Adoucisseur Oui

Divers

Buanderie Oui
Bureau Oui
Type de grenier possibilité d'équiper
Grenier Oui
Cave Oui
Grenier (détails) aménageable en sdb

À proximité

Magasins (distance (m)) 1000
Écoles (distance (m)) 1500
Transports en commun (distance (m)) 250
Transports en commun Oui
Autoroute Oui
Autoroute (distance (m)) 2100
Gare Oui
Gare (distance (m)) 800
Détails écoles Les Hayeffes

Cadastre

Section (-) B
Numéro (n°) 0380G2P0000
Surface (ha/a/ca) (surf. (ha/a/ca)) 458ca
Revenu cadastral (€) (montant) 1711 €

Raccordements

Égouts Oui
Télévision par cable Oui
Gaz Oui
Câbles téléphoniques Oui
Eau Oui
Électricité (Détails) Mono-horaire

Équipements techniques

Centrale tél. Oui
Châssis (Ouvertures) bois
Évier Oui
Type d'évier 2

Spécificités terrain

Type d'environnement calme
Exposition de la façade avant (-) nord-ouest
Orientation de la terrasse (-) sud est
Orientation du jardin (-) sud est

Caractéristiques Principales

Surface de terrasse 1 22 m²

Type de matériau & évaluation

Type de revêtement de sol carrelages
Isolation (type) toit isolé
État de la toiture (appréciation) 4
État des châssis (-) 4
État des sanitaires (appréciation) 4
État de l'électricité (appréciation) 5
État du chauffage (appréciation) 4
État de la cuisine (appréciation) 3
État des sols (appréciation) 3

Equipement extérieur

Jardin (détails) sud-est, déclivité plat, Aménagé pelouse, fermé haies murs clôtures

Energie

Label PEB (Classe) D
PEB E-SPEC (kwh/m²/an) (Consommation énergétique) 319
E total (Kwh/an) 62097
PEB code unique (-) 20220603010253
PEB valide jusqu'au (validité) 03/06/2032
Votre agent
Didier Piraux
E-mail Tel.
Prendre contact pour le bien : 4784282

* Champs obligatoires

Préférences pour les cookies

La protection de vos données personnelles est importante pour nous. C’est pourquoi nous détaillons ci-dessous les différents services et fonctionnalités du site qui utilisent des cookies et nous vous laissons décider des cookies que vous souhaitez autoriser ou refuser.

Veuillez cependant noter que si vous bloquez certains types de cookies, cela pourrait impacter votre expérience de navigation sur notre site ainsi que les fonctionnalités disponibles.

Nous utilisons des cookies fonctionnels obligatoires pour assurer le bon fonctionnement du site. Ils sont, par exemple, nécessaires pour retrouver le résultat d’une recherche ou enregistrer le choix de la langue.

Certaines fonctionnalités, comme l’affichage de vidéos ou de cartes géographiques, sont assurées via des composants externes développés par des partenaires comme YouTube ou Google. Certains composants utilisent des cookies qui sont susceptibles de permettre à ces tiers de suivre le comportement des internautes afin, par exemple, de réaliser du ciblage publicitaire. L’activation de ces fonctionnalités et des cookies associés est donc soumis à votre consentement.