Maison - vendu - 1457 Nil-saint-vincent-saint-martin -

Maison - à vendre - 1457 Nil-saint-vincent-saint-martin
4 2 220 m² 1 4 PEB : E

Description

Au cœur de Nil-Pierreux, située au calme d'un quartier très convivial, à 5' des facilités et axes routiers vers Bruxelles/Namur/LLN, venez découvrir cette bâtisse de 1890 au charme fou et aux multiples possibilités d'aménagement. Elle offre un cadre de vie exceptionnel grâce à son terrain de 17 ares partiellement entouré d'un mur d'enceinte, magnifiquement aménagé et parfaitement orienté sud-ouest, ainsi que sa terrasse pittoresque et très intimiste. Ses 220m² habitables se répartissent entre l'habitation principale (+- 155m² - 2 à 3 chambres - 1sdb) et sa dépendance semi-aménagée et à parachever (+- 65m² - poss. 1-2 chambres supplémentaires + sdb) avec entrée séparée permettant l'exercice d'une profession libérale ou la création d'un deuxième logement (moyennant autorisations). La propriété est complétée par un beau grenier de 33m², un garage 1 voiture + espaces de rangement, et un large parking avant. Travaux de modernisation à prévoir - important: la maison n'a pas été touchée par les récentes inondations. N'attendez pas pour découvrir ce bien au cachet unique! Appelez Laurence au 0471/43.48.59 pour une visite. https://www.ccv-immobilier.be/fr/bien/a-vendre/maison/1457-nil-saint-vincent-saint-martin/4437434

Adresse

Rue de la Tour 8 - 1457 Nil-saint-vincent-saint-martin

Général

Référence 4437434
Catégorie Maison
Meublé Non
Nombre de chambres 4
Nombre de salles de bain 2
Jardin Oui
Surface du jardin 1692 m²
Garage Oui
Terrasse Oui
Parking Oui
Surface habitable 220 m²
Surface du terrain 1692 m²
Disponibilité 01/08/2022

Bâtiment

Année de construction 1890
Nombre de garage 1
Parking intérieur Oui
Parking extérieur Oui
Parking(s) intérieur (nombre) 1
Parking(s) extérieur (nombre) 3
Type de construction traditionnel

Nom, catégorie & situation

Nombre d'étages (numéro) 3

En chiffres

Largeur front de rue 20.53
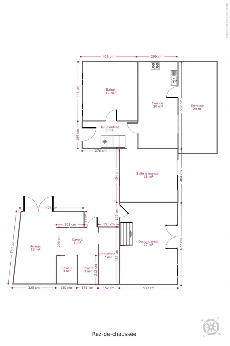
Surface bâtie (surf. bât. princ.) 130
Nbre de toilette(s) (nombre) 2
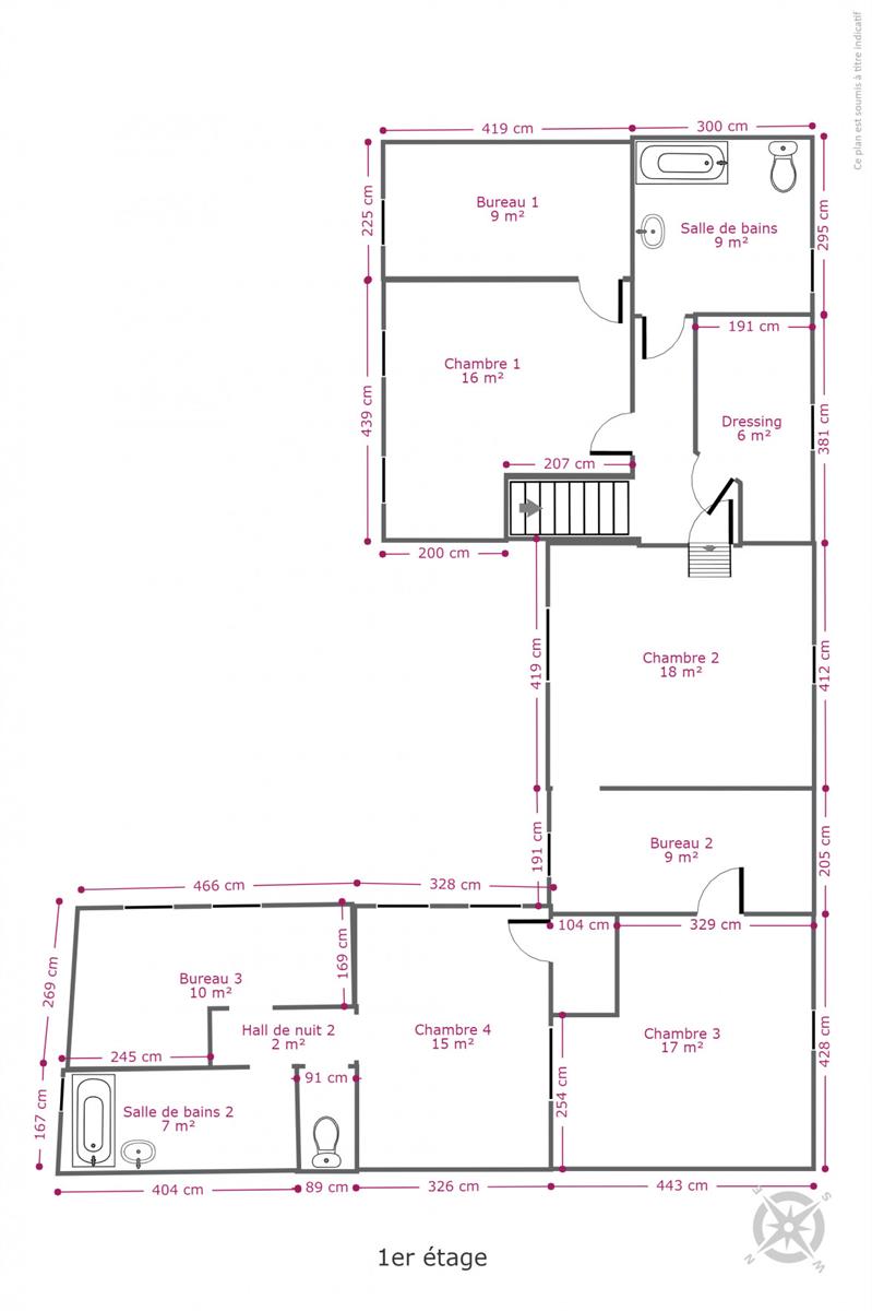
Chambre 1 (surface) 15.87 m²
Chambre 2 (surface) 18.49 m²
Chambre 3 (surface) 16.96 m²
Chambre 4 (surface) 14.5 m²
Surface brute 290 m²
Surface nette 219 m²
Largeur de façade 22
Profondeur terrain 80
Garage (surface) 18.5 m²
Nbre de terrasse(s) (nombre) 1
Salle à manger (surface) 17.86 m²
Cuisine (surface) 19.62 m²
Dressing (surface) 6.36 m²
Salle de bain 1 (surface) 8.91 m²
Caves (surface) 6 m²
Grenier (surface) 33.17 m²
Bureau (surface) 9.39 m²
Hall d'entrée (surface) 8.39 m²
Salle de bains 2 (surface) 6.67 m²
Hall de nuit (surface) 6.74 m²
Nbre de pièce(s) (Nombre) 23

Equipement de base

Cuisine Oui
Double vitrage Oui
Chauffage (Format/energie) mazout (chauf. centr.)
Type de cuisine semi-équipée
Sdb (Type) bain
Sdb 2 (type) bain

Domaine juridique

Profession libérale poss. Oui

Divers

Bureau Oui
Type de grenier possibilité d'équiper
Grenier Oui
Cave Oui

À proximité

Transports en commun (distance (m)) 350
Transports en commun Oui
Autoroute Oui
Autoroute (distance (m)) 3500
Gare Oui
Gare (distance (m)) 2600

Raccordements

Égouts Oui
Citerne à mazout Oui
Télévision par cable Oui
Câbles téléphoniques Oui
Eau Oui
Électricité (Détails) Bi-horaire
Citerne à mazout (détails) Apparente, capacité 1200 L

Équipements techniques

Centrale tél. Oui
Châssis (Ouvertures) bois
Évier Oui
Type d'évier 1,5

Spécificités terrain

Type d'environnement campagne
Orientation de la terrasse (-) sud ouest
Orientation du jardin (-) sud ouest

Caractéristiques Principales

Surface de terrasse 1 20 m²

Type de matériau & évaluation

Type de revêtement de sol carrelages

Certificats / Attestations

Capacité de la citerne à mazout 1200
Certificat d'électricité (oui/non) oui, non conforme

Cadastre

Revenu cadastral (€) (montant) 857 €

Equipement extérieur

Jardin (détails) sud-ouest, déclivité plat, Aménagé pelouse, fermé clôtures haies murs
Fosse septique Oui
Cour Oui
Dépendances Oui

Certificats énergétiques

Label PEB (Classe) E
PEB E-SPEC (kwh/m²/an) (Consommation énergétique) 365
E total (Kwh/an) 101078
PEB code unique (-) 20210906016711
Votre agent
Marie Verlinden
E-mail Tel.
Prendre contact pour le bien : 4437434

* Champs obligatoires

Préférences pour les cookies

La protection de vos données personnelles est importante pour nous. C’est pourquoi nous détaillons ci-dessous les différents services et fonctionnalités du site qui utilisent des cookies et nous vous laissons décider des cookies que vous souhaitez autoriser ou refuser.

Veuillez cependant noter que si vous bloquez certains types de cookies, cela pourrait impacter votre expérience de navigation sur notre site ainsi que les fonctionnalités disponibles.

Nous utilisons des cookies fonctionnels obligatoires pour assurer le bon fonctionnement du site. Ils sont, par exemple, nécessaires pour retrouver le résultat d’une recherche ou enregistrer le choix de la langue.

Certaines fonctionnalités, comme l’affichage de vidéos ou de cartes géographiques, sont assurées via des composants externes développés par des partenaires comme YouTube ou Google. Certains composants utilisent des cookies qui sont susceptibles de permettre à ces tiers de suivre le comportement des internautes afin, par exemple, de réaliser du ciblage publicitaire. L’activation de ces fonctionnalités et des cookies associés est donc soumis à votre consentement.