Maison - vendu - 1470 Bousval -

Maison - à vendre - 1470 Bousval
3 1 166 m² PEB : C

Description

OPTION OPTION OPTION !!! FAIRE OFFRE A PARTIR DE 335.000€, SOUS RESERVE D'ACCEPTATION PAR LES PROPRIETAIRES... VISITES: CONTACTEZ MARIE AU 0474/88.59.30 - Vous êtes à la recherche d'une maison qui allie cachet, luminosité, modernité et espaces? Venez découvrir cette charmante habitation 2 façades authentique et rénovée avec goût, située au cœur du village de Bousval et ses facilités (accès facile N25, bus, hall sportif, épiceries etc). Elle se compose comme suit: au rez, hall d'entrée avec un bel escalier en bois massif et WC visiteurs, séjour en 2 parties de 40m² - salon lumineux avec anciens carrelages et cheminée, spacieuse salle à manger avec feu ouvert - grande cuisine équipée avec espace dinatoire et vue exceptionnelle dégagée sur la très jolie campagne bousvalienne. À l'étage, deux grandes chambres chaleureuses sur plancher (20,5 et 18m²) et sans mansarde, dont une avec placards, une salle de douche confortable au goût du jour, un espace bureau/rangement dans le hall de nuit. Au 2e étage, vous trouverez un hall spacieux et une très grande chambre de 33m². La maison est installée sur un terrain aménagé de 450m² orienté sud-est avec terrasse de 55m² et vue verdoyante imprenable! Plusieurs caves saines et buanderie accessible depuis la terrasse viennent compléter le tout. Côté technique aux normes actuelles:  chauff. centr. mazout, panneaux photovoltaïques, châssis PVC, toiture isolée en excellent état. La maison n'attend plus que vos valises! Une visite vous plairait? Contactez Marie au 0474/88.59.30 https://www.ccv-immobilier.be/fr/bien/a-vendre/maison/1470-bousval/4395358

Adresse

Avenue des Combattants 46 - 1470 Bousval

Général

Référence 4395358
Catégorie Maison
Meublé Non
Nombre de chambres 3
Nombre de salles de bain 1
Jardin Oui
Garage Non
Terrasse Oui
Parking Non
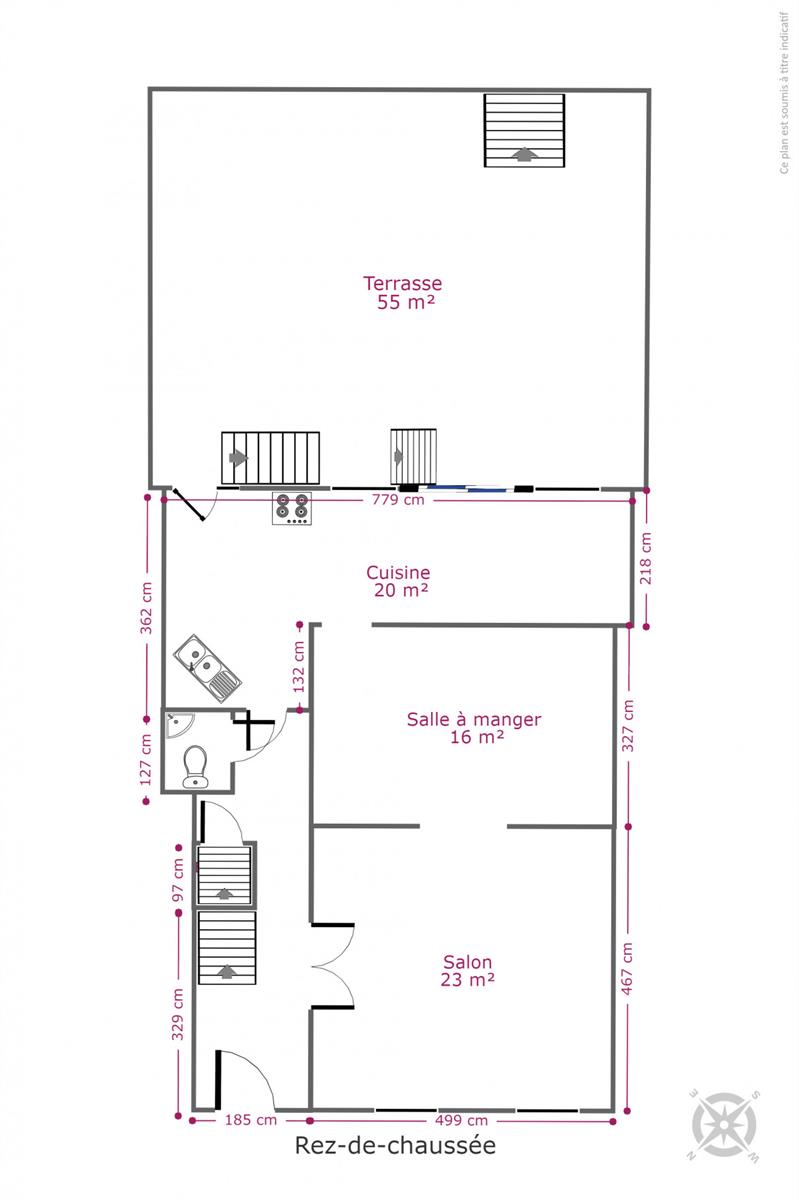
Surface habitable 166 m²
Surface du terrain 449 m²
Disponibilité à l'acte

Bâtiment

Année de construction 1900
Année de rénovation 2005
Type de construction traditionnel

Nom, catégorie & situation

Nombre d'étages (numéro) 3

En chiffres

Largeur front de rue 7.72
Surface bâtie (surf. bât. princ.) 73
Nbre de toilette(s) (nombre) 2
Chambre 1 (surface) 18.11 m²
Chambre 2 (surface) 20.57 m²
Chambre 3 (surface) 32.78 m²
Surface brute 202 m²
Surface nette 166 m²
Largeur de façade 7
Profondeur terrain 48
Nbre de terrasse(s) (nombre) 1
Orientation de la terrasse 2 (-) sud
Salle de séjour (surface) 40 m²
Salle à manger (surface) 16 m²
Cuisine (surface) 20.5 m²
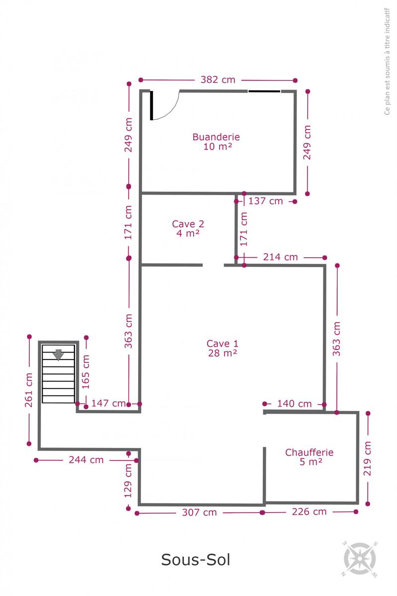
Buanderie (surface) 9.5 m²
Salle de bain 1 (surface) 6 m²
Caves (surface) 27 m²
Hall d'entrée (surface) 10 m²
Orientation de la terrasse 1 (-) sud-est
Hall de nuit (surface) 9.5 m²
Nbre de pièce(s) (Nombre) 15

Equipement de base

Cuisine Oui
Double vitrage Oui
Chauffage (Format/energie) mazout (chauf. centr.)
Type de cuisine équipée
Sdb (Type) douche
Marque de chauffage Viessmann

Divers

Buanderie Oui
Bureau Oui
Type de grenier grenier avec chambres
Coin à déjeuner Oui
Cave Oui
Bureau (détails) Espace burea dans hall de nuit
Grenier (détails) Aménagé
Feu ouvert Oui

À proximité

Magasins (distance (m)) 250
Transports en commun (distance (m)) 100
Centre sportif (distance (m)) 100
Magasins Oui
Transports en commun Oui
Centre sportif Oui
Autoroute Oui
Autoroute (distance (m)) 2000
Gare Oui
Gare (distance (m)) 8000
Transports en commun - détails Arrêt de bus

Raccordements

Égouts Oui
Citerne à mazout Oui
Télévision par cable Oui
Câbles téléphoniques Oui
Eau Oui
Électricité (Détails) Mono-horaire

Équipements techniques

Centrale tél. Oui
Châssis (Ouvertures) pvc
Panneaux solaires Oui
Type de panneaux solaires photovoltaïque
Vitrage (type) double vitrage
Vitrage (détails) PVC
Évier Oui
Type d'évier 1,5

Spécificités terrain

Type d'environnement central
Exposition de la façade avant (-) nord-ouest
Orientation de la terrasse (-) sud est
Orientation du jardin (-) sud
Environnement détail 2 (détails) Vue dégagée sur campagne

Caractéristiques Principales

Surface de terrasse 1 55 m²

Type de matériau & évaluation

Type de revêtement de sol carrelages
État de la toiture (appréciation) 5
État des châssis (-) 5
État des sanitaires (appréciation) 5
État du chauffage (appréciation) 4
État de la cuisine (appréciation) 4
État des sols (appréciation) 5

Sécurité

Alarme Oui

Equipement extérieur

Jardin (détails) sud-est, déclivité en pente, Aménagé pelouse, fermé clôtures

Certificats énergétiques

Label PEB (Classe) C
PEB E-SPEC (kwh/m²/an) (Consommation énergétique) 193
E total (Kwh/an) 48900
PEB code unique (-) 20210707020239
Votre agent
Marie Surges
E-mail Tel.
Prendre contact pour le bien : 4395358

* Champs obligatoires

Préférences pour les cookies

La protection de vos données personnelles est importante pour nous. C’est pourquoi nous détaillons ci-dessous les différents services et fonctionnalités du site qui utilisent des cookies et nous vous laissons décider des cookies que vous souhaitez autoriser ou refuser.

Veuillez cependant noter que si vous bloquez certains types de cookies, cela pourrait impacter votre expérience de navigation sur notre site ainsi que les fonctionnalités disponibles.

Nous utilisons des cookies fonctionnels obligatoires pour assurer le bon fonctionnement du site. Ils sont, par exemple, nécessaires pour retrouver le résultat d’une recherche ou enregistrer le choix de la langue.

Certaines fonctionnalités, comme l’affichage de vidéos ou de cartes géographiques, sont assurées via des composants externes développés par des partenaires comme YouTube ou Google. Certains composants utilisent des cookies qui sont susceptibles de permettre à ces tiers de suivre le comportement des internautes afin, par exemple, de réaliser du ciblage publicitaire. L’activation de ces fonctionnalités et des cookies associés est donc soumis à votre consentement.