Maison - vendu - 1470 Bousval -

Maison - à vendre - 1470 Bousval
3 1 135 m² 3 PEB : F

Description

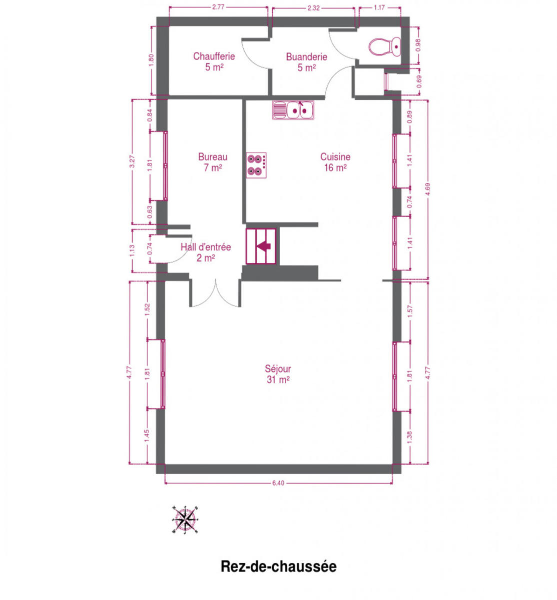
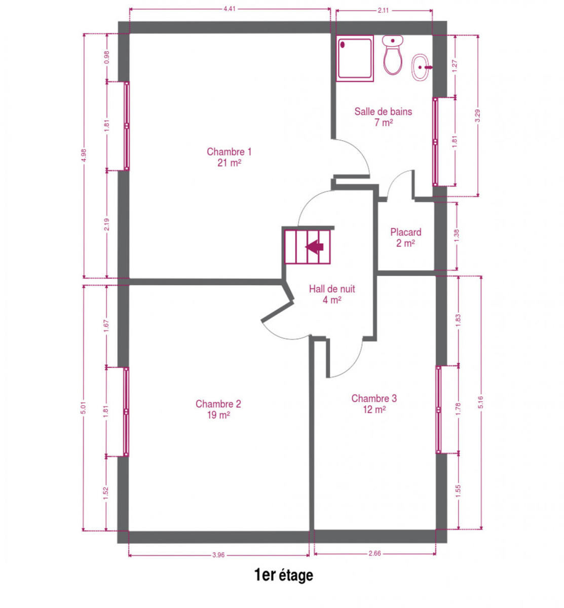
OPTION OPTION OPTION COMPROMIS EN COURS... CCV immobilier a le plaisir de vous proposer cet ancien relais de poste du 17ème siècle dont on retrouve des traces en 1692 déjà sous le nom de "Franche Taverne"! Cette bâtisse habitable immédiatement sur 135m² nécessitera néanmoins quelques travaux de rénovation (selon vos projets et votre budget!) et un raccordement à l'égouttage public. Sise sur une parcelle de terrain de 2 ares 30 centiares, elle propose au rez: un hall d'entrée, un bel espace de vie avec cheminée, une cuisine fonctionnelle avec coin à manger, un bureau, plus buanderie, wc et chaufferie. L'étage offre 3 belles chambres et une salle de bains (accès possible depuis le hall de nuit, mais à réaliser). L'espace extérieur (environ 150m²) est à aménager selon vos envies (parking, carport, terrasse ou coin jardin)... FAIRE OFFRE A PARTIR DE 150.000 EUROS, SOUS RÉSERVE d'ACCEPTATION DES PROPRIÉTAIRES. https://www.ccv-immobilier.be/fr/bien/a-vendre/maison/1470-bousval/4786579

Adresse

Chemin de Wavre 56 - 1470 Bousval

Général

Référence 4786579
Catégorie Maison
Nombre de chambres 3
Nombre de salles de bain 1
Surface habitable 135 m²
Surface du terrain 293 m²
Disponibilité à l'acte

Nom, catégorie & situation

Nombre d'étages (numéro) 2

Bâtiment

Année de construction 1692
Parking extérieur Oui
Année de rénovation 1950
Parking(s) extérieur (nombre) 3
Type de construction traditionnel

En chiffres

Largeur front de rue 61
Surface bâtie (surf. bât. princ.) 70
Nbre de toilette(s) (nombre) 2
Chambre 1 (surface) 21 m²
Chambre 2 (surface) 19 m²
Chambre 3 (surface) 12 m²
Surface brute 135 m²
Surface nette 135 m²
Largeur de façade 12
Profondeur terrain 101
Salle de séjour (surface) 31 m²
Cuisine (surface) 17 m²
Buanderie (surface) 5 m²
Salle de bain 1 (surface) 7 m²
Bureau (surface) 7 m²
Hall d'entrée (surface) 3 m²
Orientation de la terrasse 1 (-) sud-ouest
Hall de nuit (surface) 4 m²
Nbre de pièce(s) (Nombre) 13

Equipement de base

Cuisine Oui
Double vitrage Oui
Chauffage (Format/energie) mazout (chauf. centr.)

Divers

Buanderie Oui
Bureau Oui
Feu ouvert Oui

À proximité

Magasins (distance (m)) 3000
Transports en commun (distance (m)) 1000
Écoles (distance (m)) 3000
Transports en commun Oui
Autoroute Oui
Autoroute (distance (m)) 1700
Gare Oui
Gare (distance (m)) 2900

Équipements techniques

Centrale tél. Oui
Châssis (Ouvertures) bois
Évier Oui
Type d'évier 2

Raccordements

Citerne à mazout Oui
Télévision par cable Oui
Câbles téléphoniques Oui
Eau Oui
Électricité (Détails) Bi-horaire

Spécificités terrain

Type d'environnement calme
Exposition de la façade avant (-) nord-ouest
Orientation de la terrasse (-) sud ouest
Orientation du jardin (-) sud ouest

Type de matériau & évaluation

Type de revêtement de sol carrelages
État de la toiture (appréciation) 3
État des châssis (-) 3
État des sanitaires (appréciation) 2
État de l'électricité (appréciation) 2
État du chauffage (appréciation) 3
État de la cuisine (appréciation) 2
État des sols (appréciation) 2

Equipement extérieur

Jardin (détails) Espace extérieur à aménager

Certificats énergétiques

Label PEB (Classe) F
PEB E-SPEC (kwh/m²/an) (Consommation énergétique) 480
E total (Kwh/an) 76794
PEB code unique (-) 20220609016715
PEB valide jusqu'au (validité) 09/06/2032
Votre agent
Didier Piraux
E-mail Tel.
Prendre contact pour le bien : 4786579

* Champs obligatoires

Préférences pour les cookies

La protection de vos données personnelles est importante pour nous. C’est pourquoi nous détaillons ci-dessous les différents services et fonctionnalités du site qui utilisent des cookies et nous vous laissons décider des cookies que vous souhaitez autoriser ou refuser.

Veuillez cependant noter que si vous bloquez certains types de cookies, cela pourrait impacter votre expérience de navigation sur notre site ainsi que les fonctionnalités disponibles.

Nous utilisons des cookies fonctionnels obligatoires pour assurer le bon fonctionnement du site. Ils sont, par exemple, nécessaires pour retrouver le résultat d’une recherche ou enregistrer le choix de la langue.

Certaines fonctionnalités, comme l’affichage de vidéos ou de cartes géographiques, sont assurées via des composants externes développés par des partenaires comme YouTube ou Google. Certains composants utilisent des cookies qui sont susceptibles de permettre à ces tiers de suivre le comportement des internautes afin, par exemple, de réaliser du ciblage publicitaire. L’activation de ces fonctionnalités et des cookies associés est donc soumis à votre consentement.