Maison - vendu - 1470 Bousval -

Maison - à vendre - 1470 Bousval
3 1 200 m² 5 PEB : D

Description

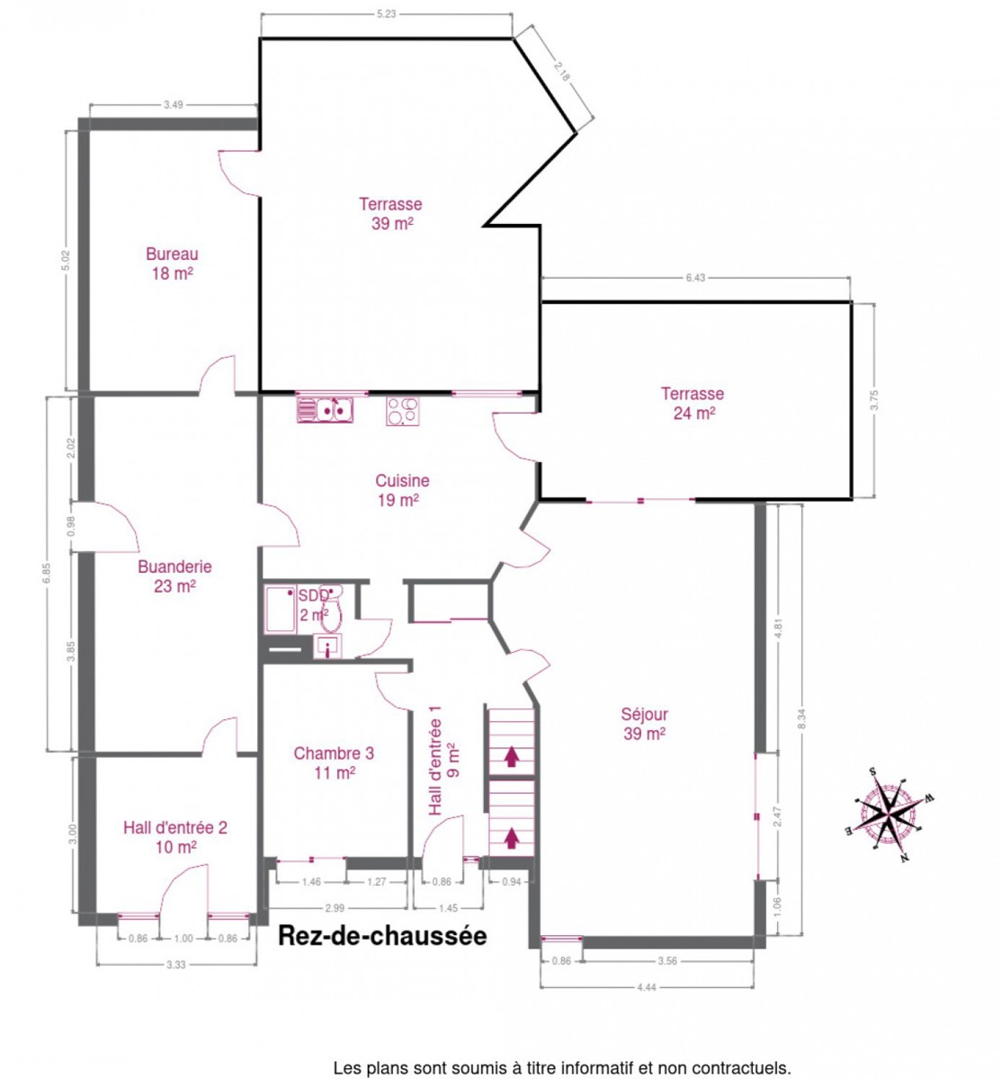
Située dans un quartier calme et prisé, venez découvrir cette villa "coup de cœur", à l'entretien irréprochable. Le séjour chaleureux et lumineux de +/- 40m2 avec une k7 à bois vous invite à la détente. Vous pourrez vivre de plain pied grâce à son agencement optimal. De plus, la villa offre la possibilité d'exercer une profession libérale grâce à une entrée indépendante. Le parking pouvant accueillir jusqu'à 5 véhicules facilitera votre quotidien. Un magnifique jardin intimiste, fleuri et orienté sud ouest, ainsi que la terrasse couverte avec espace barbecue, seront parfaits pour des moments conviviaux en famille ou entre amis. À l'intérieur, vous découvrirez également une cuisine équipée avec ilot central et une table déjeuner intégrée, 3 belles chambres, une salle de bains familiale et une salle de douche au rez. Un grand bureau + un vaste hall de nuit servant également de bureau ouvert et des caves complètent cet ensemble. Cette villa saine et de qualité ne vous laissera pas indifférent. Ne manquez pas l'opportunité de visiter cette villa exceptionnelle. https://www.ccv-immobilier.be/fr/bien/a-vendre/maison/1470-bousval/5960502

Adresse

Sentier de la fermette 13 - 1470 Bousval

Général

Référence 5960502
Catégorie Maison
Nombre de chambres 3
Nombre de salles de bain 1
Jardin Oui
Terrasse Oui
Surface habitable 200 m²
Surface du terrain 659 m²
Disponibilité 01/03/2025

Nom, catégorie & situation

Nombre d'étages (numéro) 1

Bâtiment

Parking extérieur Oui
Parking(s) extérieur (nombre) 5
Type de construction traditionnel

En chiffres

Largeur front de rue 22
Surface bâtie (-) 221
Nbre de toilette(s) (nombre) 2
Nombre de sdd 1
Chambre 1 (surface) 22.7 m²
Chambre 2 (surface) 15.42 m²
Chambre 3 (surface) 11.09 m²
Surface brute 240 m²
Surface nette 200 m²
Largeur de façade 14
Profondeur terrain 30
Nbre de terrasse(s) (nombre) 2
Salle de séjour (surface) 39.36 m²
Cuisine (surface) 19.14 m²
Buanderie (surface) 23.08 m²
Salle de bain 1 (surface) 11.13 m²
Caves (surface) 22.53 m²
Sdd (surface) 2.23 m²
Bureau (surface) 17.51 m²
Hall d'entrée (surface) 8.85 m²
Hall de nuit (surface) 19.89 m²
Nbre de pièce(s) (Nombre) 16

Equipement de base

Cuisine Oui
Chauffage (Format/energie) mazout (chauf. centr.)
Marque de chauffage 2013

Divers

Buanderie Oui
Bureau Oui
Cave Oui

Domaine juridique

Profession libérale poss. Oui

À proximité

Transports en commun (distance (m)) 800
Transports en commun Oui
Autoroute Oui
Autoroute (distance (m)) 13000
Gare Oui
Gare (distance (m)) 4000

Équipements techniques

Châssis (Ouvertures) pvc
Évier Oui
Type d'évier 2

Raccordements

Citerne à mazout Oui
Télévision par cable Oui
Eau Oui
Électricité (Détails) Bi-horaire
Citerne à mazout (détails) Apparente

Spécificités terrain

Type d'environnement calme
Exposition de la façade avant (-) nord-est

Caractéristiques Principales

Surface de terrasse 1 62 m²

Type de matériau & évaluation

Type de revêtement de sol carrelages

Cadastre

Revenu cadastral (€) (montant) 1948 €

Equipement extérieur

Jardin (détails) Aménagé pelouse

Energie

PEB E-SPEC (kwh/m²/an) (Consommation énergétique) 261
E total (Kwh/an) 74182
PEB code unique (-) 20240324007794
Votre agent
Marie Surges
E-mail Tel.
Prendre contact pour le bien : 5960502

* Champs obligatoires

Préférences pour les cookies

La protection de vos données personnelles est importante pour nous. C’est pourquoi nous détaillons ci-dessous les différents services et fonctionnalités du site qui utilisent des cookies et nous vous laissons décider des cookies que vous souhaitez autoriser ou refuser.

Veuillez cependant noter que si vous bloquez certains types de cookies, cela pourrait impacter votre expérience de navigation sur notre site ainsi que les fonctionnalités disponibles.

Nous utilisons des cookies fonctionnels obligatoires pour assurer le bon fonctionnement du site. Ils sont, par exemple, nécessaires pour retrouver le résultat d’une recherche ou enregistrer le choix de la langue.

Certaines fonctionnalités, comme l’affichage de vidéos ou de cartes géographiques, sont assurées via des composants externes développés par des partenaires comme YouTube ou Google. Certains composants utilisent des cookies qui sont susceptibles de permettre à ces tiers de suivre le comportement des internautes afin, par exemple, de réaliser du ciblage publicitaire. L’activation de ces fonctionnalités et des cookies associés est donc soumis à votre consentement.