Maison - vendu - 1470 Bousval -

Maison - à vendre - 1470 Bousval
3 2 265 m² 1 5 PEB : G

Description

OPTION OPTION OPTION!!! COMPROMIS EN COURS... Située dans le village de Bousval (entité de Genappe), à proximité de toutes les facilités, écoles, commerces, axes de communication, venez découvrir cette volumineuse maison bourgeoise qui offre de multiples possibilités d'aménagement (lot 1 au plan de géomètre)... La bâtisse bénéficie d'un volume annexé (à gauche depuis la rue) qui peut être exploité au rez en espace pour une profession libérale (accès arrière) ou comme un espace "kangourou". Les deux volumes communiquent à chaque étage par des portes. L'ensemble peut aussi être envisagé comme une volumineuse maison pour famille nombreuse ou recomposée. La superficie habitable totale est de 265m² sur 3 niveaux accessibles par des escaliers existants. L'ensemble est propre et sain mais doit faire l'objet de rénovations et d'une mise au goût du jour. Des caves incluant un garage, une annexe aménageable (44m²), un grand jardin avec une partie boisée et un 2ème garage complètent le tout. Possibilité d'acquérir un terrain à bâtir attenant en supplément de prix. Une visite vous tente? Appelez DIDIER au 0476/98.62.88... https://www.ccv-immobilier.be/fr/bien/a-vendre/maison/1470-bousval/5845637

Adresse

Avenue des combattants 103 - 1470 Bousval

Général

Référence 6055439
Catégorie Maison
Meublé Non
Nombre de chambres 3
Nombre de salles de bain 2
Jardin Oui
Surface du jardin 2985 m²
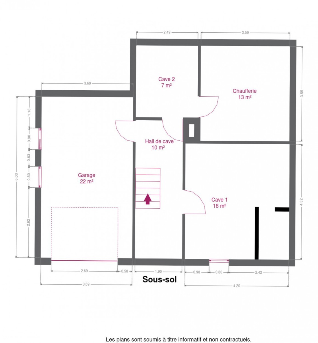
Garage Oui
Terrasse Oui
Parking Oui
Surface habitable 265 m²
Surface du terrain 2985 m²
Disponibilité à l'acte

Nom, catégorie & situation

Nombre d'étages (numéro) 3

Bâtiment

Nombre de garage 1
Parking intérieur Oui
Parking extérieur Oui
Parking(s) extérieur (nombre) 5
Type de construction traditionnel

Equipement de base

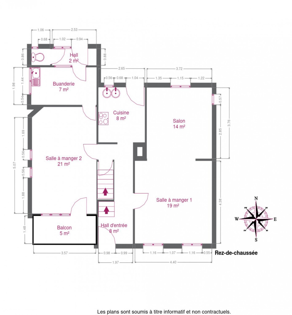
Cuisine Oui
Chauffage (Format/energie) mazout (chauf. centr.)

Divers

Buanderie Oui
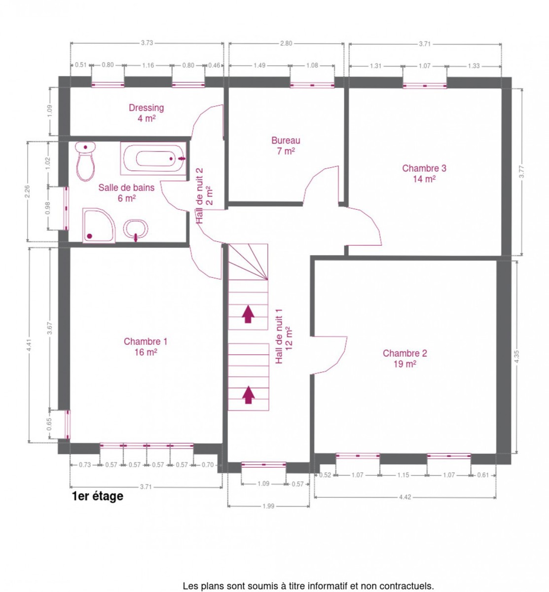
Bureau Oui
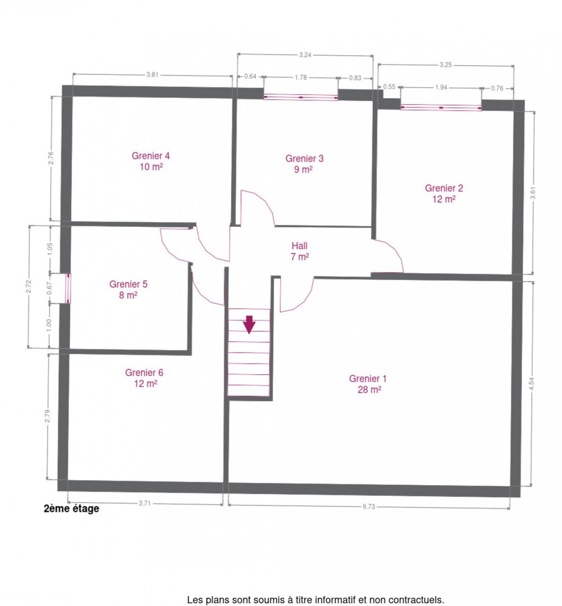
Type de grenier possibilité d'équiper
Grenier Oui
Cave Oui

En chiffres

Nbre de toilette(s) (nombre) 2
Chambre 1 (surface) 16 m²
Chambre 2 (surface) 19 m²
Chambre 3 (surface) 14 m²
Surface brute 367 m²
Surface nette 265 m²
Garage (surface) 22 m²
Salle de séjour (surface) 14 m²
Salle à manger (surface) 19 m²
Orientation de la terrasse 2 (-) nord-ouest
Cuisine (surface) 8 m²
Buanderie (surface) 7 m²
Dressing (surface) 4 m²
Salle de bain 1 (surface) 6 m²
Grenier (surface) 86 m²
Caves (surface) 48 m²
Possibilité profession libérale (surface) 30 m²
Bureau (surface) 7 m²
Hall d'entrée (surface) 8 m²
Orientation de la terrasse 1 (-) nord-ouest
Hall de nuit (surface) 12 m²

À proximité

Transports en commun (distance (m)) 400
Transports en commun Oui
Autoroute Oui
Autoroute (distance (m)) 2900
Gare Oui
Gare (distance (m)) 4700

Equipement extérieur

Annexe Oui
Surface (m²) de annexe 14 m²
Jardin (détails) nord-ouest, en pente, À aménager, est, plat, Aménagé pelouse
Cour Oui
Abri de jardin Oui

Spécificités terrain

Prairie Oui
Type d'environnement calme
Prairie (surface) 1000 m²
Orientation de la terrasse (-) nord ouest
Orientation du jardin (-) nord ouest

Raccordements

Égouts Oui
Télévision par cable Oui
Câbles téléphoniques Oui
Eau Oui
Électricité (Détails) Mono-horaire

Équipements techniques

Châssis (Ouvertures) bois
Évier Oui
Type d'évier 2

Caractéristiques Principales

Surface de terrasse 1 50 m²

Type de matériau & évaluation

Type de revêtement de sol carrelages

Certificats énergétiques

Label PEB (Classe) G
PEB E-SPEC (kwh/m²/an) (Consommation énergétique) 653
E total (Kwh/an) 158308
PEB code unique (-) 20240219011170
Votre agent
Didier Piraux
E-mail Tel.
Prendre contact pour le bien : 6055439

* Champs obligatoires

Préférences pour les cookies

La protection de vos données personnelles est importante pour nous. C’est pourquoi nous détaillons ci-dessous les différents services et fonctionnalités du site qui utilisent des cookies et nous vous laissons décider des cookies que vous souhaitez autoriser ou refuser.

Veuillez cependant noter que si vous bloquez certains types de cookies, cela pourrait impacter votre expérience de navigation sur notre site ainsi que les fonctionnalités disponibles.

Nous utilisons des cookies fonctionnels obligatoires pour assurer le bon fonctionnement du site. Ils sont, par exemple, nécessaires pour retrouver le résultat d’une recherche ou enregistrer le choix de la langue.

Certaines fonctionnalités, comme l’affichage de vidéos ou de cartes géographiques, sont assurées via des composants externes développés par des partenaires comme YouTube ou Google. Certains composants utilisent des cookies qui sont susceptibles de permettre à ces tiers de suivre le comportement des internautes afin, par exemple, de réaliser du ciblage publicitaire. L’activation de ces fonctionnalités et des cookies associés est donc soumis à votre consentement.