
OPTION OPTION OPTION, COMPROMIS EN COURS DE REDACTION... Cette maison 3 façades, située dans une rue sans issue, dispose d'un jardin verdoyant et d'un accès direct au bois. Elle vous séduira par son ambiance chaleureuse ! Elle comprend 4 chambres confortables, une grande salle de bain, un salon et un séjour agrémenté d'un poêle à bois, un bureau au rez-de-chaussée et une grande cuisine équipée. Une belle et grande terrasse vous permettra de profiter de ce bel environnement. L'installation électrique est conforme et le chauffage au gaz propane garantit un confort optimal en toute saison. Ne manquez pas cette opportunité ! Contactez Marie V. au 0496/53.75.41 pour faire une visite ! https://www.ccv-immobilier.be/fr/bien/a-vendre/maison/1470-bousval/6077663
Rue de la Croix 6 - 1470 Bousval
Référence | 6077663 |
---|---|
Catégorie | Maison |
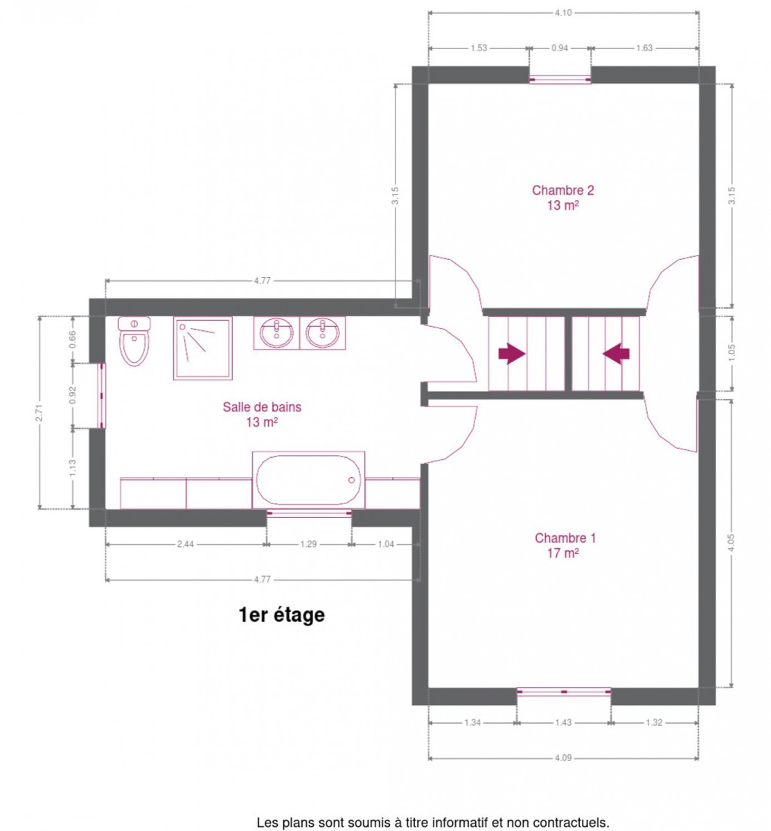
Nombre de chambres | 4 |
Nombre de salles de bain | 1 |
Jardin | Oui |
Terrasse | Oui |
Surface habitable | 162 m² |
Surface du terrain | 510 m² |
Disponibilité | en fonct. du propriétaire |
Nombre d'étages (numéro) | 2 |
---|
Largeur front de rue | 33 |
---|---|
Surface bâtie (-) | 476 |
Nbre de toilette(s) (nombre) | 2 |
Chambre 1 (surface) | 16.56 m² |
Chambre 2 (surface) | 12.9 m² |
Chambre 3 (surface) | 13.01 m² |
Chambre 4 (surface) | 16.38 m² |
Surface nette | 162 m² |
Largeur de façade | 9 |
Profondeur terrain | 17 |
Nbre de terrasse(s) (nombre) | 1 |
Salle à manger (surface) | 16.48 m² |
Cuisine (surface) | 18.52 m² |
Buanderie (surface) | 3.29 m² |
Salle de bain 1 (surface) | 12.92 m² |
Caves (surface) | 17.1 m² |
Bureau (surface) | 10.48 m² |
Hall d'entrée (surface) | 2.56 m² |
Nbre de pièce(s) (Nombre) | 15 |
Cuisine | Oui |
---|---|
Double vitrage | Oui |
Chauffage (Format/energie) | gaz (chau. centr.) |
Buanderie | Oui |
---|---|
Bureau | Oui |
Cave | Oui |
Transports en commun (distance (m)) | 250 |
---|---|
Transports en commun | Oui |
Autoroute | Oui |
Autoroute (distance (m)) | 18000 |
Gare | Oui |
Gare (distance (m)) | 6400 |
Égouts | Oui |
---|---|
Eau | Oui |
Électricité (Détails) | Bi-horaire |
Citerne de gaz | Oui |
Châssis (Ouvertures) | pvc |
---|---|
Évier | Oui |
Type d'évier | 2 |
Type d'environnement | calme |
---|---|
Exposition de la façade avant (-) | ouest |
Orientation de la terrasse (-) | nord ouest |
Orientation du jardin (-) | nord ouest |
Surface de terrasse 1 | 40 m² |
---|
Type de revêtement de sol | parquet |
---|
Jardin (détails) | nord-ouest, Fermé clôtures, fermé murs haies clôtures |
---|---|
Abri de jardin | Oui |
PEB E-SPEC (kwh/m²/an) (Consommation énergétique) | 292 |
---|---|
E total (Kwh/an) | 53066 |
PEB code unique (-) | 20221004028438 |
PEB valide jusqu'au (validité) | 04/10/2032 |
Date du PEB | 04/10/2022 |
Type de construction | traditionnel |
---|