Maison - vendu - 1470 Bousval -

Maison - à vendre - 1470 Bousval
7 2 410 m² 2 PEB : D

Description

Située à Bousval, dans une rue calme et offrant un environnement idyllique et campagnard, cette magnifique propriété vous attend. Elle se compose d'une villa comprenant 5 chambres et un bureau, ainsi que d'un appartement avec entrée indépendante avec 2 chambres + bureau et un garage, offrant un total pour l'ensemble de 410m² habitables. Le tout est complété de magnifiques caves et de 2 grands garages pour plusieurs véhicules comptabilisant près de 222m² en sous-sol. Idéal pour un projet intergénérationnel (1 seule adresse postale)ou pour exercer une profession libérale, elle vous séduira également pour son jardin aménagé et bien entretenu de +/- 17 ares orienté Sud. Cette maison de qualité en excellent état d'entretien nécessite toutefois quelques rafraîchissements. Proche des commodités, de la N25, des commerces, des écoles, et du Bois de la Motte pour des balades paisibles, elle conviendra parfaitement aux amateurs de sérénité. Ne manquez pas cette opportunité ! Une visite ? Contactez Marie au 0474/885930

Adresse

Rue Fontaine des Gattes 3 - 1470 Bousval

Général

Référence 6236685
Catégorie Maison
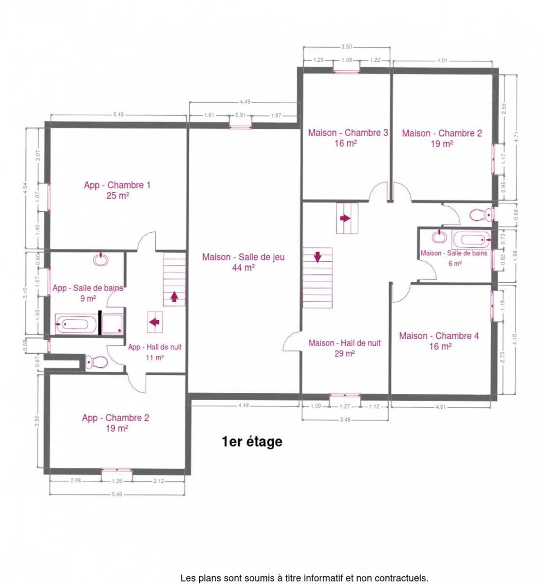
Nombre de chambres 7
Nombre de salles de bain 2
Jardin Oui
Garage Oui
Terrasse Oui
Parking Oui
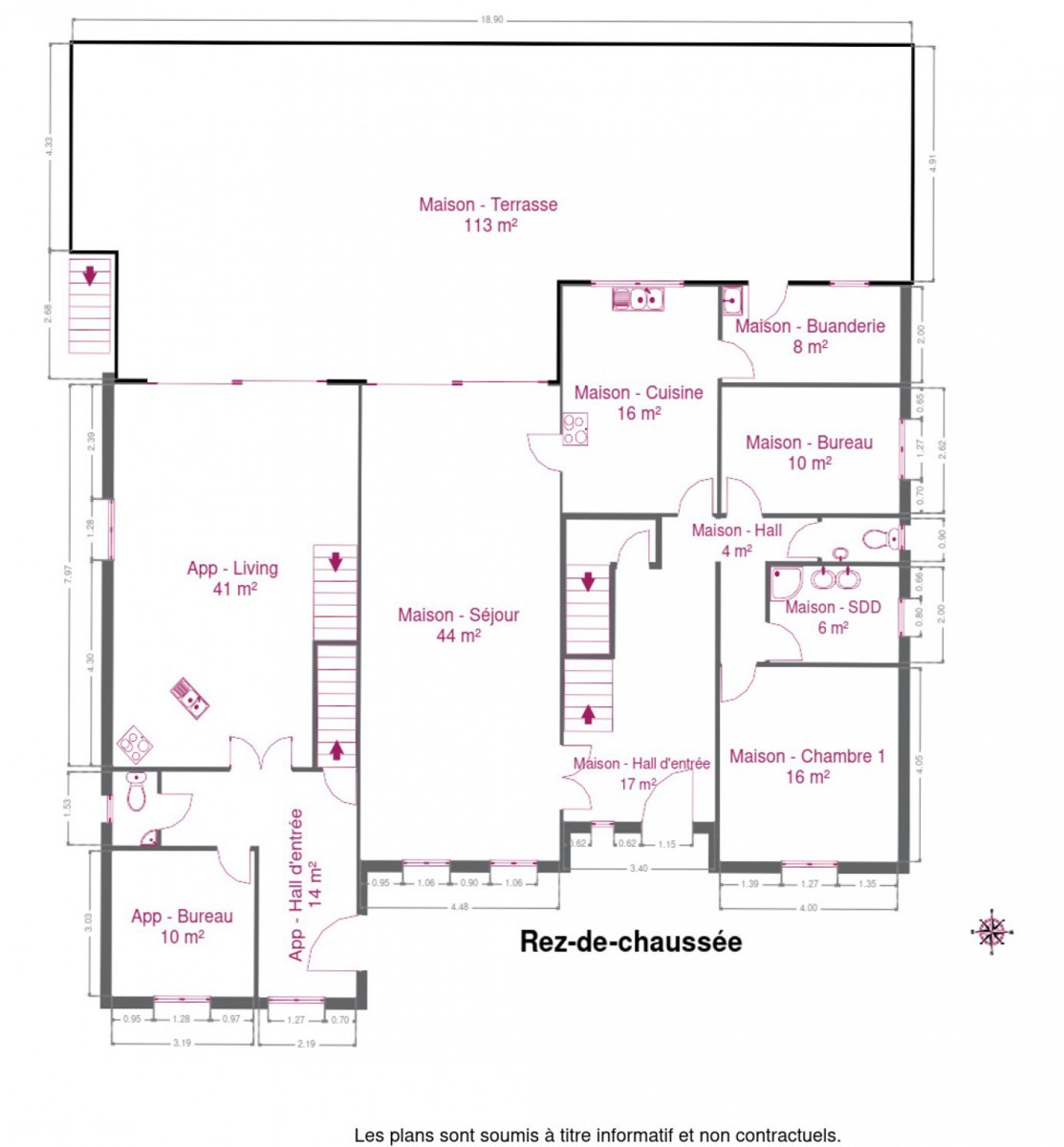
Surface habitable 410 m²
Surface du terrain 1704 m²
Disponibilité à l'acte

Bâtiment

Année de construction 1997
Nombre de garage 2
Parking intérieur Oui
Type de toit en pente
Garage (détails) 4 voitures
Type de construction traditionnel

Nom, catégorie & situation

Nombre d'étages (numéro) 3

Equipement de base

Cuisine Oui
Chauffage (Format/energie) mazout (chauf. centr.)
Sdb (Type) bain
Marque de chauffage Chappee
Sdb 2 (type) douche
Adoucisseur Oui

Divers

Buanderie Oui
Bureau Oui
Salle de jeu Oui
Surface (m²) de salle de jeu 44 m²
Type de grenier seulement rangement
Coin à déjeuner Oui
Grenier Oui
Cave Oui
Bureau (détails) 10m²
Grenier (détails) rangement
Feu ouvert Oui

En chiffres

Nbre de toilette(s) (nombre) 4
Chambre 1 (surface) 24.91 m²
Chambre 2 (surface) 19.08 m²
Chambre 3 (surface) 16.52 m²
Chambre 4 (surface) 16.41 m²
Surface brute 707 m²
Surface nette 410 m²
Garage (surface) 130 m²
Salle de séjour (surface) 44 m²
Cuisine (surface) 16 m²
Buanderie (surface) 8 m²
Salle de bain 1 (surface) 6 m²
Caves (surface) 92.39 m²
Grenier (surface) 76.92 m²
Sdd (surface) 6 m²
Bureau (surface) 9.67 m²
Orientation de la terrasse 1 (-) sud
Hall d'entrée (surface) 17 m²
Salle de bains 2 (surface) 9 m²
Hall de nuit (surface) 29 m²

Domaine juridique

Profession libérale poss. Oui
Servitude Non
Permis de bâtir Oui

À proximité

Transports en commun (distance (m)) 600
Magasins Oui
Ecoles Oui
Transports en commun Oui
Centre-ville Oui
Centre sportif Oui
Autoroute Oui
Autoroute (distance (m)) 1600
Gare Oui
Gare (distance (m)) 2000

Cadastre

Section (-) C
Numéro (n°) 0034HP0000
Surface (ha/a/ca) (surf. (ha/a/ca)) 1704
Revenu cadastral (€) (montant) 3231 €

Raccordements

Égouts Oui
Citerne à mazout Oui
Télévision par cable Oui
Câbles téléphoniques Oui
Eau Oui
Électricité (Détails) Bi-horaire
Citerne à mazout (détails) Apparente, capacité 4 x 2000 L

Équipements techniques

Châssis (Ouvertures) bois
Vitrage (type) double vitrage
Type d'évier 1,5
Évier Oui

Spécificités terrain

Type d'environnement calme
Orientation de la terrasse (-) sud
Orientation du jardin (-) sud
Risque d'inondation 2023 (type innondation) Classe A (aucune chance)

Caractéristiques Principales

Surface de terrasse 1 113 m²

Type de matériau & évaluation

Type de revêtement de sol carrelages

Certificats / Attestations

Capacité de la citerne à mazout 8000

Equipement extérieur

Jardin (détails) sud, en pente, aménagé pelouse, Fermé clôtures haies, est, plat, ouest, Fermé haies clôtures
Fosse septique Oui
Abri de jardin Oui

Energie

Label PEB (Classe) D
PEB E-SPEC (kwh/m²/an) (Consommation énergétique) 261
E total (Kwh/an) 74182
PEB code unique (-) 20240324007794
Votre agent
Marie Surges
E-mail Tel.
Prendre contact pour le bien : 6236685

* Champs obligatoires

Préférences pour les cookies

La protection de vos données personnelles est importante pour nous. C’est pourquoi nous détaillons ci-dessous les différents services et fonctionnalités du site qui utilisent des cookies et nous vous laissons décider des cookies que vous souhaitez autoriser ou refuser.

Veuillez cependant noter que si vous bloquez certains types de cookies, cela pourrait impacter votre expérience de navigation sur notre site ainsi que les fonctionnalités disponibles.

Nous utilisons des cookies fonctionnels obligatoires pour assurer le bon fonctionnement du site. Ils sont, par exemple, nécessaires pour retrouver le résultat d’une recherche ou enregistrer le choix de la langue.

Certaines fonctionnalités, comme l’affichage de vidéos ou de cartes géographiques, sont assurées via des composants externes développés par des partenaires comme YouTube ou Google. Certains composants utilisent des cookies qui sont susceptibles de permettre à ces tiers de suivre le comportement des internautes afin, par exemple, de réaliser du ciblage publicitaire. L’activation de ces fonctionnalités et des cookies associés est donc soumis à votre consentement.